Podlaží
Izieb
Osoby
Úžitková plocha
Cena projektu
Cena na kľúč
Cena stavby svojpomocne
| Popis | Hodnota |
|---|---|
| Počet osôb | 4 |
| Orientácia vchodu | V. SV |
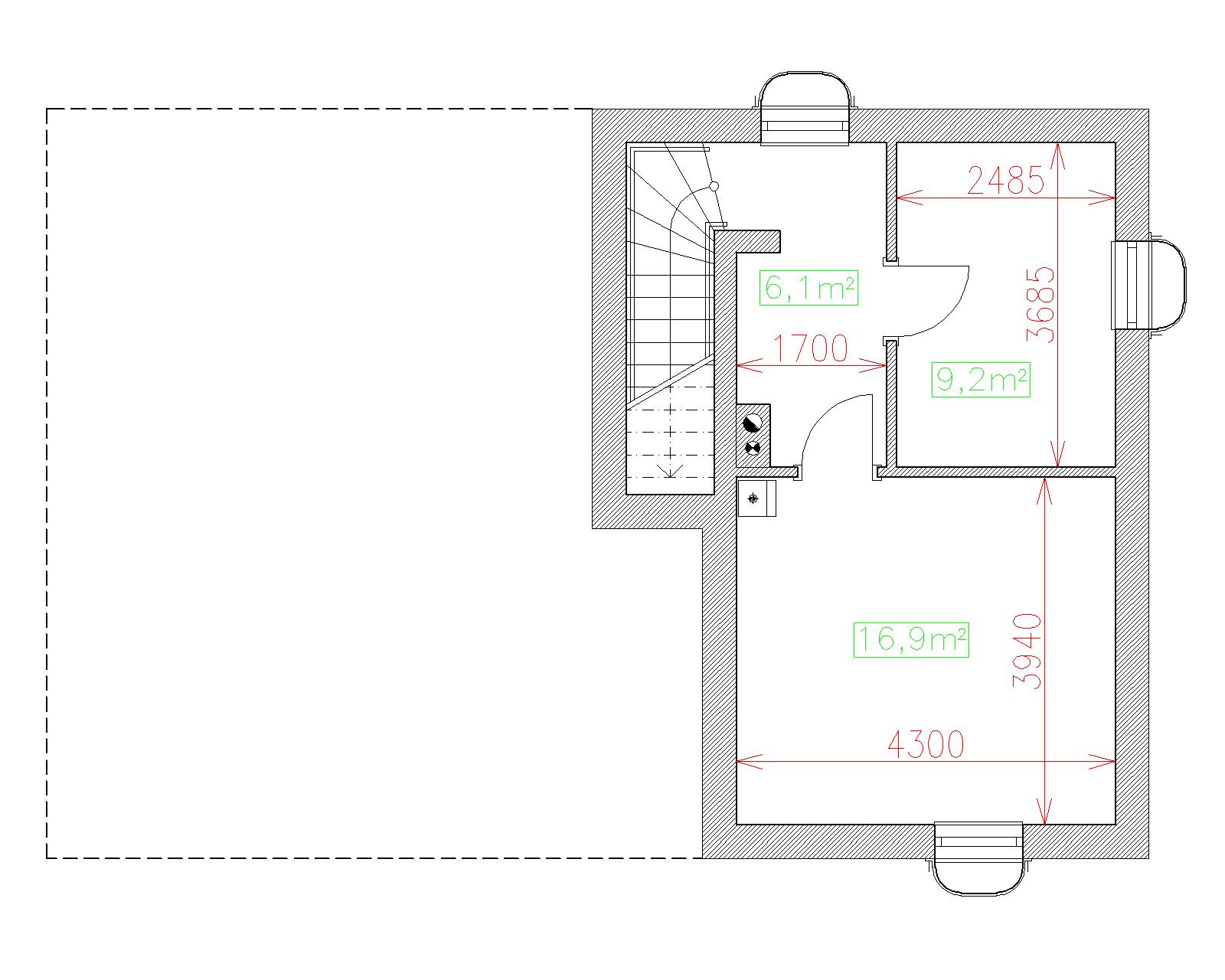
| Podlaží | 3 |
| Počet obytných izieb | 4 |
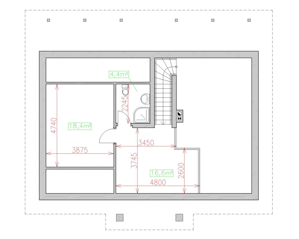
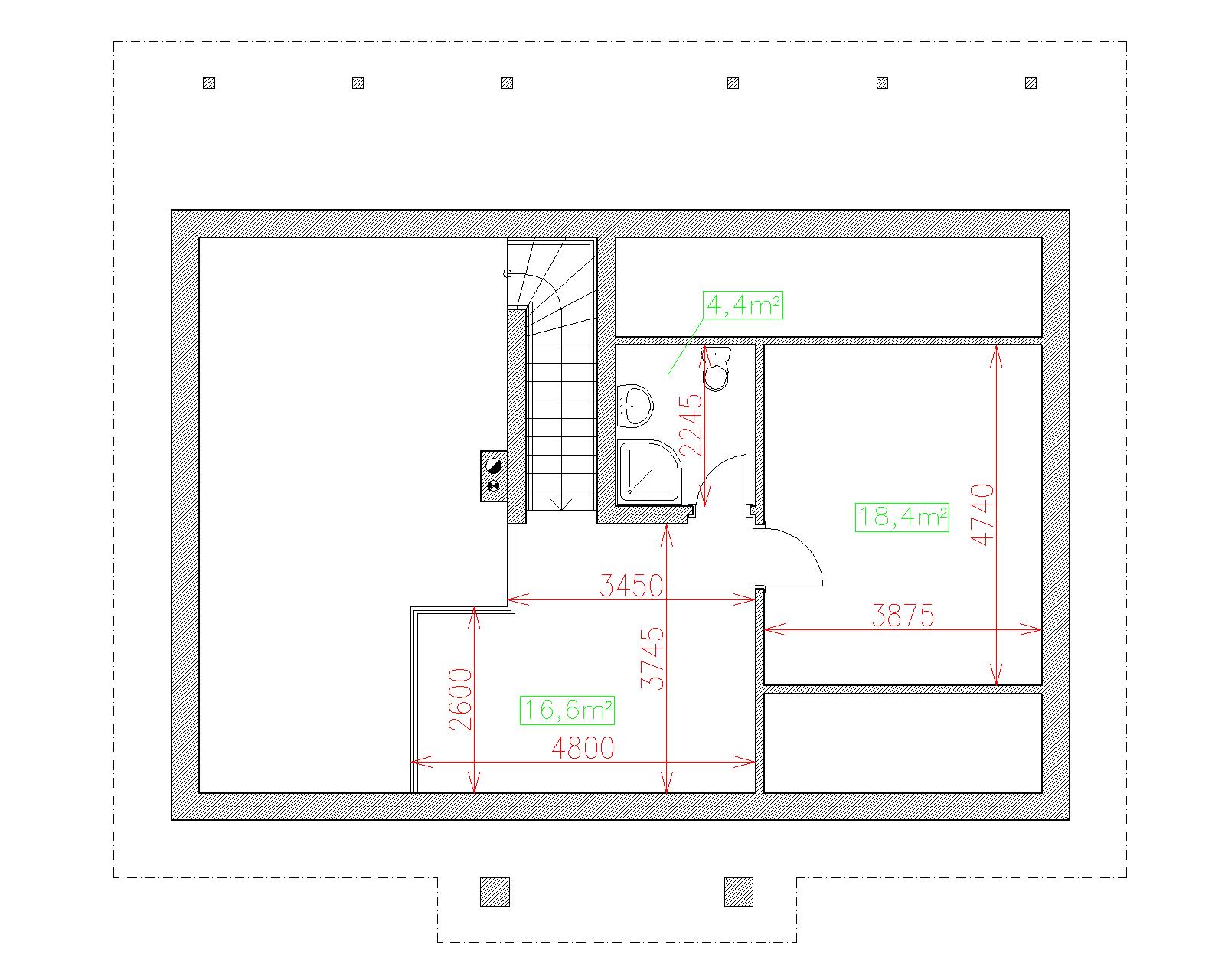
| Obostavaný priestor | 570 m2 |
| Celková úžitková plocha | 155.9 m2 |
| Celková obytná plocha | 67.8 m2 |
| Zastavaná plocha | 106.3 m3 |
| Výška hrebeňa strechy | 5.6 |
| Sklon strechy | 25 |
| Cena projektu | € 1 300 |
| Cena stavby na kľúč | € 202 000 |


