Podlaží
Izieb
Osoby
Úžitková plocha
Cena projektu
Cena na kľúč
Cena stavby svojpomocne
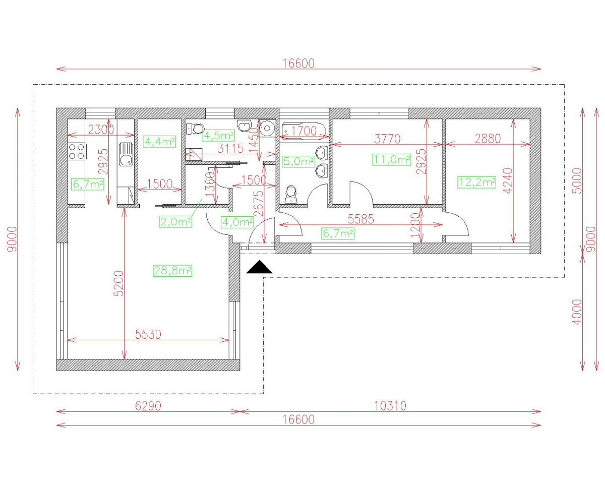
| Popis | Hodnota |
|---|---|
| Počet osôb | 4 |
| Orientácia vchodu | J. JZ |
| Podlaží | 1 |
| Počet obytných izieb | 3 |
| Obostavaný priestor | 420 m2 |
| Celková úžitková plocha | 85.3 m2 |
| Celková obytná plocha | 52 m2 |
| Zastavaná plocha | 108.2 m3 |
| Výška hrebeňa strechy | 4.4 |
| Sklon strechy | 17 |
| Cena projektu | € 2 650 |
| Cena stavby na kľúč | € 115 000 |


