Podlaží
Izieb
Osoby
Úžitková plocha
Cena projektu
Cena na kľúč
Cena stavby svojpomocne
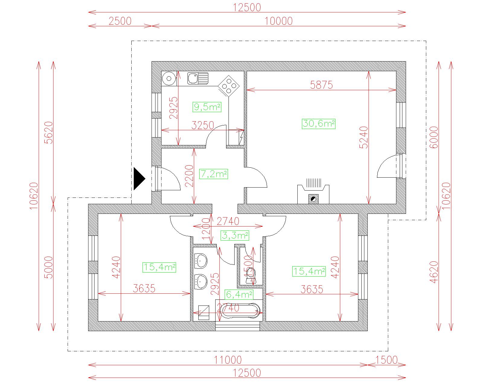
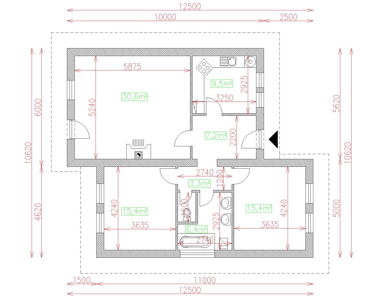
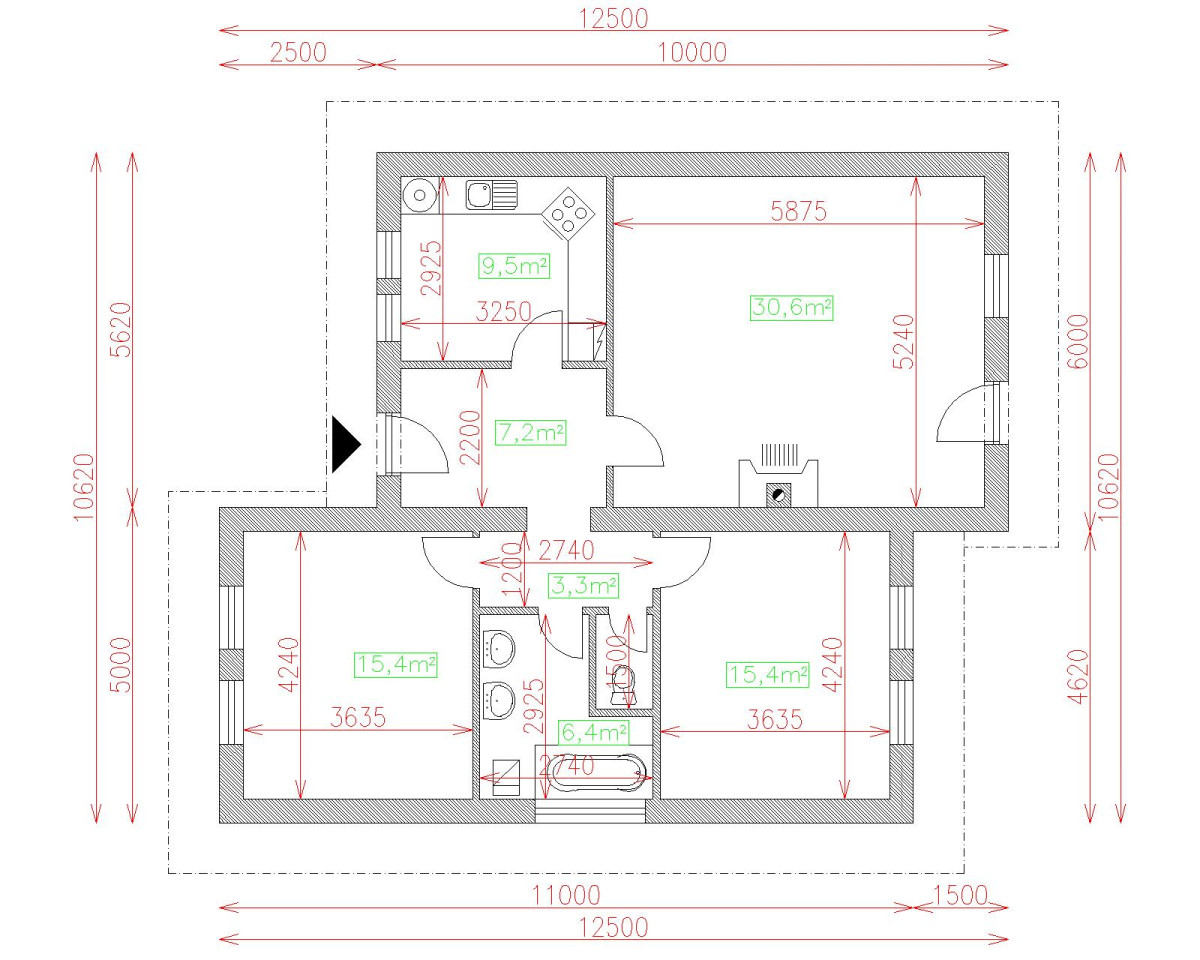
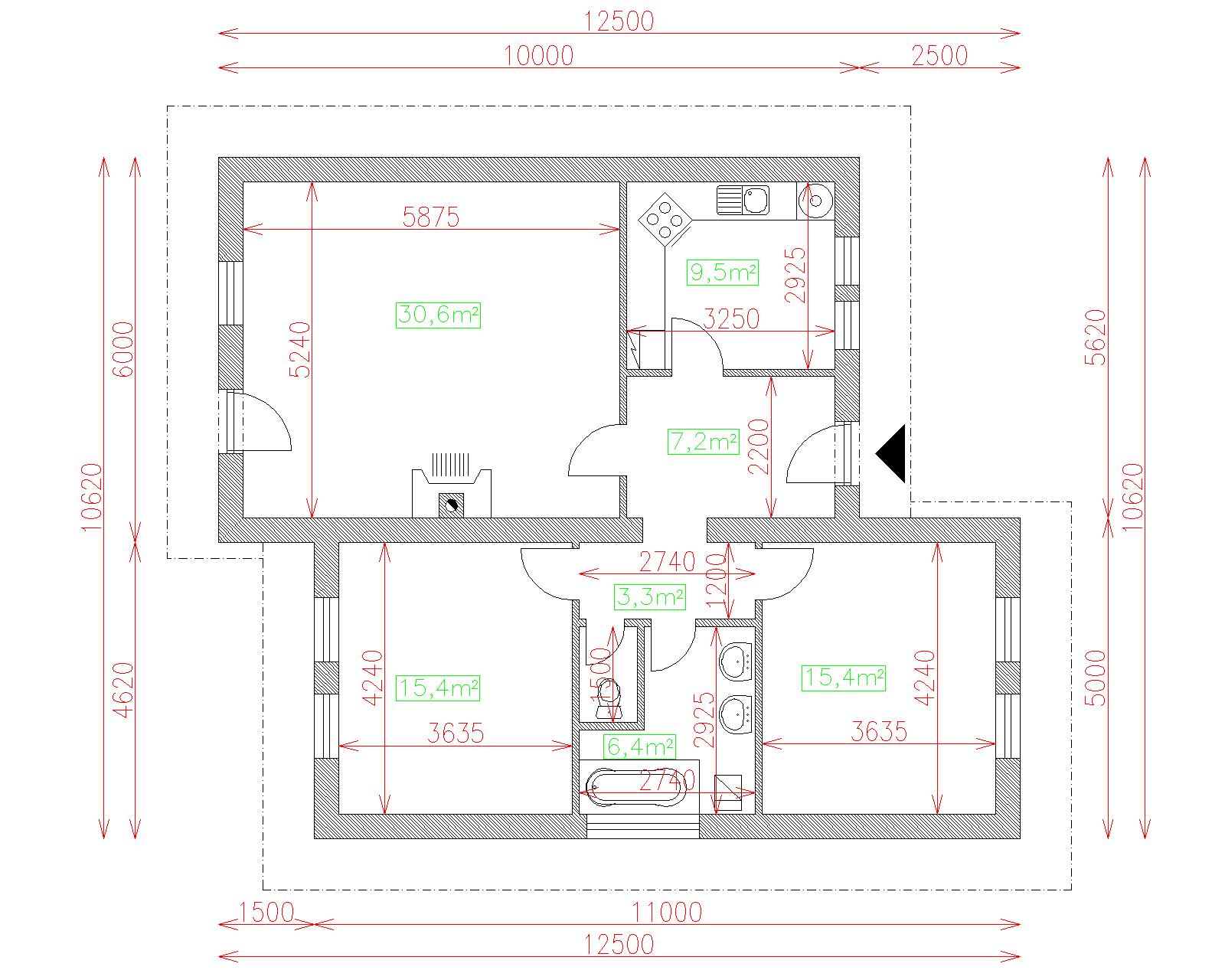
| Popis | Hodnota |
|---|---|
| Počet osôb | 3 |
| Orientácia vchodu | V |
| Podlaží | 1 |
| Počet obytných izieb | 3 |
| Obostavaný priestor | 540 m2 |
| Celková úžitková plocha | 89.2 m2 |
| Celková obytná plocha | 61.4 m2 |
| Zastavaná plocha | 111.8 m3 |
| Výška hrebeňa strechy | 6.1 |
| Sklon strechy | 17 |
| Cena projektu | € 1 200 |
| Cena stavby na kľúč | € 119 000 |


