Podlaží
Izieb
Osoby
Úžitková plocha
Cena projektu
Cena na kľúč
Cena stavby svojpomocne
| Popis | Hodnota |
|---|---|
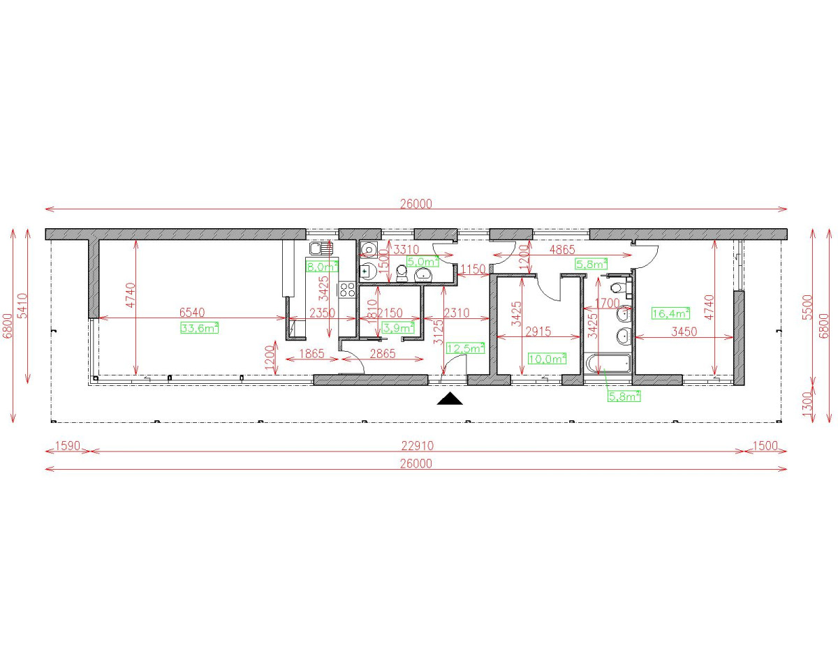
| Počet osôb | 3 |
| Orientácia vchodu | J. JV |
| Podlaží | 1 |
| Počet obytných izieb | 3 |
| Obostavaný priestor | 630 m2 |
| Celková úžitková plocha | 101.2 m2 |
| Celková obytná plocha | 60.5 m2 |
| Zastavaná plocha | 127.2 m3 |
| Výška hrebeňa strechy | 4.2 |
| Sklon strechy | 17 |
| Cena projektu | € 2 680 |
| Cena stavby na kľúč | € 138 500 |


