Podlaží
Izieb
Osoby
Úžitková plocha
Cena projektu
Cena na kľúč
Cena stavby svojpomocne
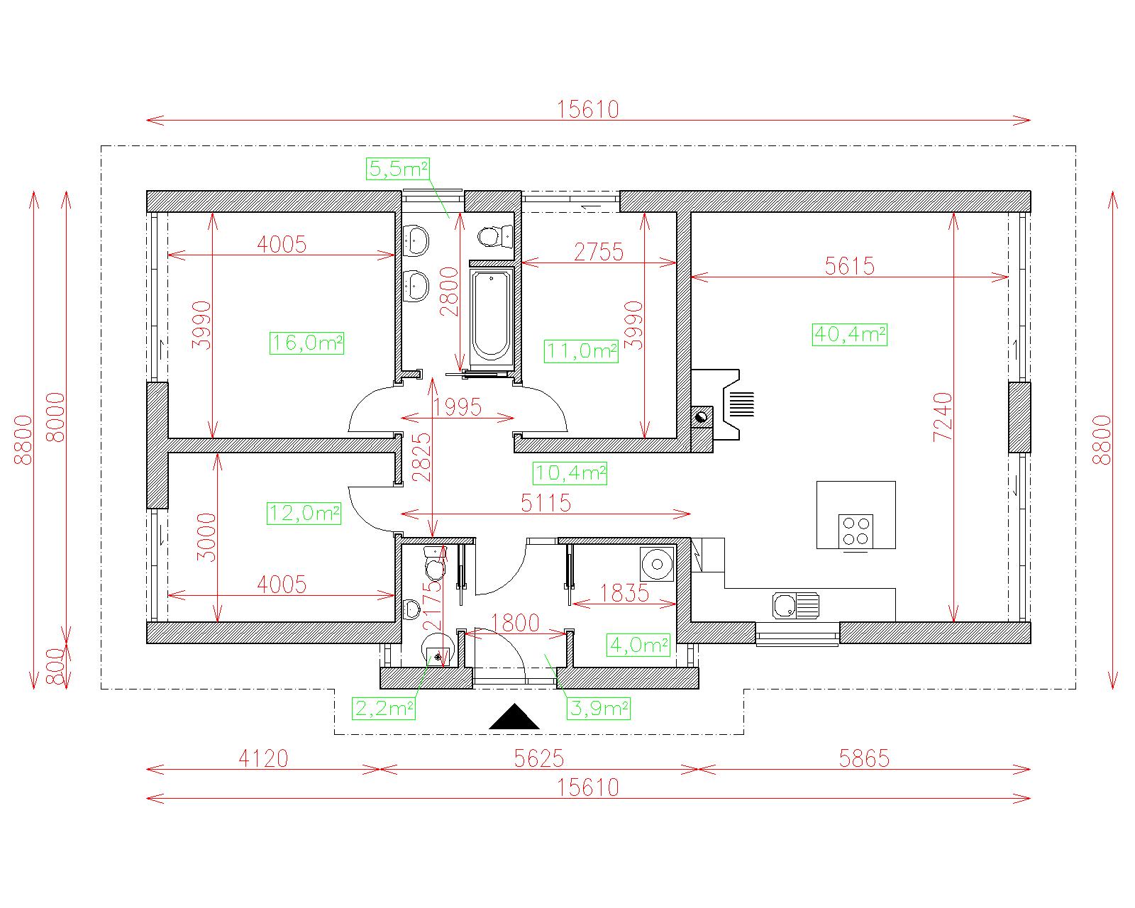
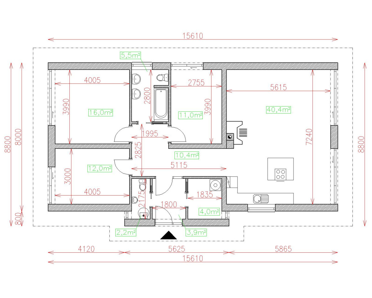
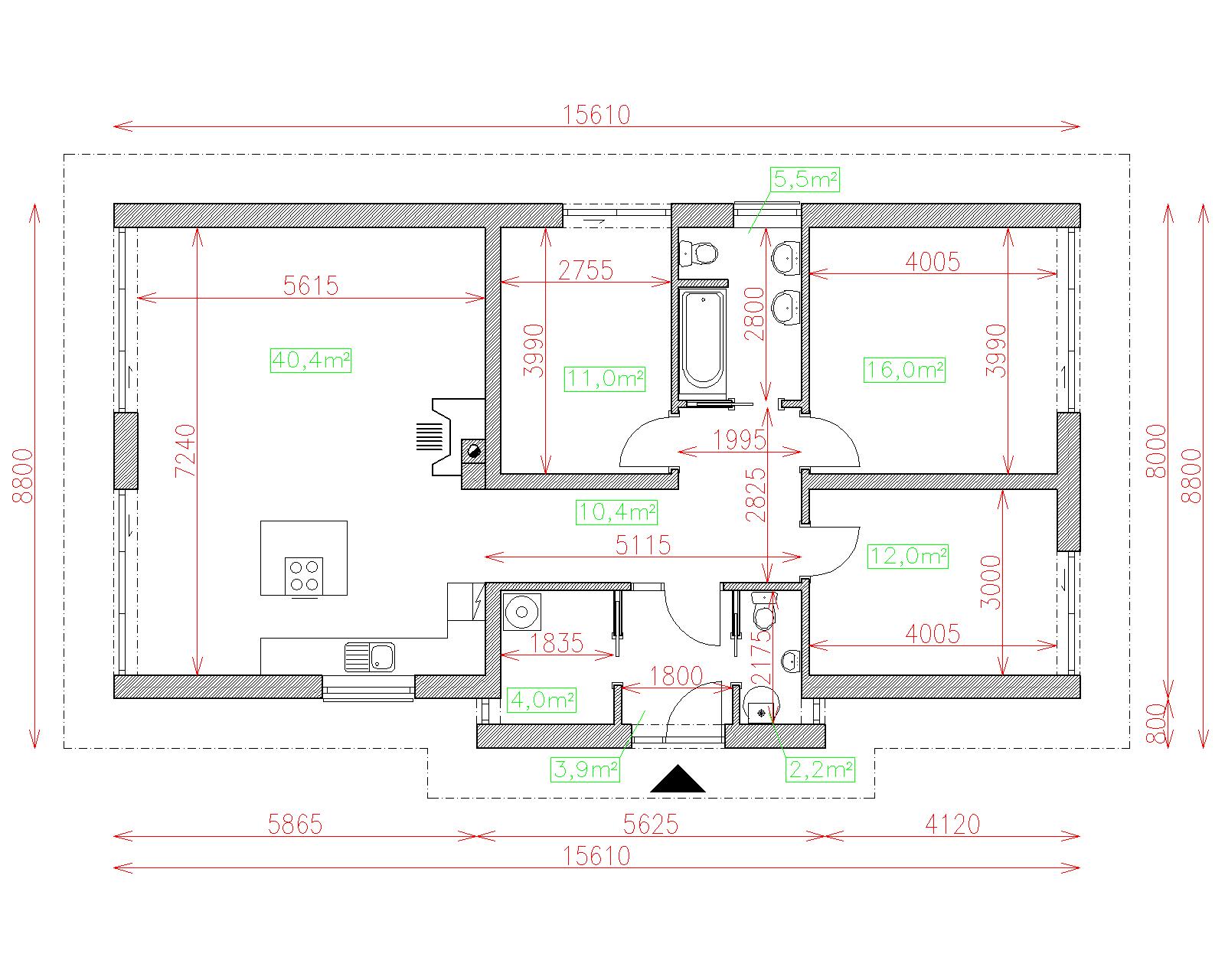
| Popis | Hodnota |
|---|---|
| Počet osôb | 4 |
| Orientácia vchodu | J. JV |
| Podlaží | 1 |
| Počet obytných izieb | 4 |
| Obostavaný priestor | 520 m2 |
| Celková úžitková plocha | 99.9 m2 |
| Celková obytná plocha | 71.4 m2 |
| Zastavaná plocha | 129.4 m3 |
| Výška hrebeňa strechy | 4.6 |
| Sklon strechy | 18 |
| Cena projektu | € 1 250 |
| Cena stavby na kľúč | € 137 000 |


