Podlaží
Izieb
Osoby
Úžitková plocha
Cena projektu
Cena na kľúč
Cena stavby svojpomocne
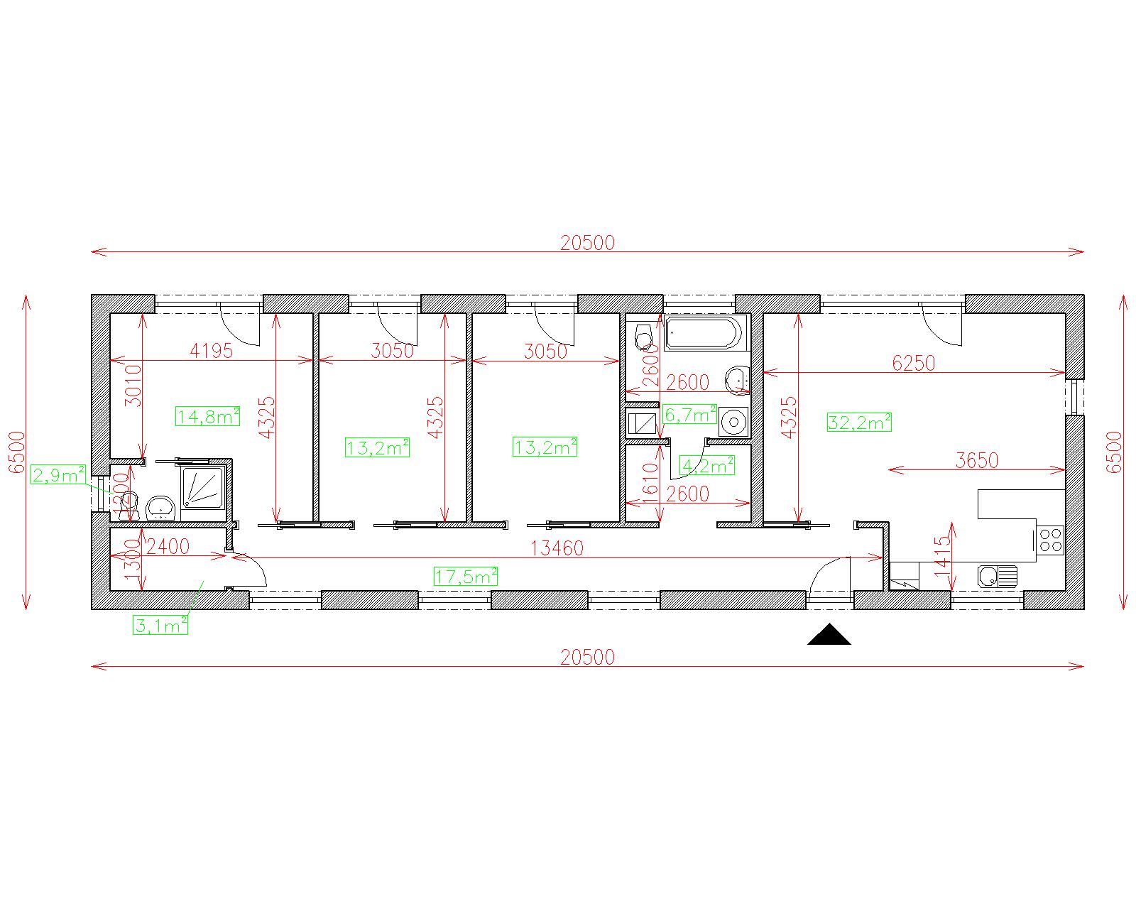
| Popis | Hodnota |
|---|---|
| Počet osôb | 4 |
| Orientácia vchodu | S |
| Podlaží | 1 |
| Počet obytných izieb | 4 |
| Obostavaný priestor | 690 m2 |
| Celková úžitková plocha | 107.8 m2 |
| Celková obytná plocha | 67.4 m2 |
| Zastavaná plocha | 133.3 m3 |
| Výška hrebeňa strechy | 5.9 |
| Sklon strechy | 22 |
| Cena projektu | € 2 600 |
| Cena stavby na kľúč | € 145 000 |


