Podlaží
Izieb
Osoby
Úžitková plocha
Cena projektu
Cena na kľúč
Cena stavby svojpomocne
| Popis | Hodnota |
|---|---|
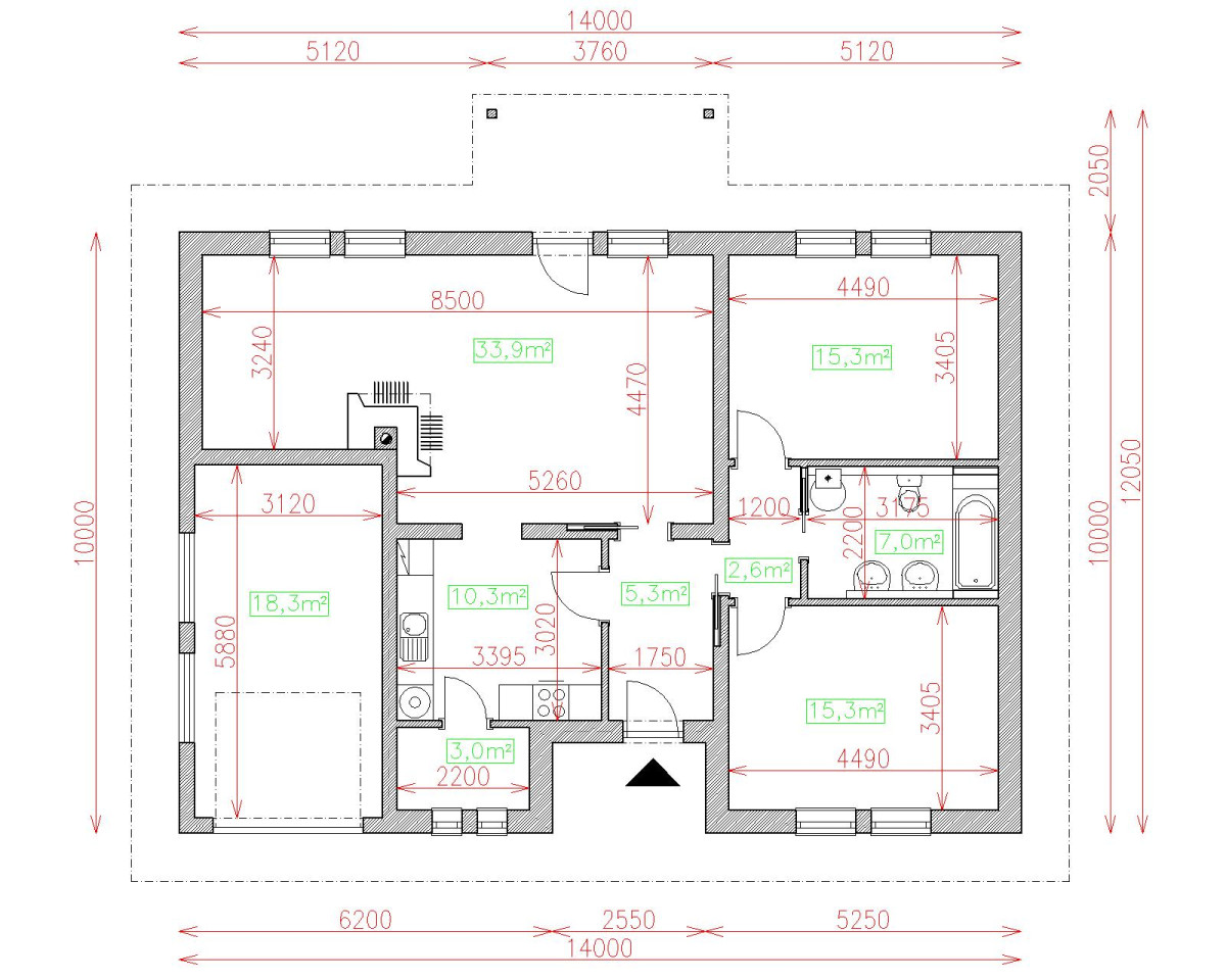
| Počet osôb | 4 |
| Orientácia vchodu | V. Z |
| Podlaží | 1 |
| Počet obytných izieb | 3 |
| Obostavaný priestor | 400 m2 |
| Celková úžitková plocha | 111.7 m2 |
| Celková obytná plocha | 65.2 m2 |
| Zastavaná plocha | 136.2 m3 |
| Výška hrebeňa strechy | 5.4 |
| Sklon strechy | 22 |
| Cena projektu | € 1 280 |
| Cena stavby na kľúč | € 144 300 |


