Podlaží
Izieb
Osoby
Úžitková plocha
Cena projektu
Cena na kľúč
Cena stavby svojpomocne
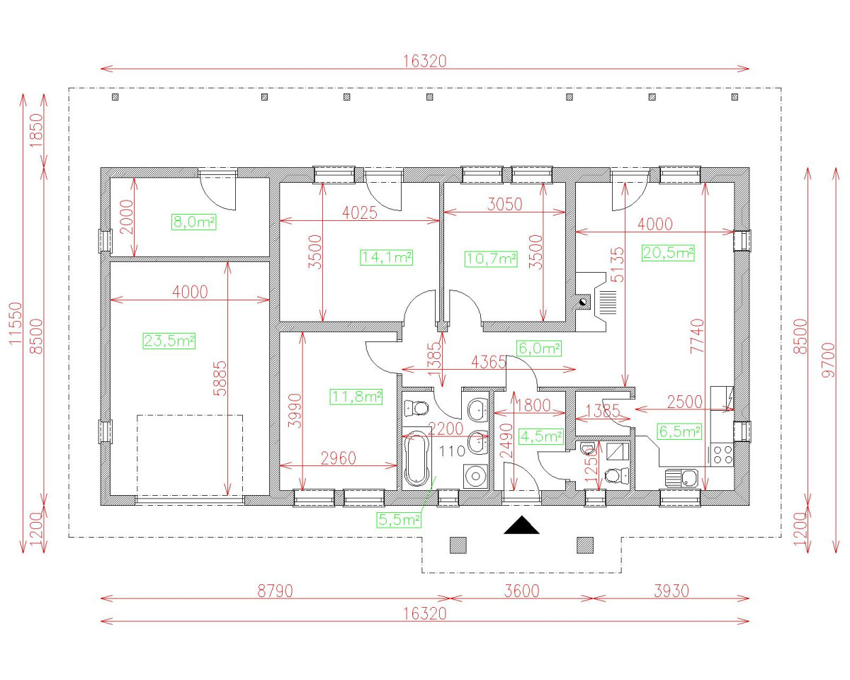
| Popis | Hodnota |
|---|---|
| Počet osôb | 4 |
| Orientácia vchodu | V. SV |
| Podlaží | 1 |
| Počet obytných izieb | 4 |
| Obostavaný priestor | 600 m2 |
| Celková úžitková plocha | 114.7 m2 |
| Celková obytná plocha | 57 m2 |
| Zastavaná plocha | 138.7 m3 |
| Výška hrebeňa strechy | 5.4 |
| Sklon strechy | 25 |
| Cena projektu | € 1 250 |
| Cena stavby na kľúč | € 146 800 |


