Podlaží
Izieb
Osoby
Úžitková plocha
Cena projektu
Cena na kľúč
Cena stavby svojpomocne
| Popis | Hodnota |
|---|---|
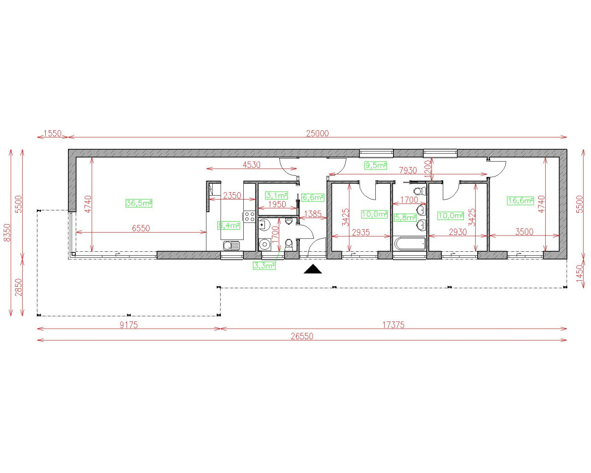
| Počet osôb | 4 |
| Orientácia vchodu | J. JV |
| Podlaží | 1 |
| Počet obytných izieb | 4 |
| Obostavaný priestor | 520 m2 |
| Celková úžitková plocha | 110.4 m2 |
| Celková obytná plocha | 73.7 m2 |
| Zastavaná plocha | 137.5 m3 |
| Výška hrebeňa strechy | 4.1 |
| Sklon strechy | 17 |
| Cena projektu | € 1 320 |
| Cena stavby na kľúč | € 145 500 |


