Podlaží
Izieb
Osoby
Úžitková plocha
Cena projektu
Cena na kľúč
Cena stavby svojpomocne
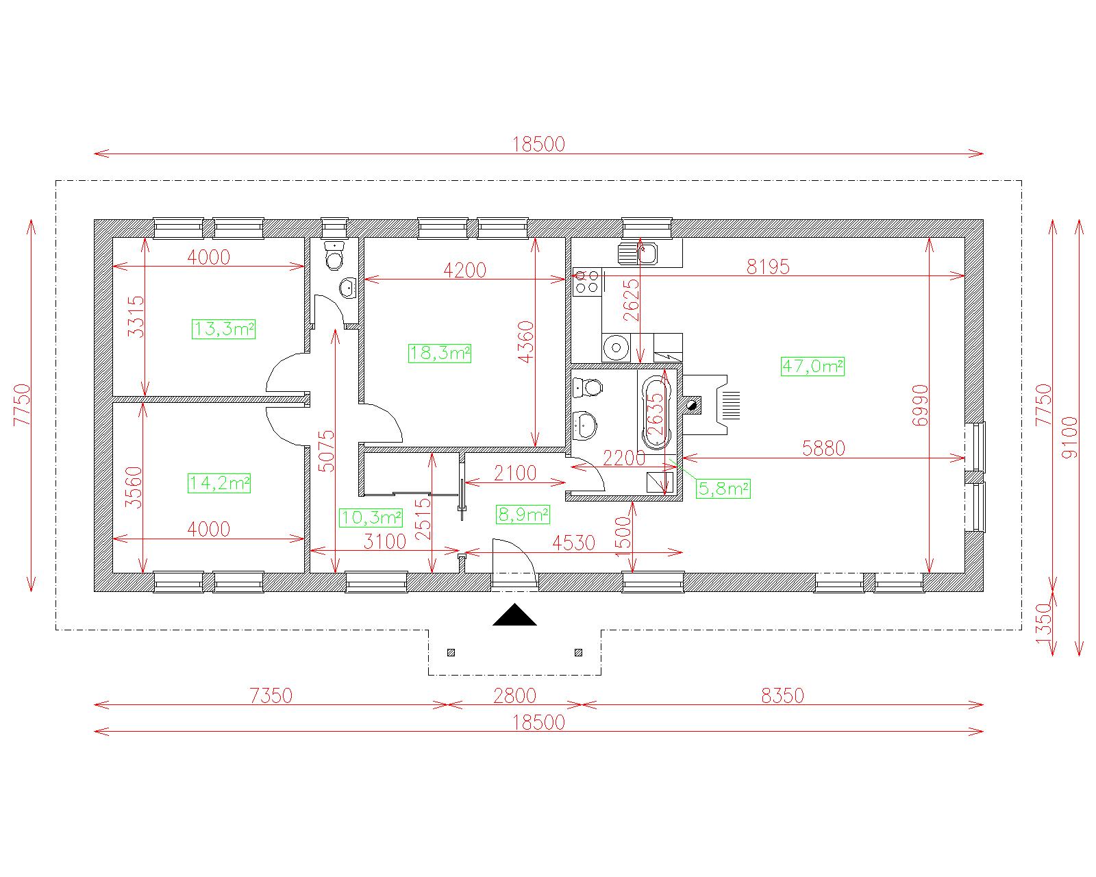
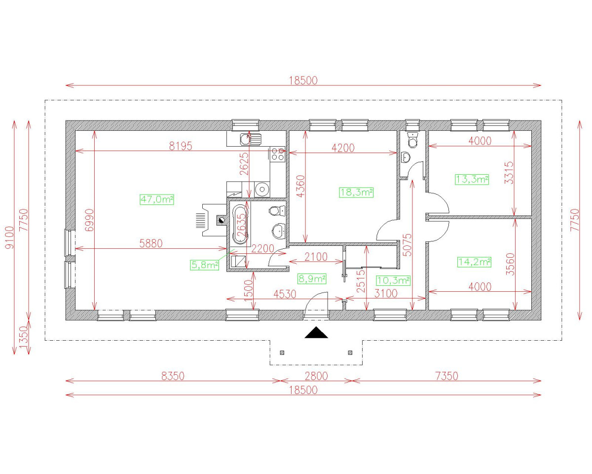
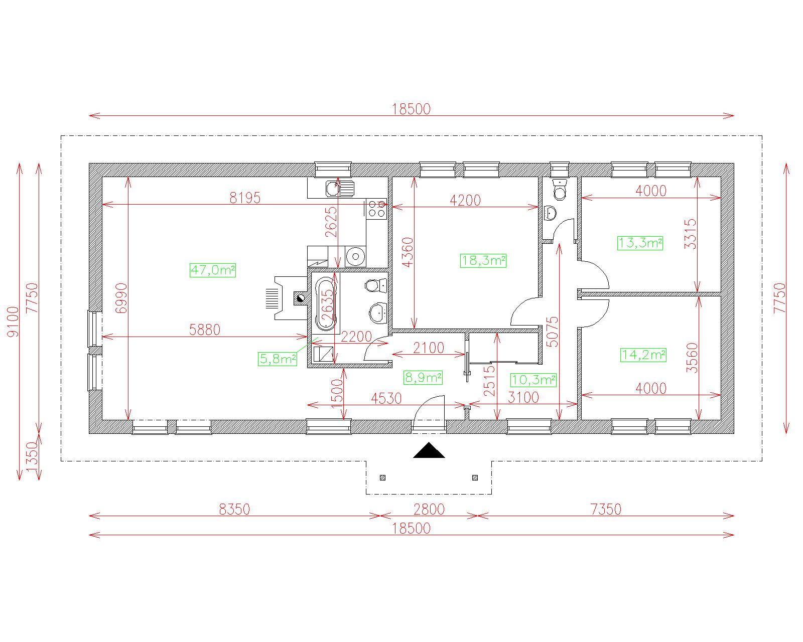
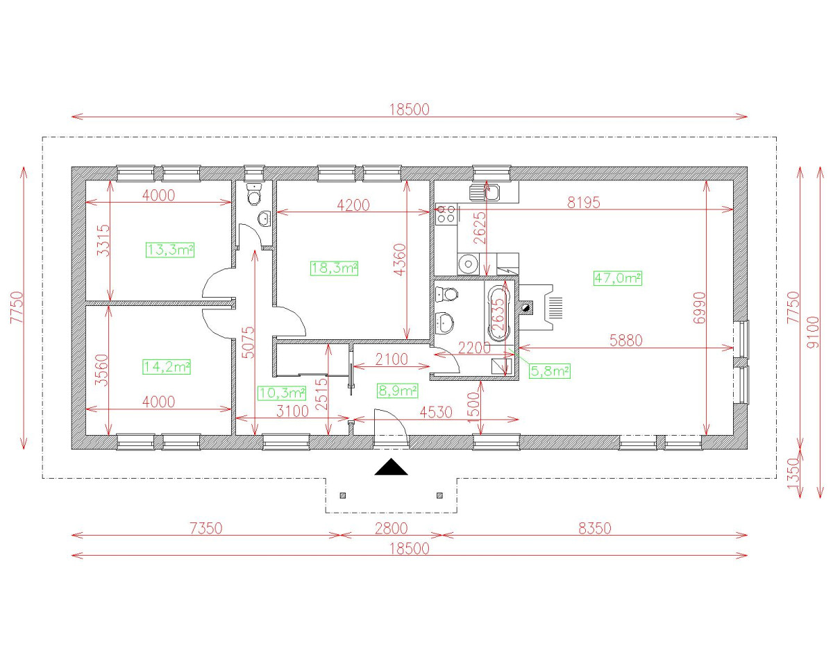
| Popis | Hodnota |
|---|---|
| Počet osôb | 4 |
| Orientácia vchodu | J. JV |
| Podlaží | 1 |
| Počet obytných izieb | 4 |
| Obostavaný priestor | 610 m2 |
| Celková úžitková plocha | 119.6 m2 |
| Celková obytná plocha | 86.8 m2 |
| Zastavaná plocha | 143.4 m3 |
| Výška hrebeňa strechy | 5 |
| Sklon strechy | 22 |
| Cena projektu | € 1 280 |
| Cena stavby na kľúč | € 151 800 |


