Podlaží
Izieb
Osoby
Úžitková plocha
Cena projektu
Cena na kľúč
Cena stavby svojpomocne
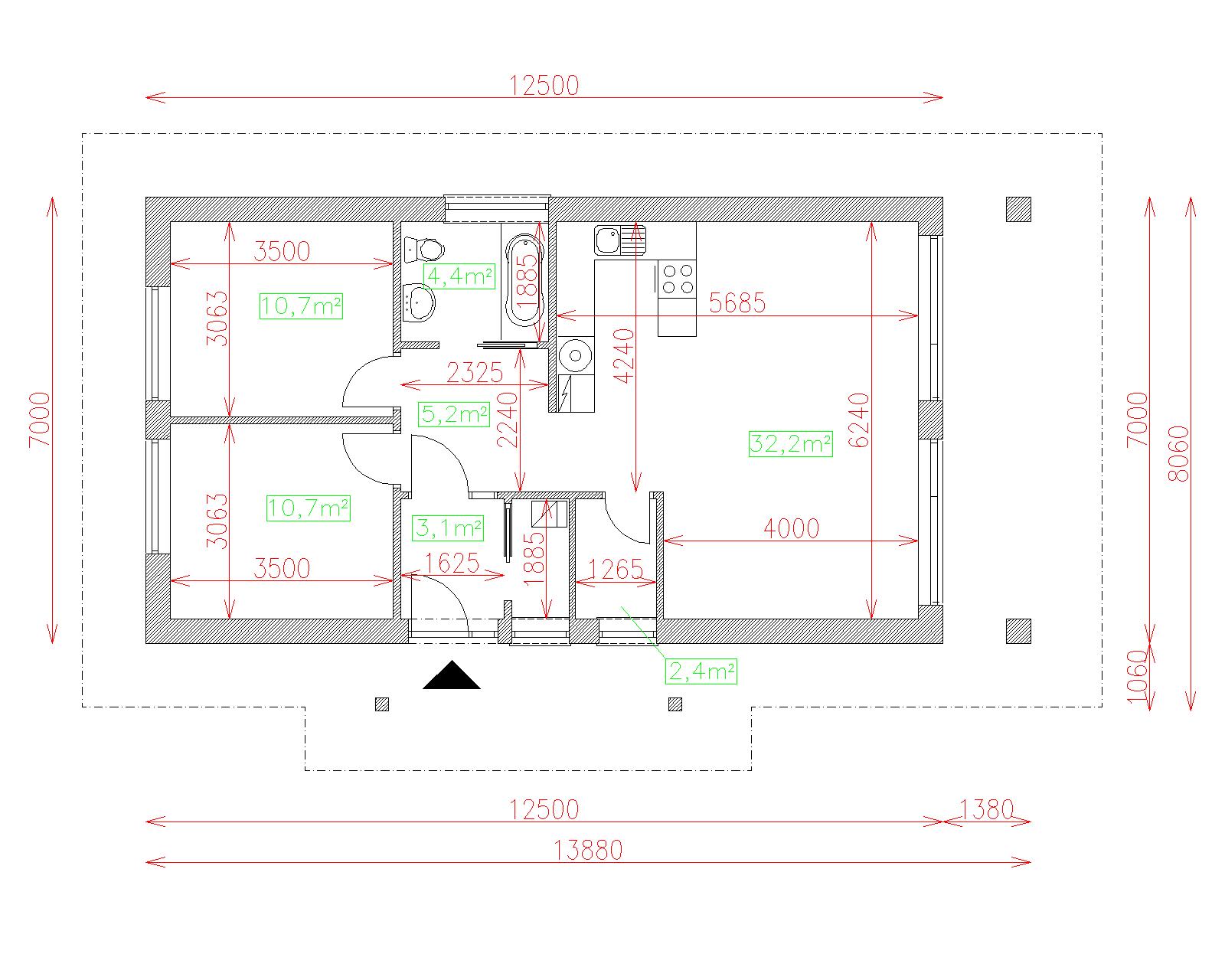
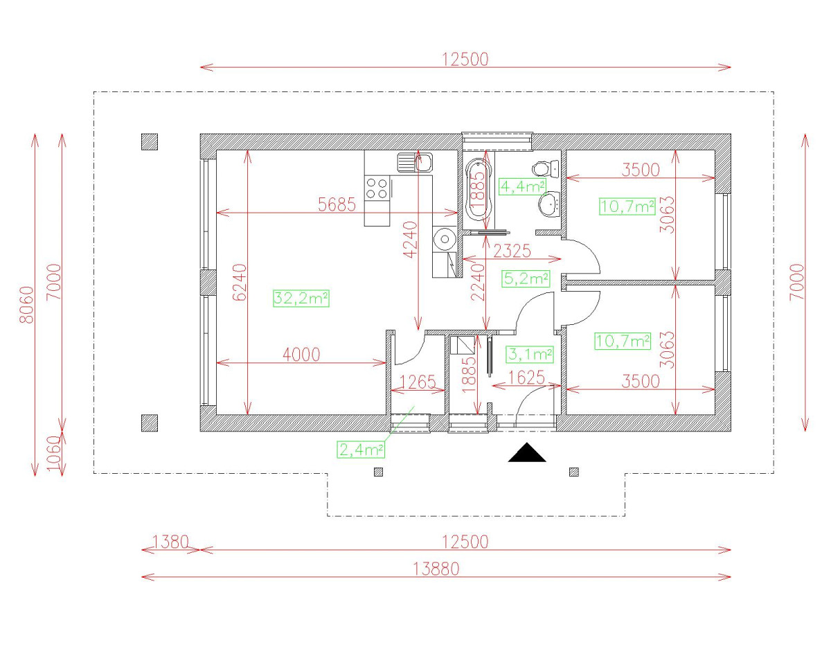
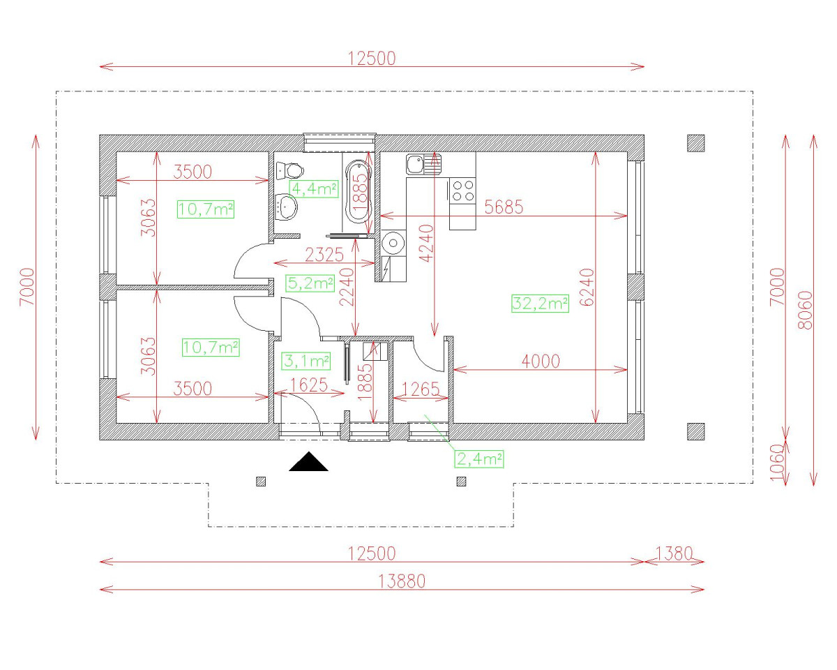
| Popis | Hodnota |
|---|---|
| Počet osôb | 3 |
| Orientácia vchodu | S. J |
| Podlaží | 1 |
| Počet obytných izieb | 3 |
| Obostavaný priestor | 370 m2 |
| Celková úžitková plocha | 70.4 m2 |
| Celková obytná plocha | 53.6 m2 |
| Zastavaná plocha | 87.5 m3 |
| Výška hrebeňa strechy | 4.5 |
| Sklon strechy | 17 |
| Cena projektu | € 1 250 |
| Cena stavby na kľúč | € 93 500 |


