Podlaží
Izieb
Osoby
Úžitková plocha
Cena projektu
Cena na kľúč
Cena stavby svojpomocne
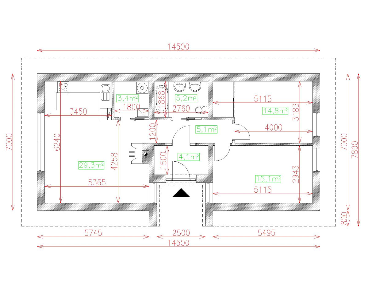
| Popis | Hodnota |
|---|---|
| Počet osôb | 3 |
| Orientácia vchodu | J. JV |
| Podlaží | 1 |
| Počet obytných izieb | 3 |
| Obostavaný priestor | 300 m2 |
| Celková úžitková plocha | 77 m2 |
| Celková obytná plocha | 53.2 m2 |
| Zastavaná plocha | 98.5 m3 |
| Výška hrebeňa strechy | 3.7 |
| Sklon strechy | 22 |
| Cena projektu | € 1 240 |
| Cena stavby na kľúč | € 105 000 |


