Podlaží
Izieb
Osoby
Úžitková plocha
Cena projektu
Cena na kľúč
Cena stavby svojpomocne
| Popis | Hodnota |
|---|---|
| Počet osôb | 5 |
| Orientácia vchodu | J. JZ |
| Podlaží | 2 |
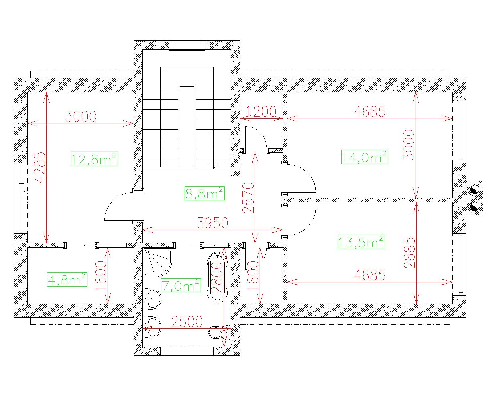
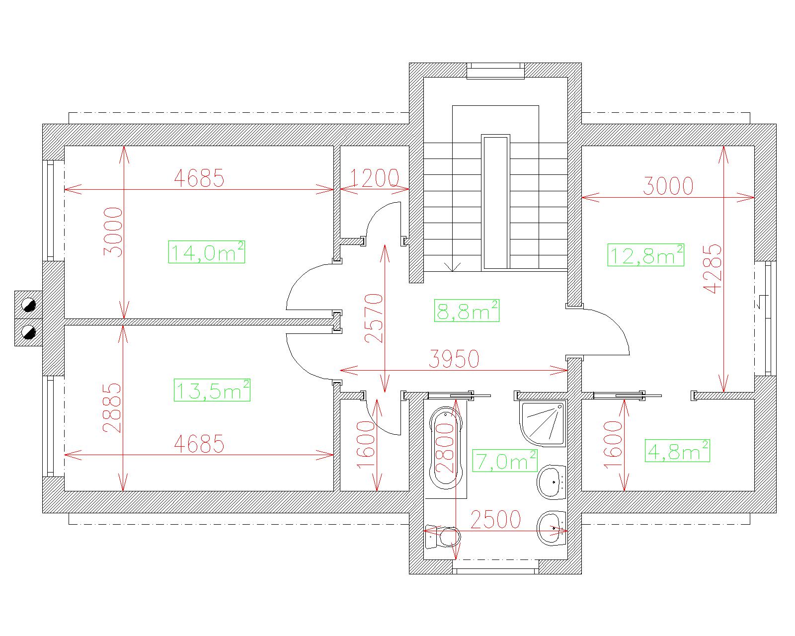
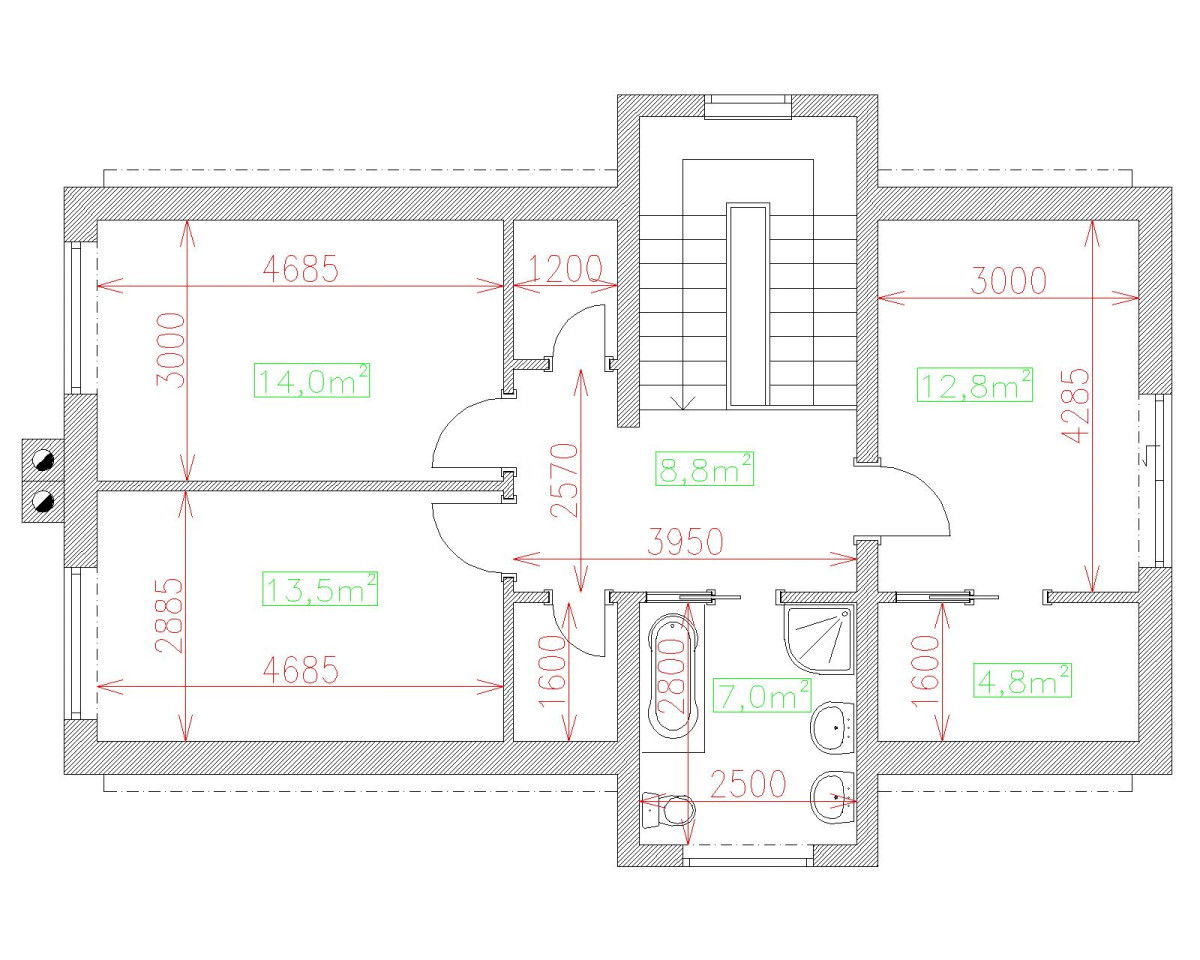
| Počet obytných izieb | 5 |
| Obostavaný priestor | 610 m2 |
| Celková úžitková plocha | 144 m2 |
| Celková obytná plocha | 81.8 m2 |
| Zastavaná plocha | 94.7 m3 |
| Výška hrebeňa strechy | 7.4 |
| Sklon strechy | 40 |
| Cena projektu | € 1 320 |
| Cena stavby na kľúč | € 170 000 |


