Podlaží
Izieb
Osoby
Úžitková plocha
Cena projektu
Cena na kľúč
Cena stavby svojpomocne
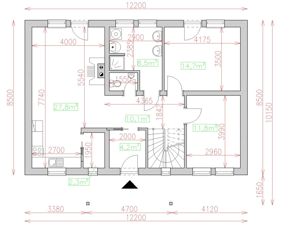
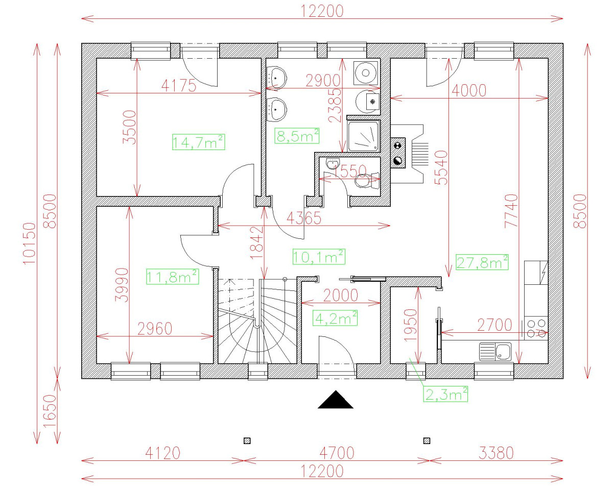
| Popis | Hodnota |
|---|---|
| Počet osôb | 6 |
| Orientácia vchodu | V.SV |
| Podlaží | 2 |
| Počet obytných izieb | 5 |
| Obostavaný priestor | 600 m2 |
| Celková úžitková plocha | 138.1 m2 |
| Celková obytná plocha | 74.8 m2 |
| Zastavaná plocha | 103.7 m3 |
| Výška hrebeňa strechy | 6.9 |
| Sklon strechy | 30 |
| Cena projektu | € 1 330 |
| Cena stavby na kľúč | € 185 500 |


