Podlaží
Izieb
Osoby
Úžitková plocha
Cena projektu
Cena na kľúč
Cena stavby svojpomocne
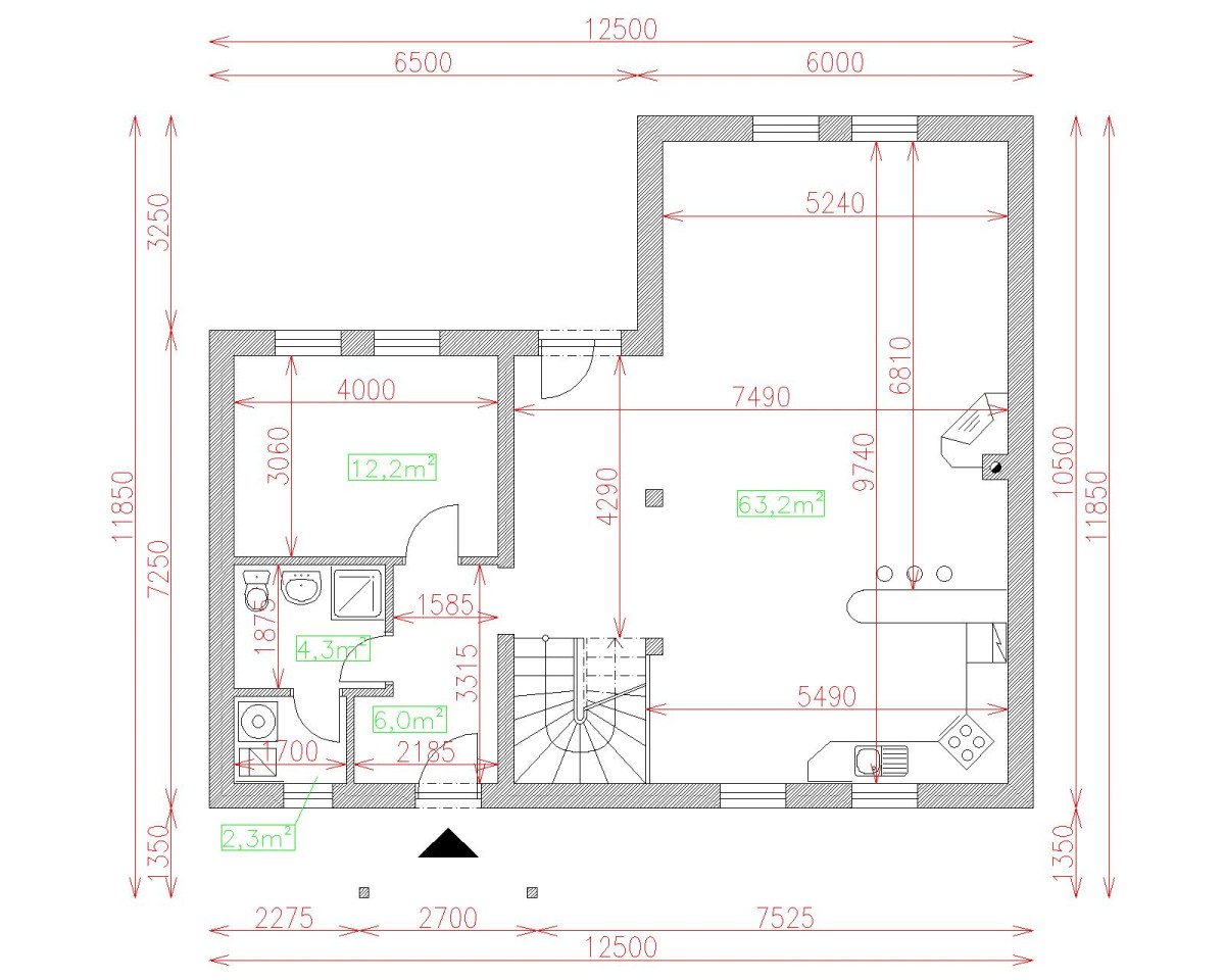
| Popis | Hodnota |
|---|---|
| Počet osôb | 5 |
| Orientácia vchodu | V.SV |
| Podlaží | 2 |
| Počet obytných izieb | 5 |
| Obostavaný priestor | 670 m2 |
| Celková úžitková plocha | 172.9 m2 |
| Celková obytná plocha | 116 m2 |
| Zastavaná plocha | 110.1 m3 |
| Výška hrebeňa strechy | 7 |
| Sklon strechy | 35 |
| Cena projektu | € 1 330 |
| Cena stavby na kľúč | € 196 000 |


