Podlaží
Izieb
Osoby
Úžitková plocha
Cena projektu
Cena na kľúč
Cena stavby svojpomocne
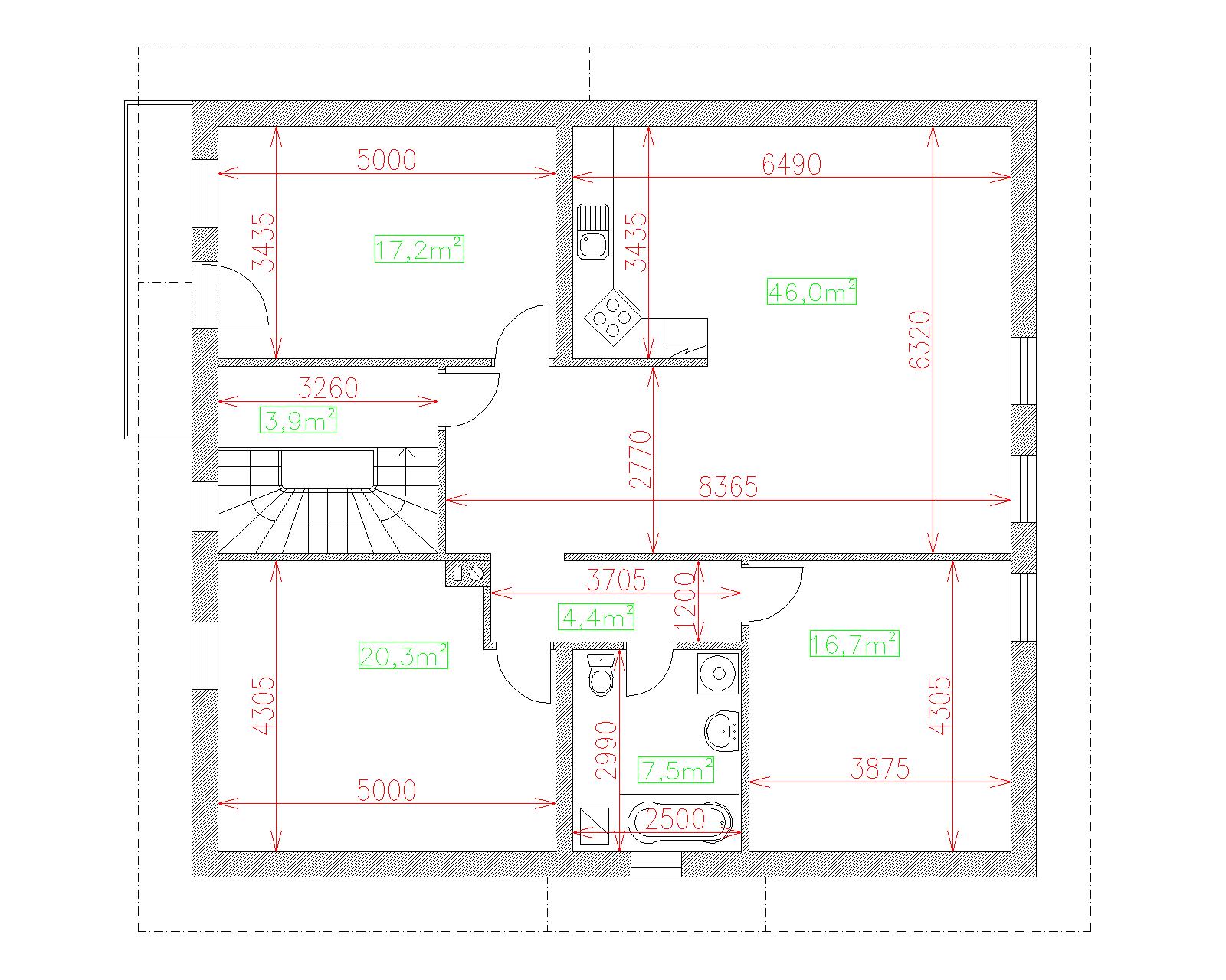
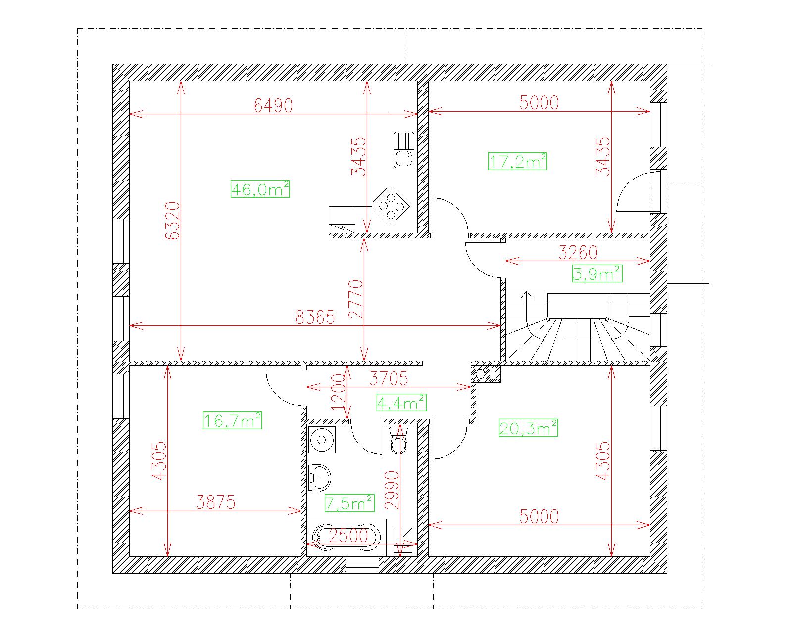
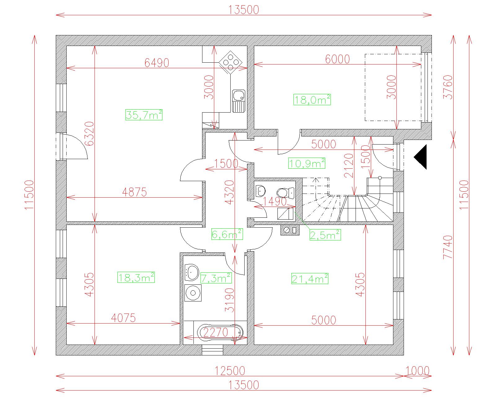
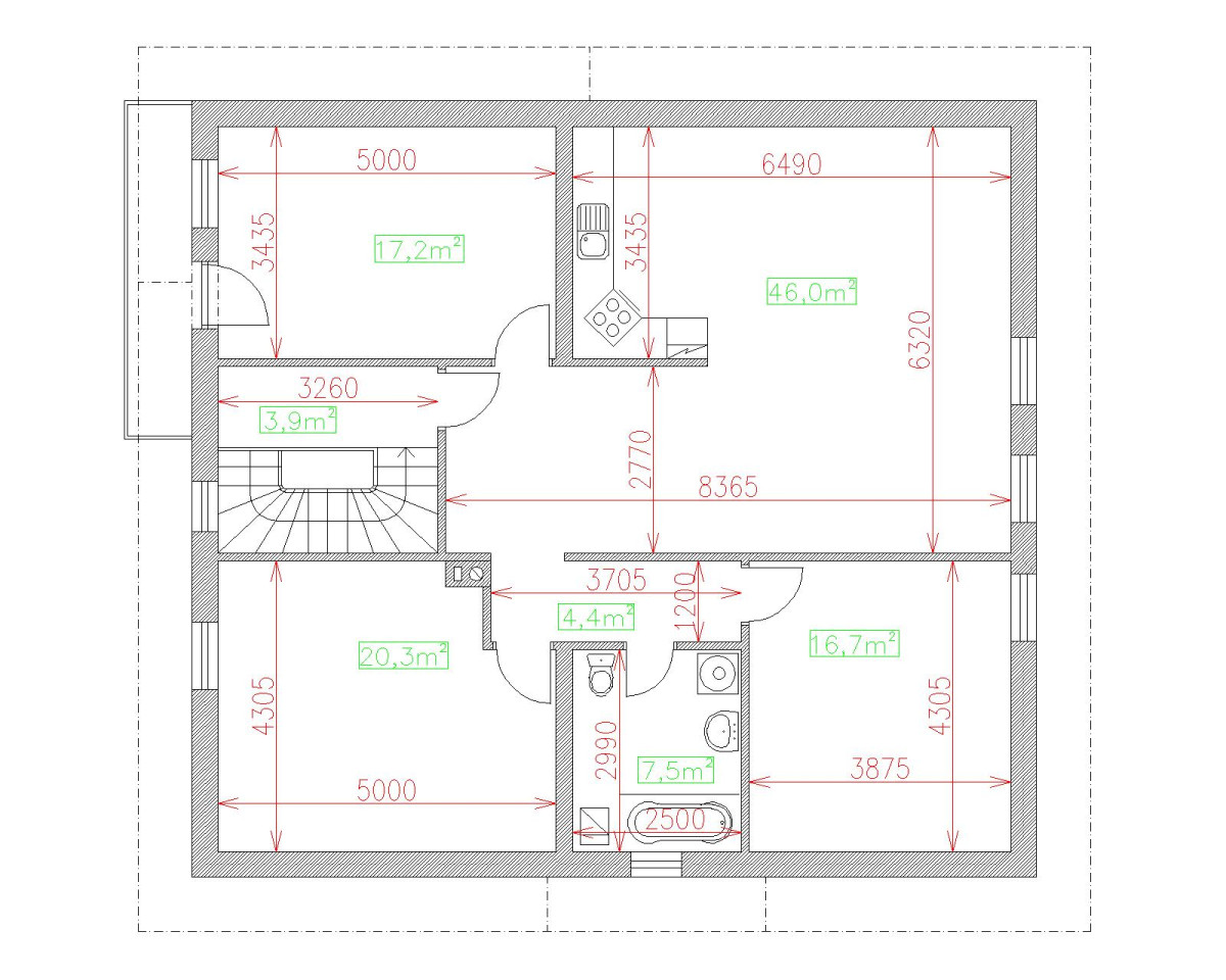
| Popis | Hodnota |
|---|---|
| Počet osôb | 2 |
| Orientácia vchodu | V |
| Podlaží | 2 |
| Počet obytných izieb | 7 |
| Obostavaný priestor | 990 m2 |
| Celková úžitková plocha | 246 m2 |
| Celková obytná plocha | 163.9 m2 |
| Zastavaná plocha | 147.5 m3 |
| Výška hrebeňa strechy | 8.4 |
| Sklon strechy | 35 |
| Cena projektu | € 1 400 |
| Cena stavby na kľúč | € 263 000 |


