Podlaží
Izieb
Osoby
Úžitková plocha
Cena projektu
Cena na kľúč
Cena stavby svojpomocne
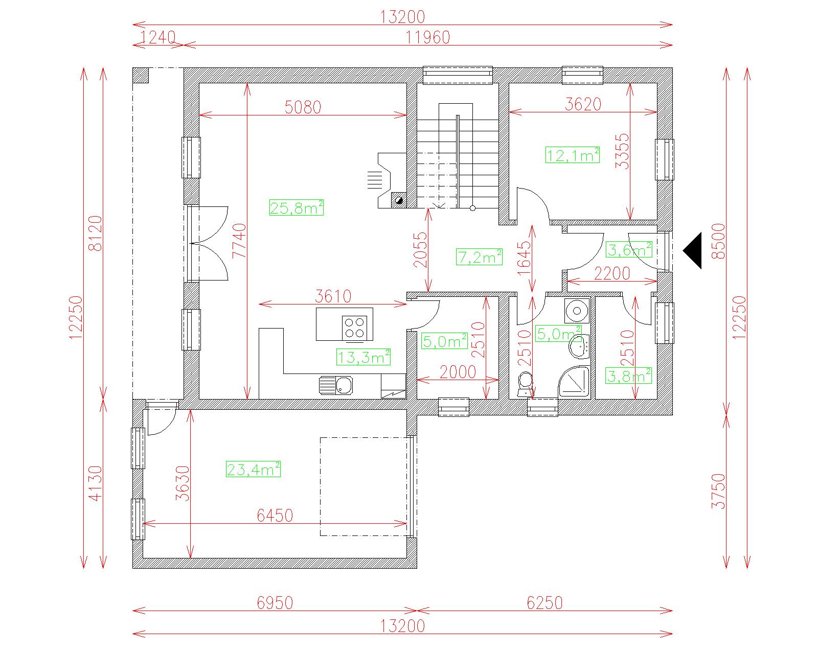
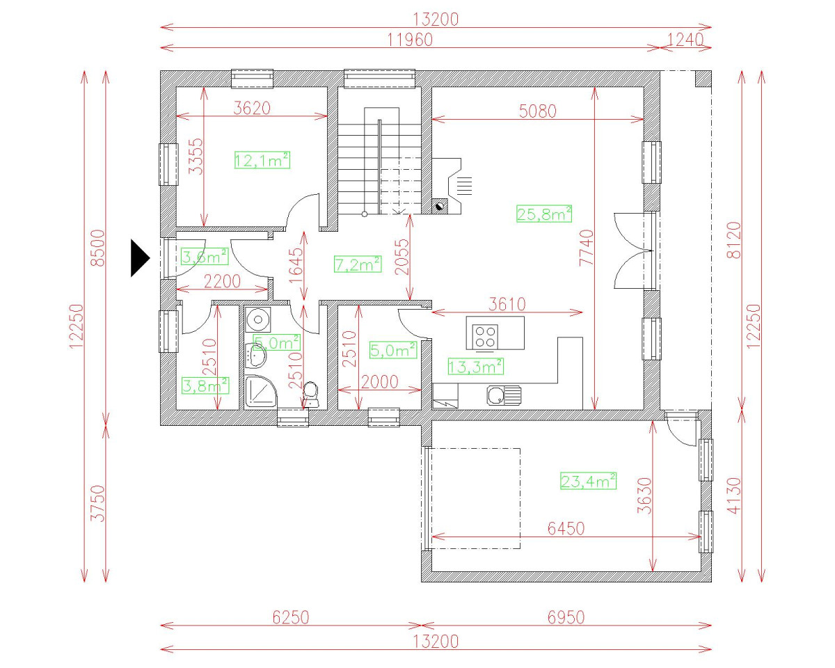
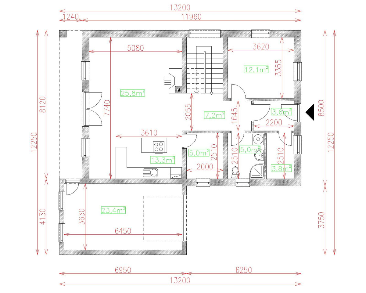
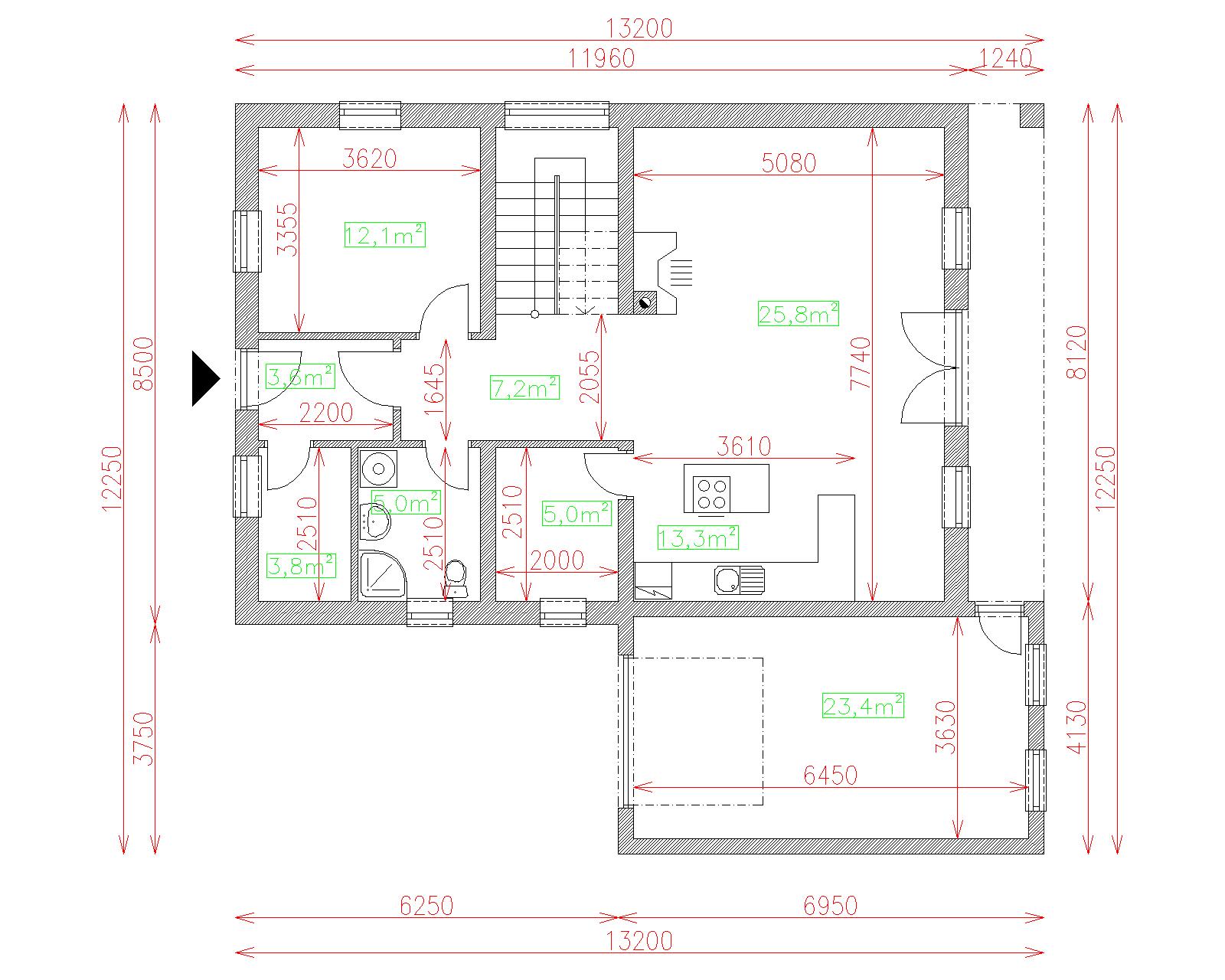
| Popis | Hodnota |
|---|---|
| Počet osôb | 6 |
| Orientácia vchodu | V. Z |
| Podlaží | 2 |
| Počet obytných izieb | 6 |
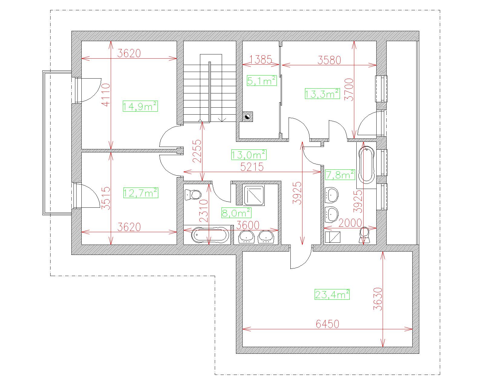
| Obostavaný priestor | 710 m2 |
| Celková úžitková plocha | 222.7 m2 |
| Celková obytná plocha | 103.8 m2 |
| Zastavaná plocha | 128.2 m3 |
| Výška hrebeňa strechy | 7.4 |
| Sklon strechy | 35 |
| Cena projektu | € 1 350 |
| Cena stavby na kľúč | € 229 000 |


