Podlaží
Izieb
Osoby
Úžitková plocha
Cena projektu
Cena na kľúč
Cena stavby svojpomocne
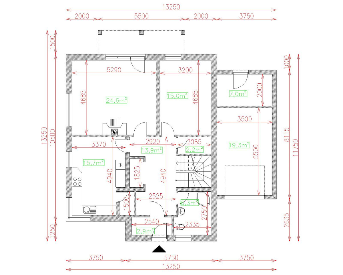
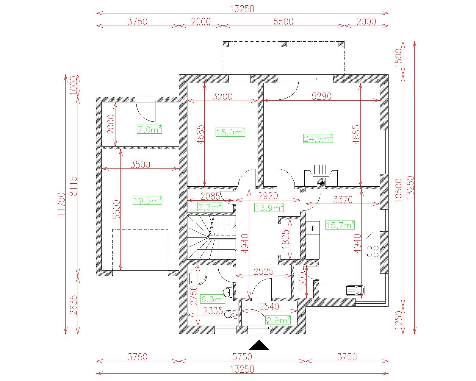
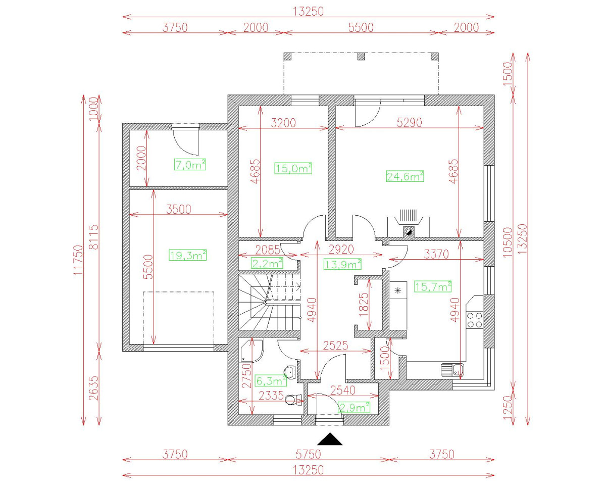
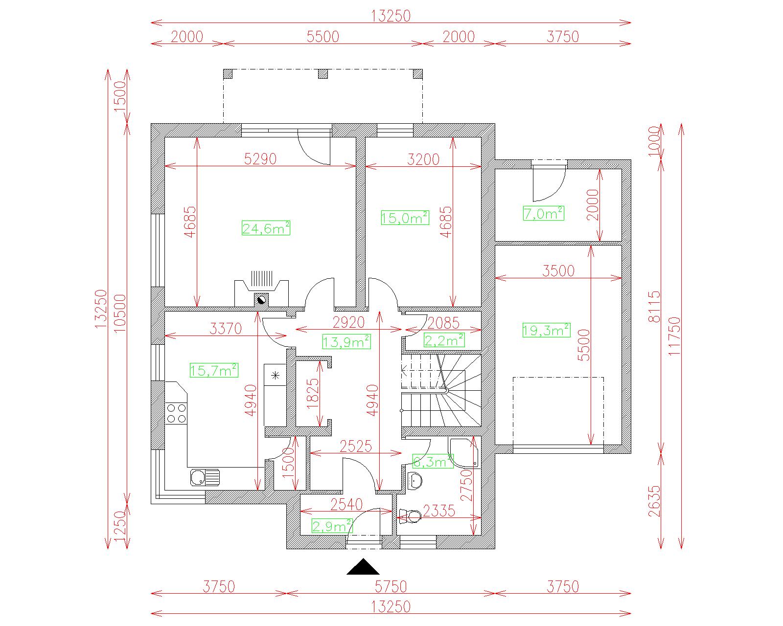
| Popis | Hodnota |
|---|---|
| Počet osôb | 6 |
| Orientácia vchodu | S. SV |
| Podlaží | 2 |
| Počet obytných izieb | 6 |
| Obostavaný priestor | 920 m2 |
| Celková úžitková plocha | 235.9 m2 |
| Celková obytná plocha | 127 m2 |
| Zastavaná plocha | 137.4 m3 |
| Výška hrebeňa strechy | 8.3 |
| Sklon strechy | 35 |
| Cena projektu | € 1 330 |
| Cena stavby na kľúč | € 245 000 |


