Podlaží
Izieb
Osoby
Úžitková plocha
Cena projektu
Cena na kľúč
Cena stavby svojpomocne
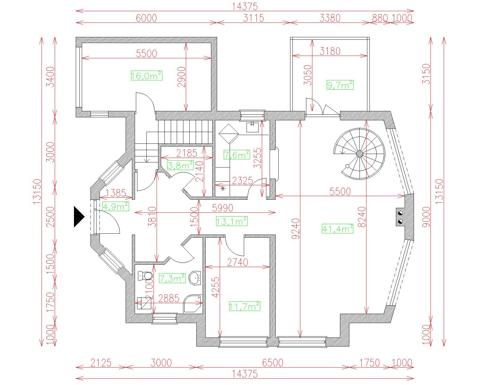
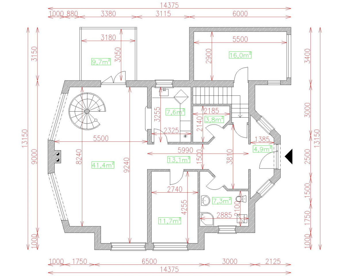
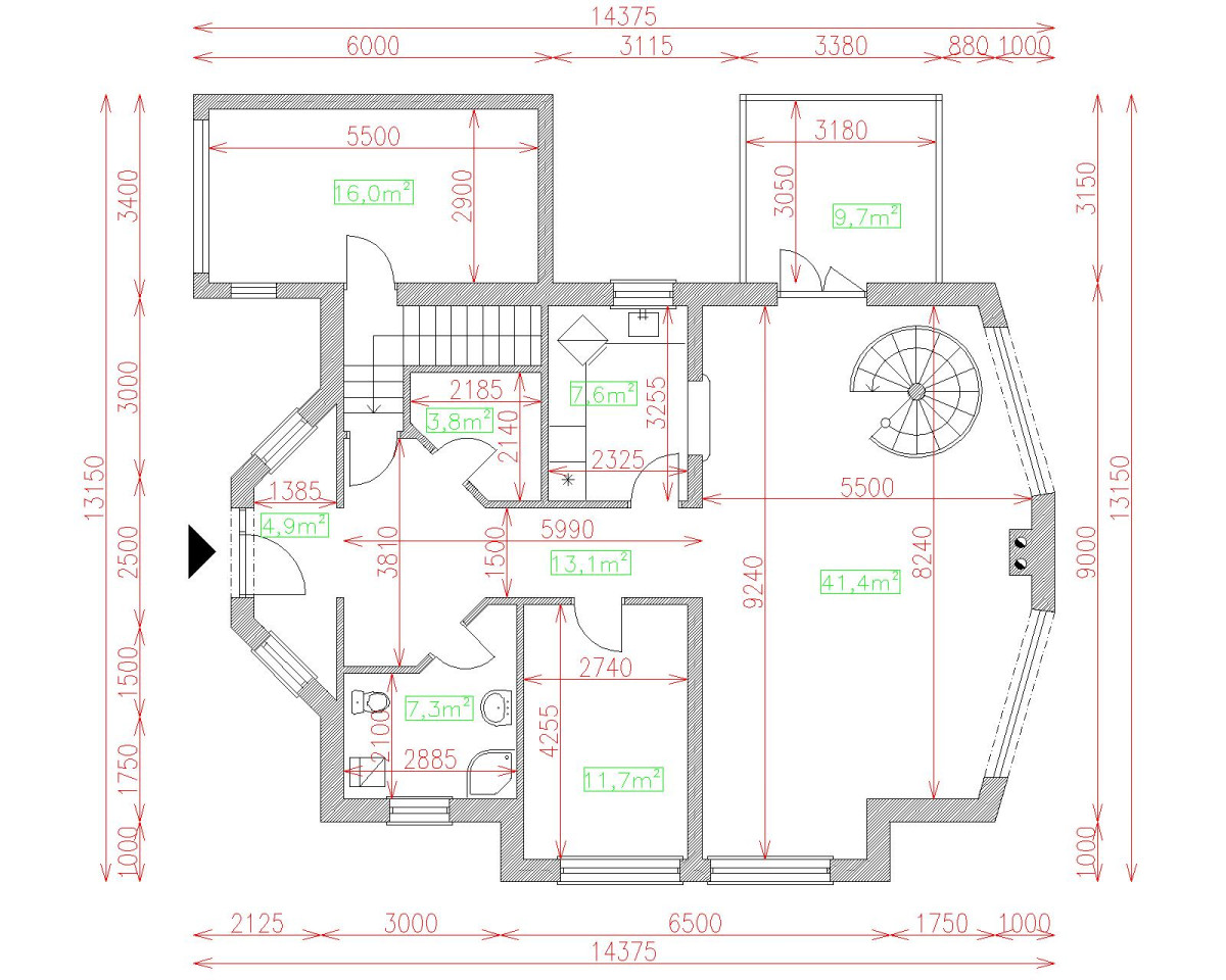
| Popis | Hodnota |
|---|---|
| Počet osôb | 4 |
| Orientácia vchodu | V |
| Podlaží | 3 |
| Počet obytných izieb | 5 |
| Obostavaný priestor | 940 m2 |
| Celková úžitková plocha | 247 m2 |
| Celková obytná plocha | 106.4 m2 |
| Zastavaná plocha | 149.3 m3 |
| Výška hrebeňa strechy | 7.5 |
| Sklon strechy | 35 |
| Cena projektu | € 1 900 |
| Cena stavby na kľúč | € 346 000 |


