Podlaží
Izieb
Osoby
Úžitková plocha
Cena projektu
Cena na kľúč
Cena stavby svojpomocne
| Popis | Hodnota |
|---|---|
| Počet osôb | 5 |
| Orientácia vchodu | V. SV |
| Podlaží | 2 |
| Počet obytných izieb | 5 |
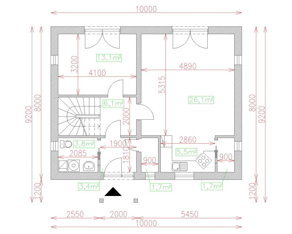
| Obostavaný priestor | 500 m2 |
| Celková úžitková plocha | 124.9 m2 |
| Celková obytná plocha | 84.6 m2 |
| Zastavaná plocha | 80 m3 |
| Výška hrebeňa strechy | 7.6 |
| Sklon strechy | 40 |
| Cena projektu | € 2 520 |
| Cena stavby na kľúč | € 144 000 |


