Podlaží
Izieb
Osoby
Úžitková plocha
Cena projektu
Cena na kľúč
Cena stavby svojpomocne
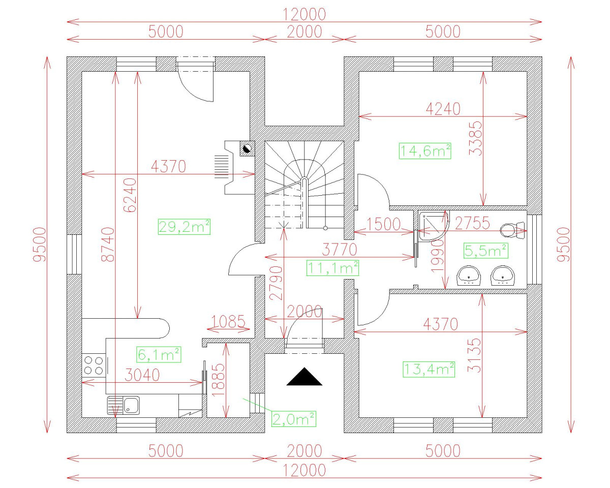
| Popis | Hodnota |
|---|---|
| Počet osôb | 6 |
| Orientácia vchodu | V. JV |
| Podlaží | 2 |
| Počet obytných izieb | 6 |
| Obostavaný priestor | 690 m2 |
| Celková úžitková plocha | 167.6 m2 |
| Celková obytná plocha | 94.8 m2 |
| Zastavaná plocha | 106.5 m3 |
| Výška hrebeňa strechy | 6.5 |
| Sklon strechy | 0 |
| Cena projektu | € 2 480 |
| Cena stavby na kľúč | € 190 000 |


