Podlaží
Izieb
Osoby
Úžitková plocha
Cena projektu
Cena na kľúč
Cena stavby svojpomocne
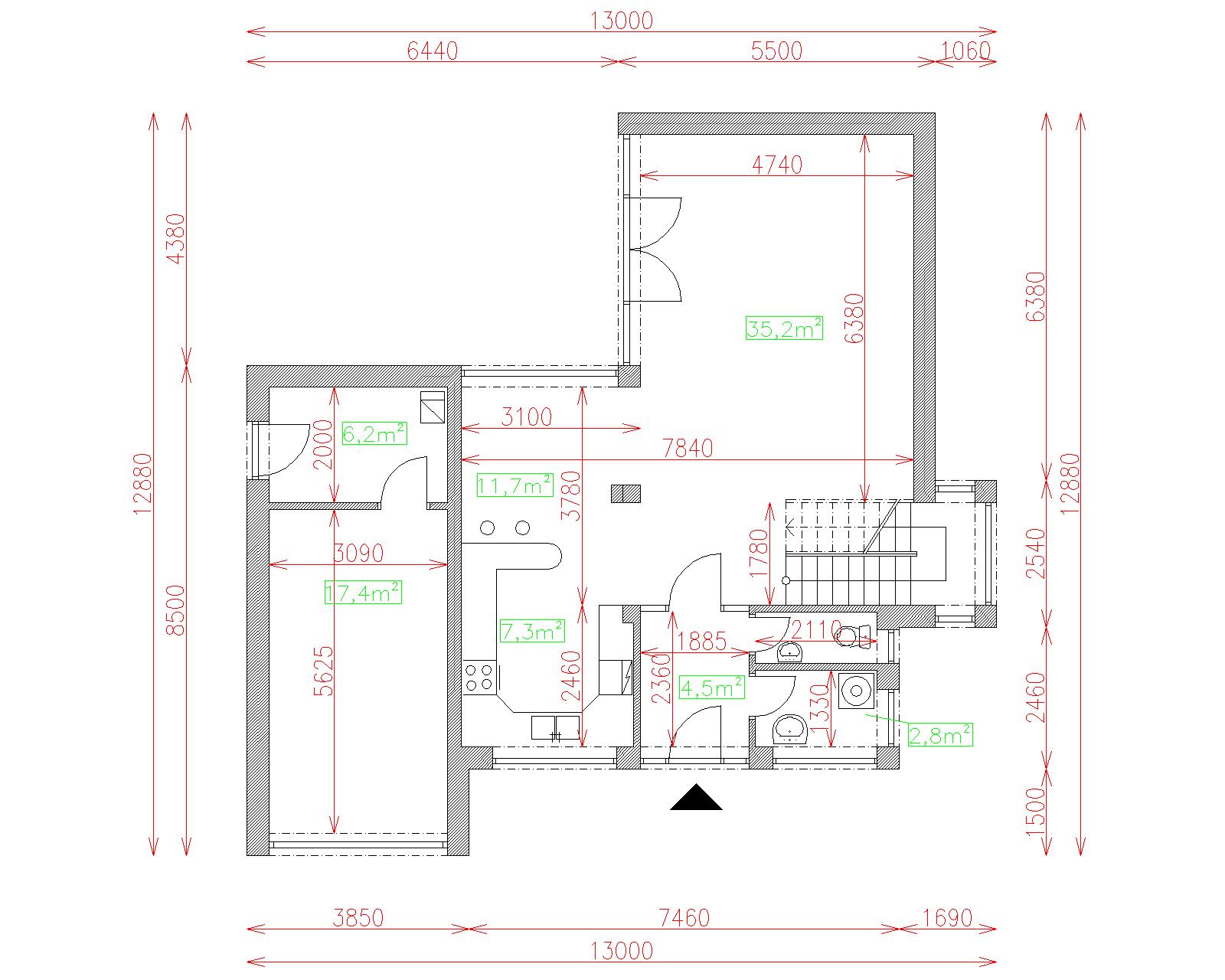
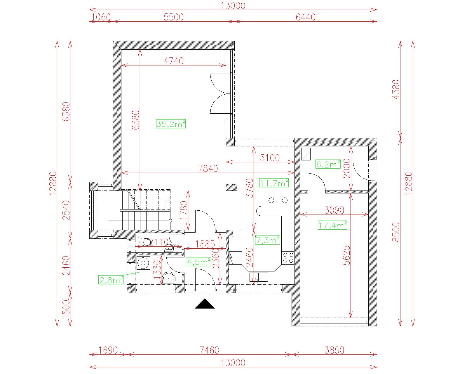
| Popis | Hodnota |
|---|---|
| Počet osôb | 4 |
| Orientácia vchodu | S.SV |
| Podlaží | 2 |
| Počet obytných izieb | 4 |
| Obostavaný priestor | 630 m2 |
| Celková úžitková plocha | 187.8 m2 |
| Celková obytná plocha | 86.7 m2 |
| Zastavaná plocha | 114.6 m3 |
| Výška hrebeňa strechy | 6.8 |
| Sklon strechy | 0 |
| Cena projektu | € 1 360 |
| Cena stavby na kľúč | € 205 000 |


