Podlaží
Izieb
Osoby
Úžitková plocha
Cena projektu
Cena na kľúč
Cena stavby svojpomocne
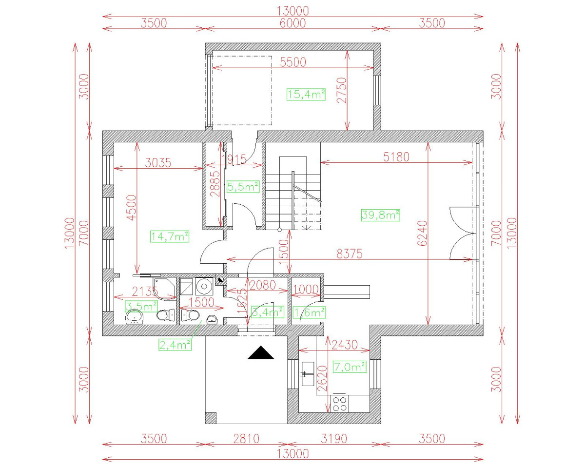
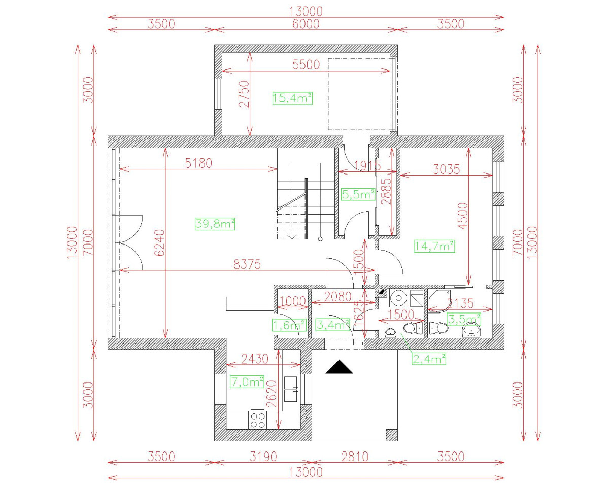
| Popis | Hodnota |
|---|---|
| Počet osôb | 5 |
| Orientácia vchodu | J.JV |
| Podlaží | 2 |
| Počet obytných izieb | 5 |
| Obostavaný priestor | 770 m2 |
| Celková úžitková plocha | 198.4 m2 |
| Celková obytná plocha | 97.7 m2 |
| Zastavaná plocha | 118.6 m3 |
| Výška hrebeňa strechy | 7.8 |
| Sklon strechy | 0 |
| Cena projektu | € 1 360 |
| Cena stavby na kľúč | € 212 000 |


