Podlaží
Izieb
Osoby
Úžitková plocha
Cena projektu
Cena na kľúč
Cena stavby svojpomocne
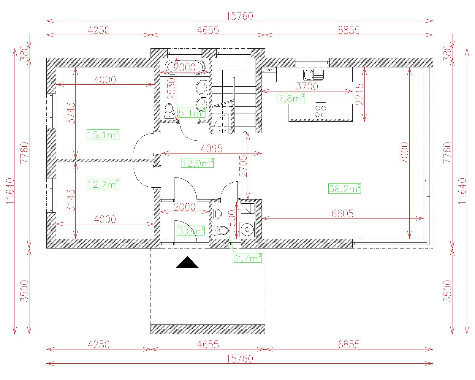
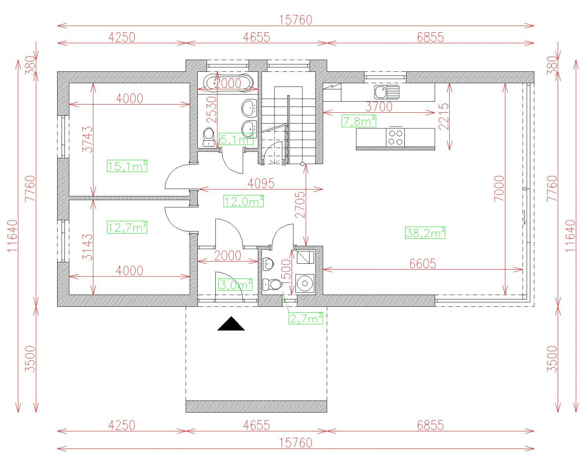
| Popis | Hodnota |
|---|---|
| Počet osôb | 4 |
| Orientácia vchodu | S. J |
| Podlaží | 2 |
| Počet obytných izieb | 4 |
| Obostavaný priestor | 700 m2 |
| Celková úžitková plocha | 140 m2 |
| Celková obytná plocha | 87 m2 |
| Zastavaná plocha | 124.1 m3 |
| Výška hrebeňa strechy | 6.7 |
| Sklon strechy | 0 |
| Cena projektu | € 1 440 |
| Cena stavby na kľúč | € 170 000 |


