Podlaží
Izieb
Osoby
Úžitková plocha
Cena projektu
Cena na kľúč
Cena stavby svojpomocne
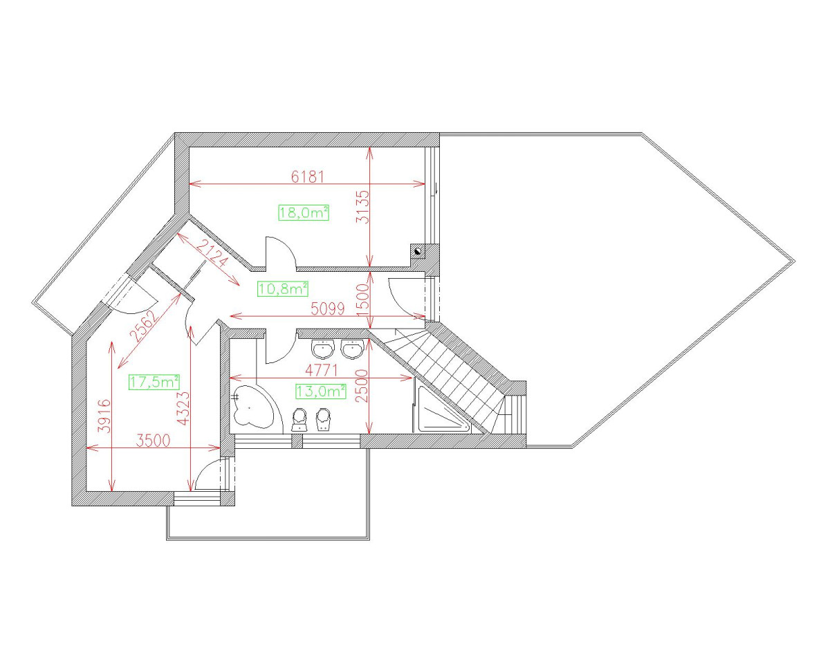
| Popis | Hodnota |
|---|---|
| Počet osôb | 4 |
| Orientácia vchodu | J.JZ |
| Podlaží | 2 |
| Počet obytných izieb | 4 |
| Obostavaný priestor | 680 m2 |
| Celková úžitková plocha | 234.8 m2 |
| Celková obytná plocha | 97.9 m2 |
| Zastavaná plocha | 131.7 m3 |
| Výška hrebeňa strechy | 6.7 |
| Sklon strechy | 0 |
| Cena projektu | € 2 800 |
| Cena stavby na kľúč | € 280 500 |


