Podlaží
Izieb
Osoby
Úžitková plocha
Cena projektu
Cena na kľúč
Cena stavby svojpomocne
| Popis | Hodnota |
|---|---|
| Počet osôb | 4 |
| Orientácia vchodu | J.S |
| Podlaží | 2 |
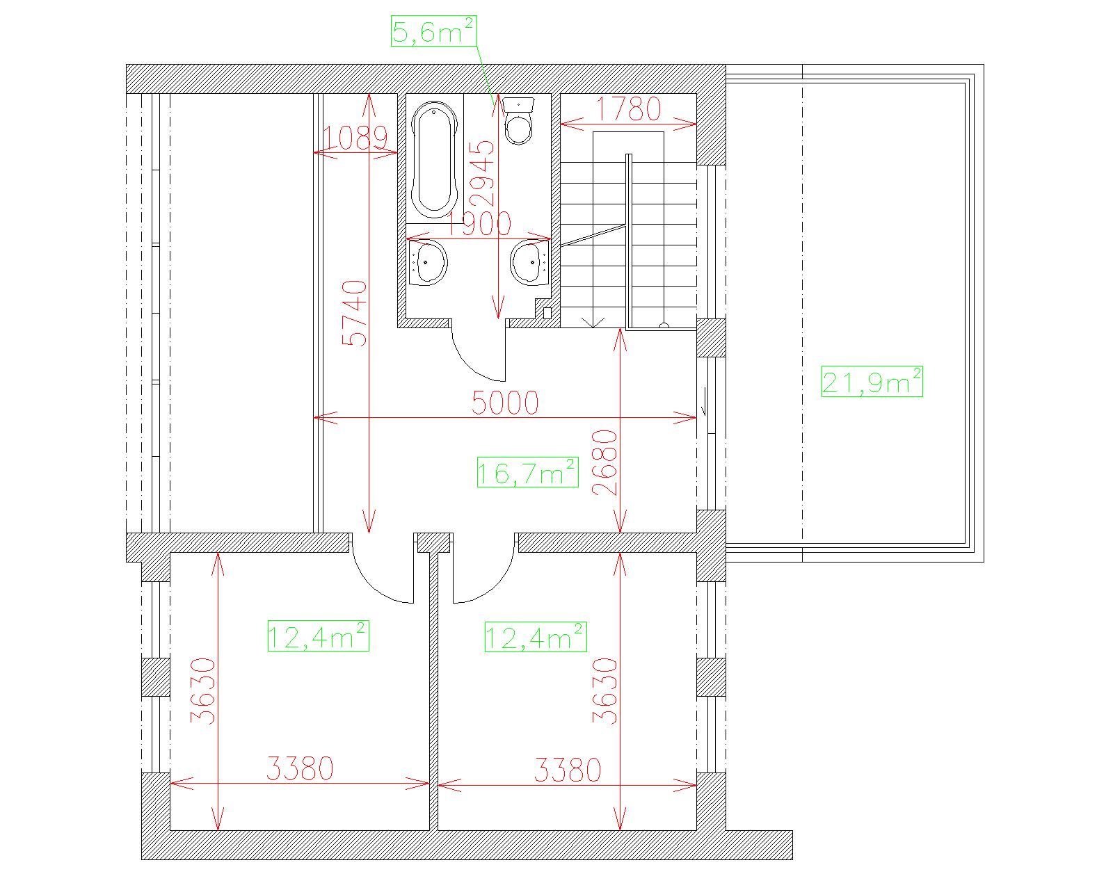
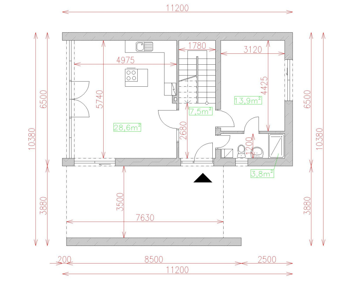
| Počet obytných izieb | 4 |
| Obostavaný priestor | 500 m2 |
| Celková úžitková plocha | 128.2 m2 |
| Celková obytná plocha | 55.3 m2 |
| Zastavaná plocha | 71.7 m3 |
| Výška hrebeňa strechy | 6.9 |
| Sklon strechy | 0 |
| Cena projektu | € 1 280 |
| Cena stavby na kľúč | € 143 000 |


