Podlaží
Izieb
Osoby
Úžitková plocha
Cena projektu
Cena na kľúč
Cena stavby svojpomocne
| Popis | Hodnota |
|---|---|
| Počet osôb | 4 |
| Orientácia vchodu | V.JV |
| Podlaží | 2 |
| Počet obytných izieb | 4 |
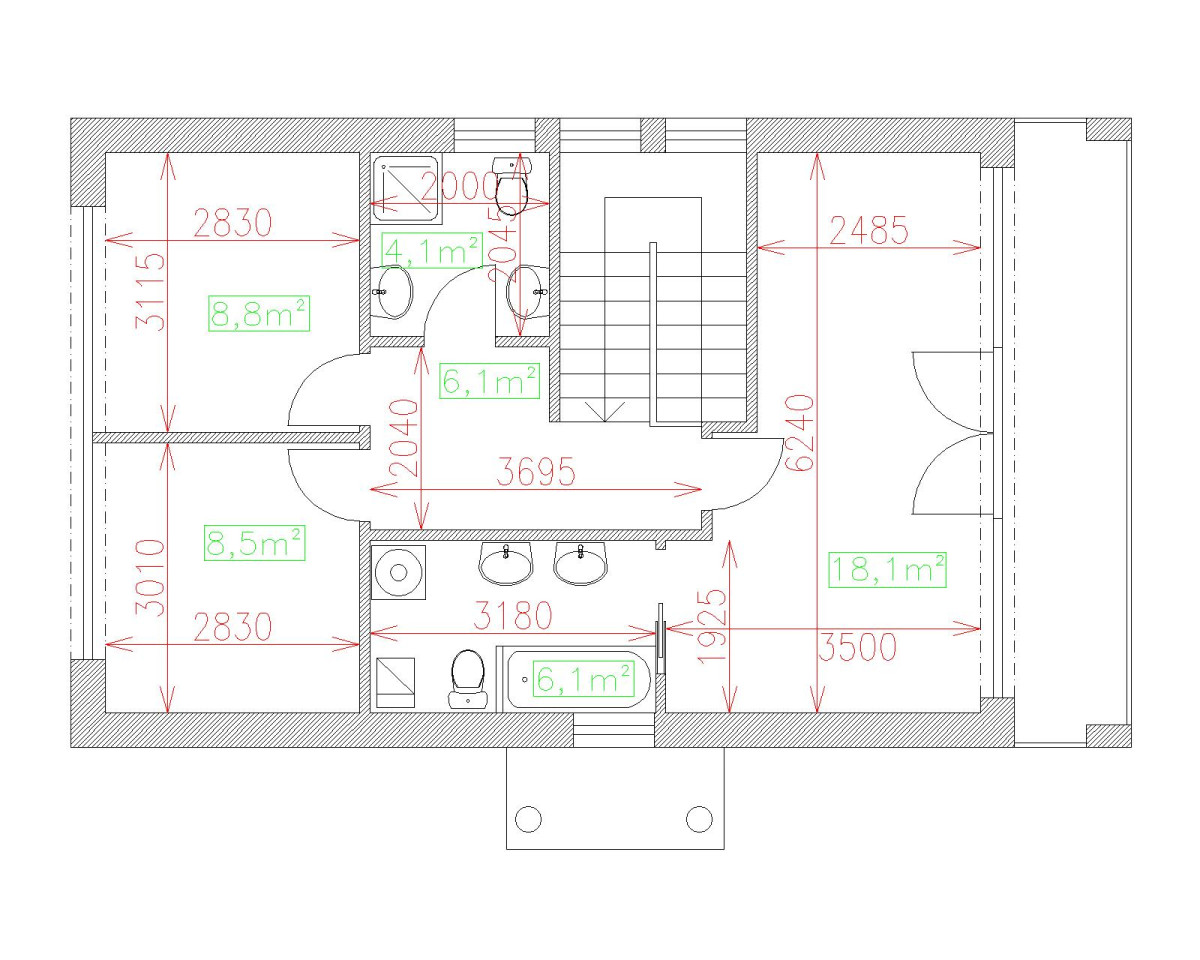
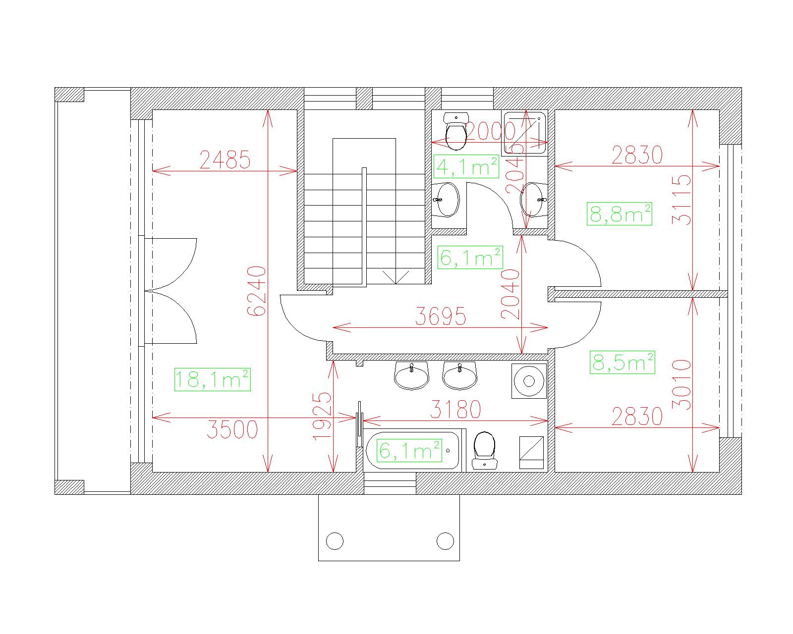
| Obostavaný priestor | 478 m2 |
| Celková úžitková plocha | 123.8 m2 |
| Celková obytná plocha | 69.6 m2 |
| Zastavaná plocha | 73.5 m3 |
| Výška hrebeňa strechy | 6.8 |
| Sklon strechy | 0 |
| Cena projektu | € 2 470 |
| Cena stavby na kľúč | € 132 500 |


