Podlaží
Izieb
Osoby
Úžitková plocha
Cena projektu
Cena na kľúč
Cena stavby svojpomocne
| Popis | Hodnota |
|---|---|
| Počet osôb | 4 |
| Orientácia vchodu | V |
| Podlaží | 2 |
| Počet obytných izieb | 4 |
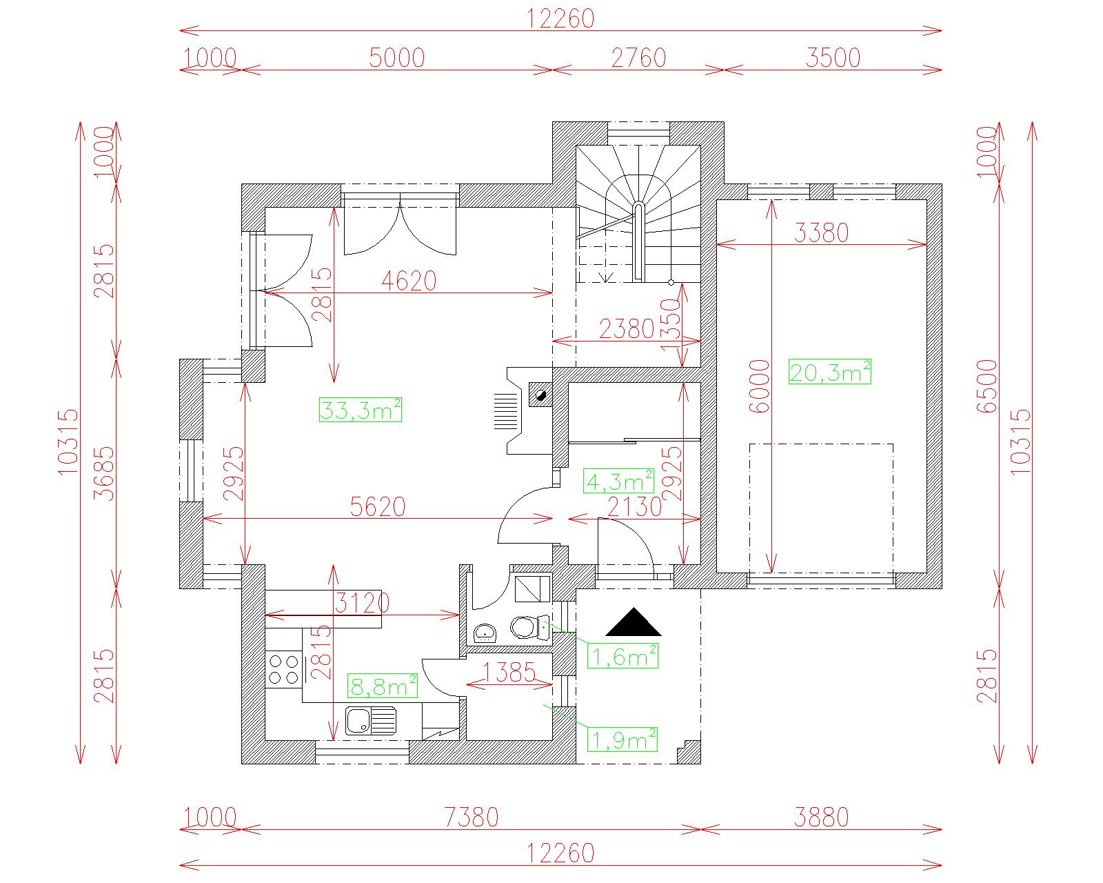
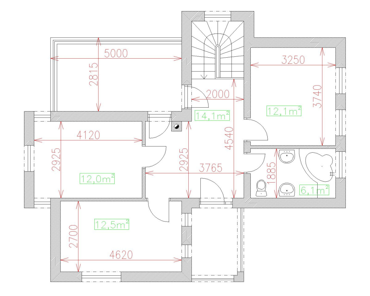
| Obostavaný priestor | 564 m2 |
| Celková úžitková plocha | 155.7 m2 |
| Celková obytná plocha | 72.2 m2 |
| Zastavaná plocha | 94.8 m3 |
| Výška hrebeňa strechy | 6.1 |
| Sklon strechy | 0 |
| Cena projektu | € 1 280 |
| Cena stavby na kľúč | € 160 000 |


