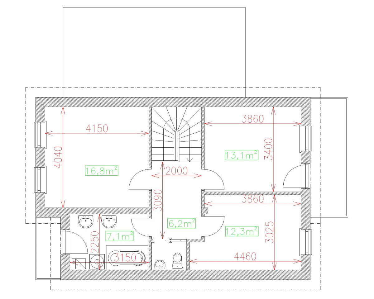
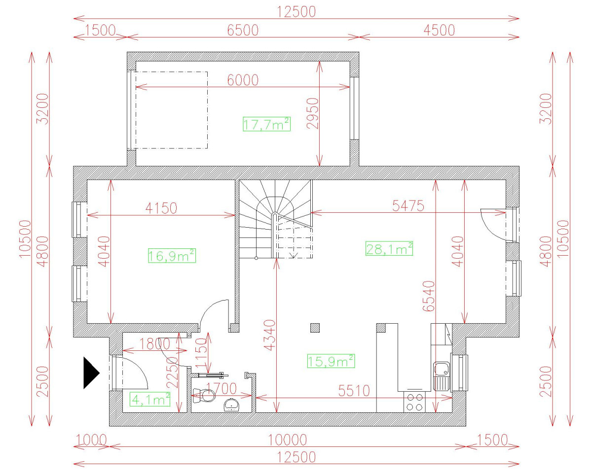
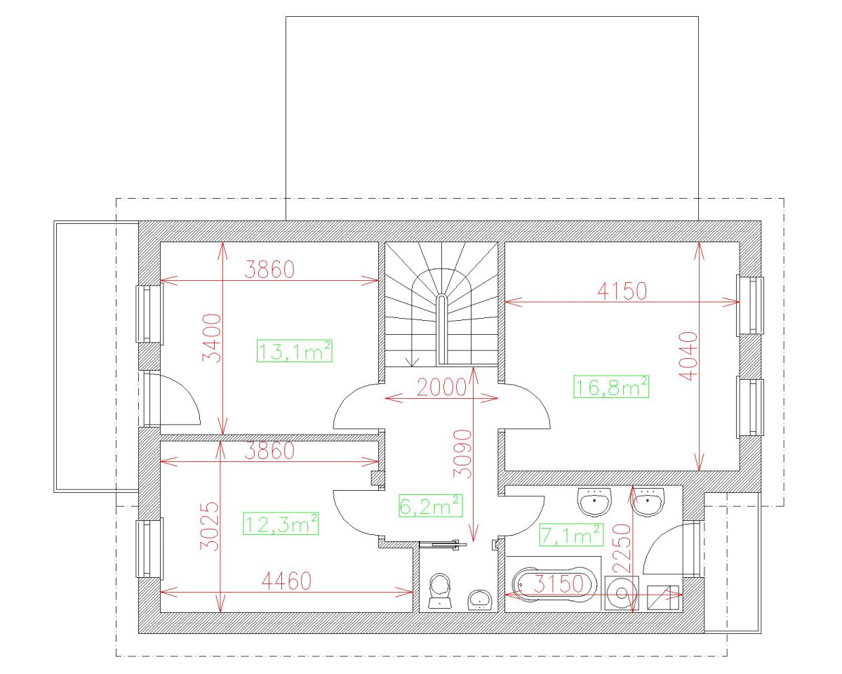
Podlaží
Izieb
Osoby
Úžitková plocha
Cena projektu
Cena na kľúč
Cena stavby svojpomocne
| Popis | Hodnota |
|---|---|
| Počet osôb | 5 |
| Orientácia vchodu | V.JV |
| Podlaží | 2 |
| Počet obytných izieb | 5 |
| Obostavaný priestor | 540 m2 |
| Celková úžitková plocha | 155.6 m2 |
| Celková obytná plocha | 87.2 m2 |
| Zastavaná plocha | 105.8 m3 |
| Výška hrebeňa strechy | 7.2 |
| Sklon strechy | 18 |
| Cena projektu | € 1 310 |
| Cena stavby na kľúč | € 189 000 |


