Podlaží
Izieb
Osoby
Úžitková plocha
Cena projektu
Cena na kľúč
Cena stavby svojpomocne
| Popis | Hodnota |
|---|---|
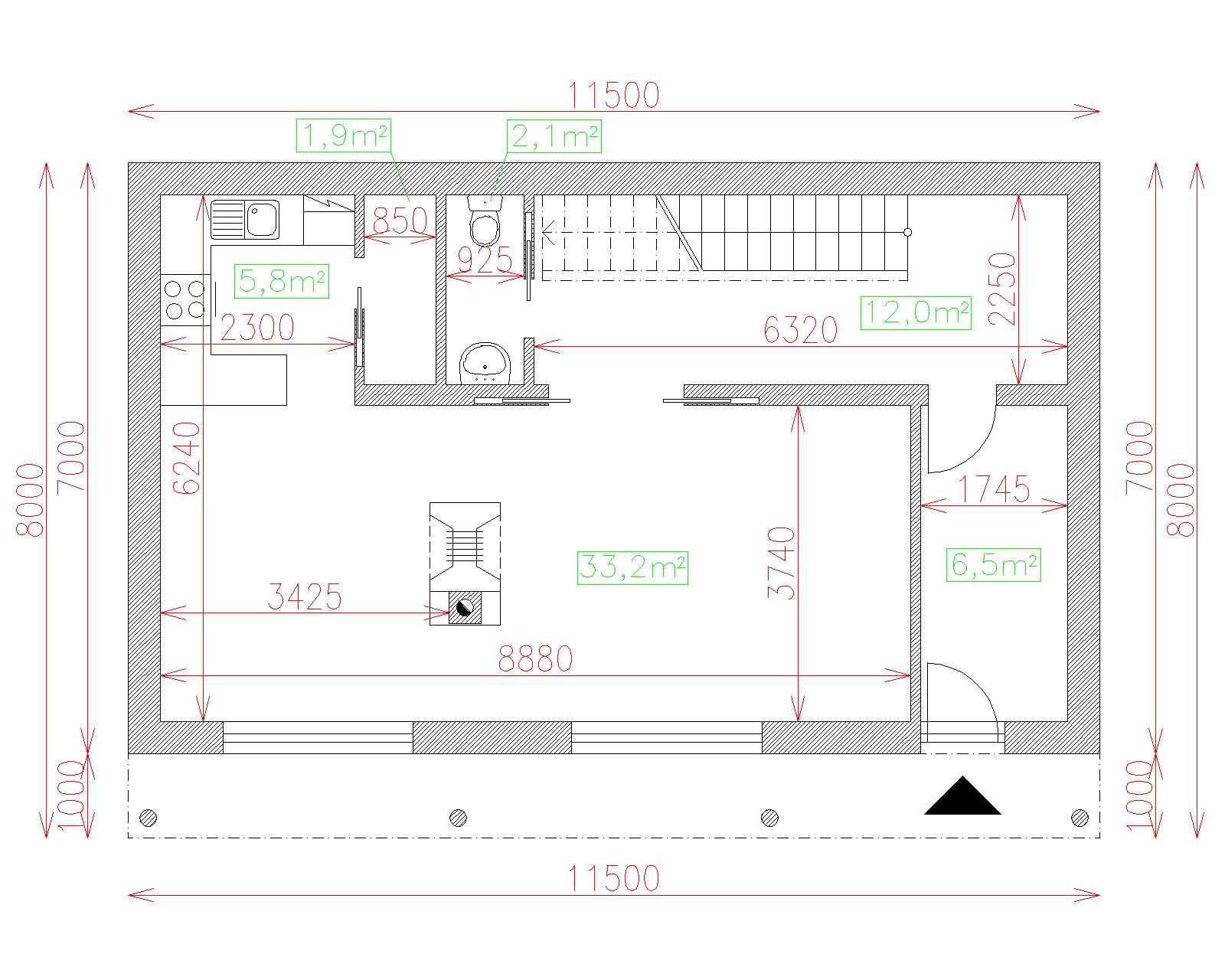
| Počet osôb | 4 |
| Orientácia vchodu | J |
| Podlaží | 2 |
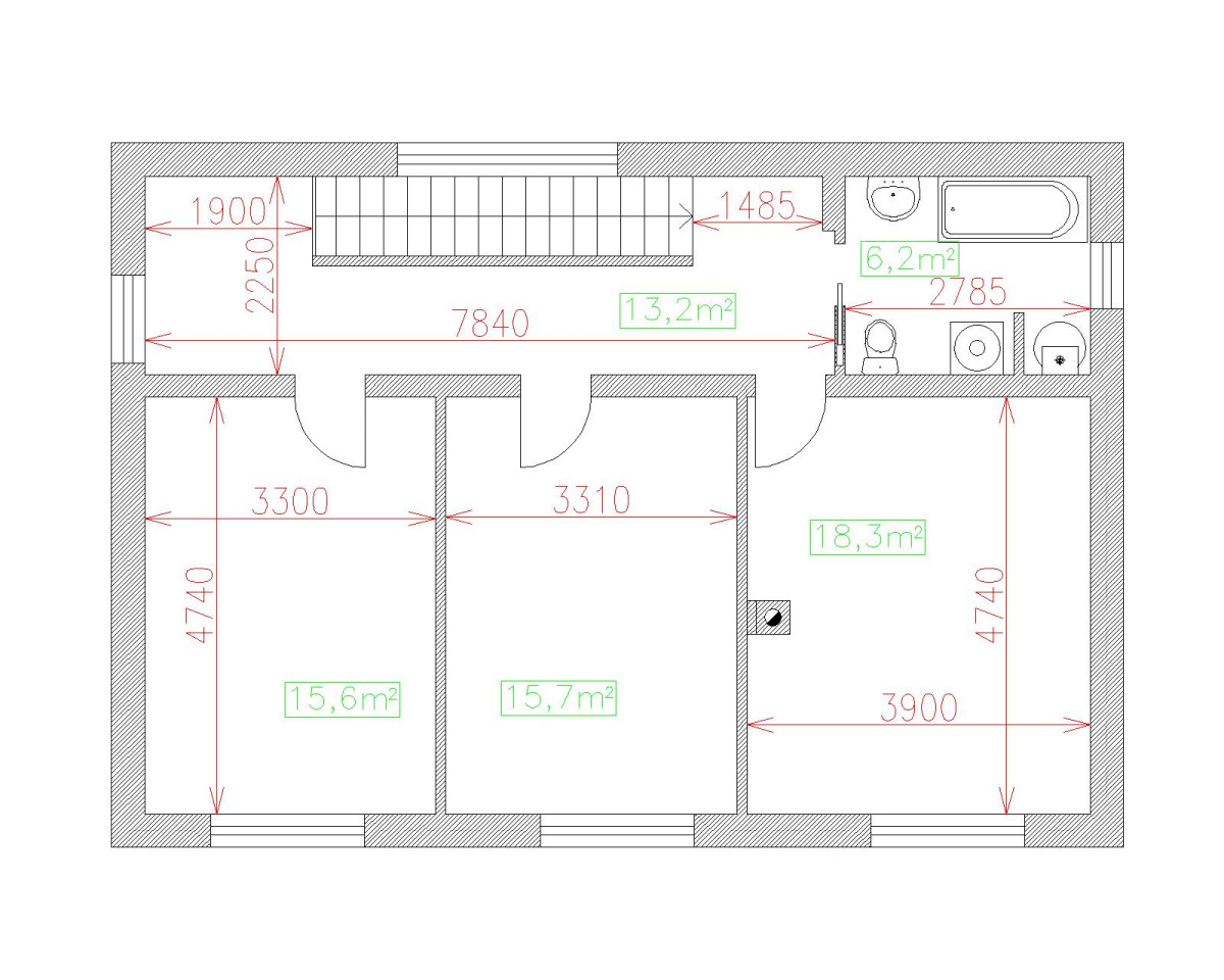
| Počet obytných izieb | 4 |
| Obostavaný priestor | 610 m2 |
| Celková úžitková plocha | 135.4 m2 |
| Celková obytná plocha | 82.8 m2 |
| Zastavaná plocha | 80.5 m3 |
| Výška hrebeňa strechy | 6.9 |
| Sklon strechy | 7 |
| Cena projektu | € 2 420 |
| Cena stavby na kľúč | € 145 000 |


