Podlaží
Izieb
Osoby
Úžitková plocha
Cena projektu
Cena na kľúč
Cena stavby svojpomocne
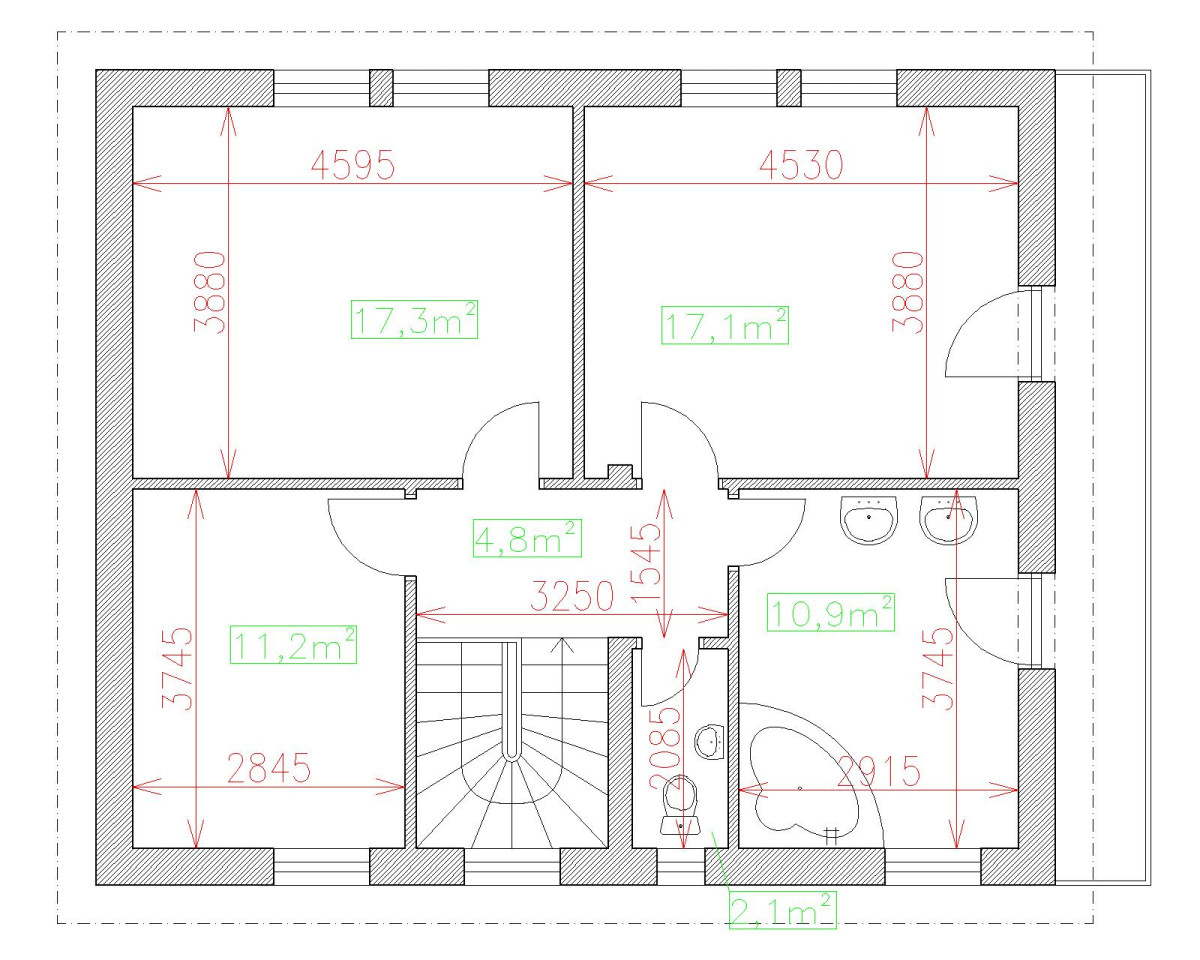
| Popis | Hodnota |
|---|---|
| Počet osôb | 5 |
| Orientácia vchodu | V. SV |
| Podlaží | 2 |
| Počet obytných izieb | 5 |
| Obostavaný priestor | 530 m2 |
| Celková úžitková plocha | 140.1 m2 |
| Celková obytná plocha | 89 m2 |
| Zastavaná plocha | 85 m3 |
| Výška hrebeňa strechy | 7 |
| Sklon strechy | 10 |
| Cena projektu | € 1 280 |
| Cena stavby na kľúč | € 153 000 |


