Podlaží
Izieb
Osoby
Úžitková plocha
Cena projektu
Cena na kľúč
Cena stavby svojpomocne
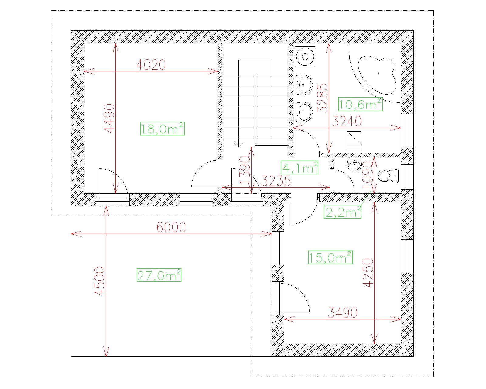
| Popis | Hodnota |
|---|---|
| Počet osôb | 4 |
| Orientácia vchodu | J.JV |
| Podlaží | 2 |
| Počet obytných izieb | 4 |
| Obostavaný priestor | 465 m2 |
| Celková úžitková plocha | 151.5 m2 |
| Celková obytná plocha | 72.3 m2 |
| Zastavaná plocha | 89.8 m3 |
| Výška hrebeňa strechy | 6.9 |
| Sklon strechy | 17 |
| Cena projektu | € 1 270 |
| Cena stavby na kľúč | € 161 000 |


