Podlaží
Izieb
Osoby
Úžitková plocha
Cena projektu
Cena na kľúč
Cena stavby svojpomocne
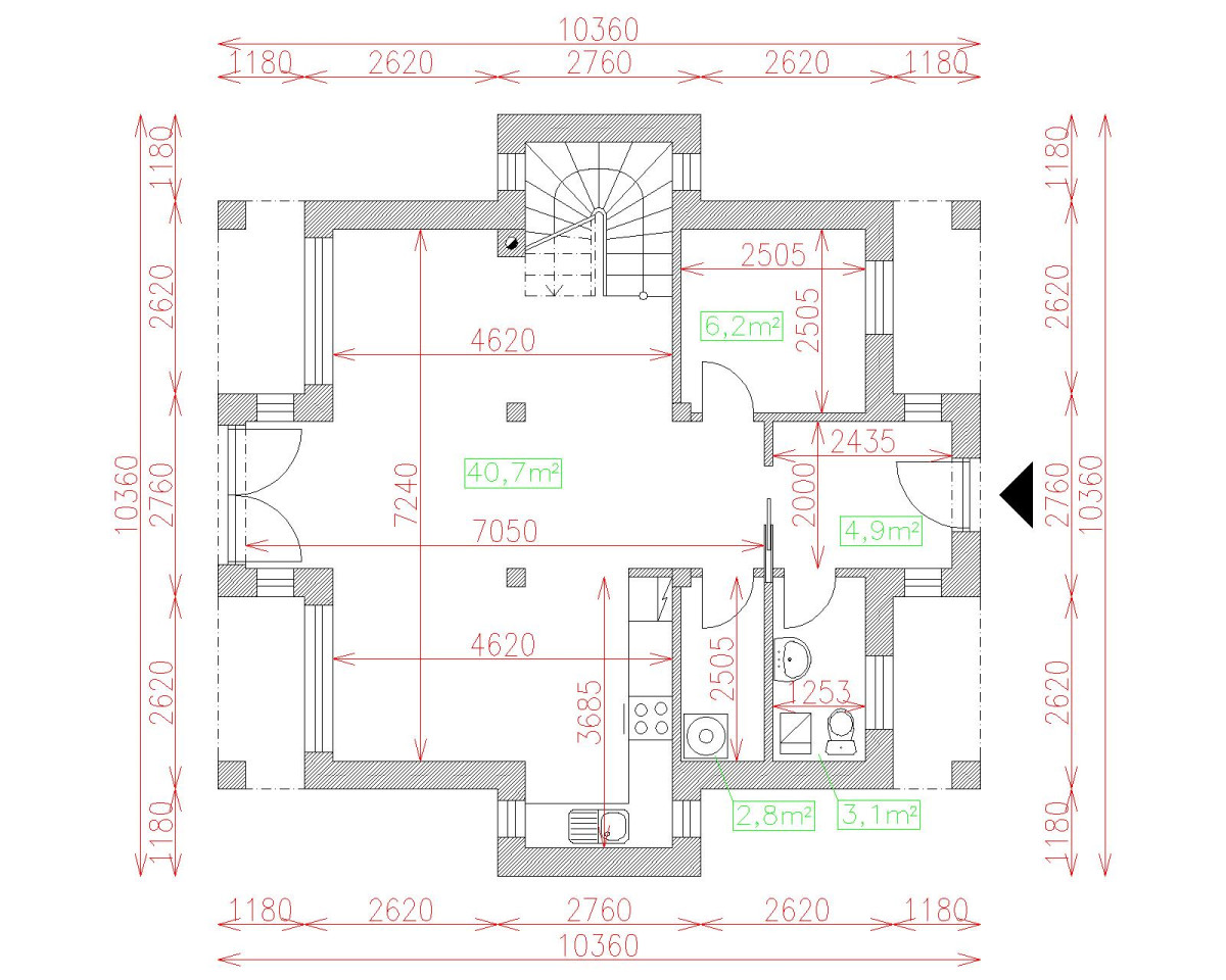
| Popis | Hodnota |
|---|---|
| Počet osôb | 5 |
| Orientácia vchodu | V |
| Podlaží | 2 |
| Počet obytných izieb | 6 |
| Obostavaný priestor | 635 m2 |
| Celková úžitková plocha | 129.2 m2 |
| Celková obytná plocha | 93.2 m2 |
| Zastavaná plocha | 77 m3 |
| Výška hrebeňa strechy | 7.9 |
| Sklon strechy | 22 |
| Cena projektu | € 2 400 |
| Cena stavby na kľúč | € 138 500 |


