Podlaží
Izieb
Osoby
Úžitková plocha
Cena projektu
Cena na kľúč
Cena stavby svojpomocne
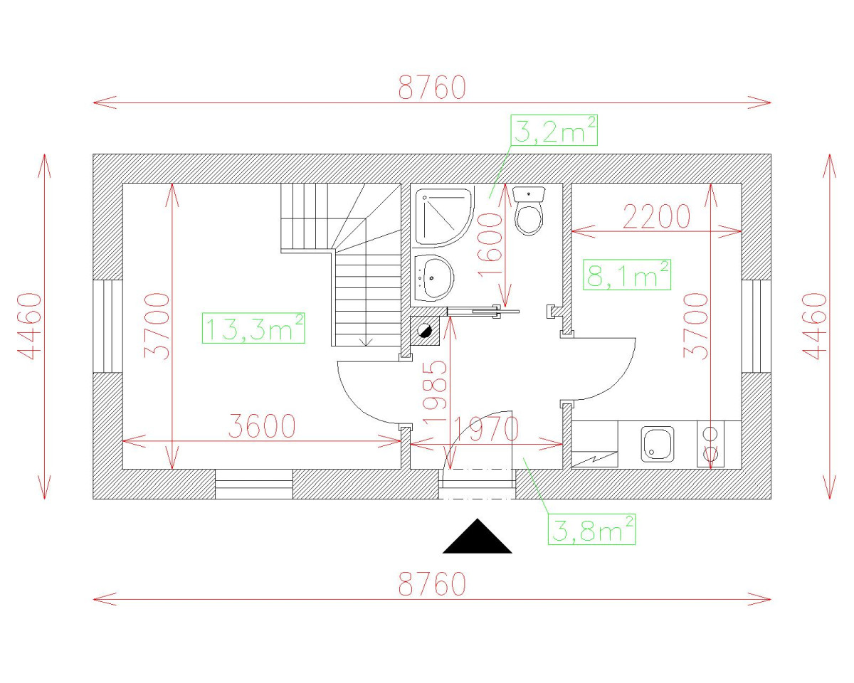
| Popis | Hodnota |
|---|---|
| Počet osôb | 4 |
| Orientácia vchodu | S. J |
| Podlaží | 2 |
| Počet obytných izieb | 3 |
| Obostavaný priestor | 220 m2 |
| Celková úžitková plocha | 56.6 m2 |
| Celková obytná plocha | 37.1 m2 |
| Zastavaná plocha | 39.1 m3 |
| Výška hrebeňa strechy | 6.3 |
| Sklon strechy | 45 |
| Cena projektu | € 970 |
| Cena stavby na kľúč | € 58 500 |


