Podlaží
Izieb
Osoby
Úžitková plocha
Cena projektu
Cena na kľúč
Cena stavby svojpomocne
| Popis | Hodnota |
|---|---|
| Počet osôb | 2 |
| Orientácia vchodu | S. J |
| Podlaží | 1 |
| Počet obytných izieb | 2 |
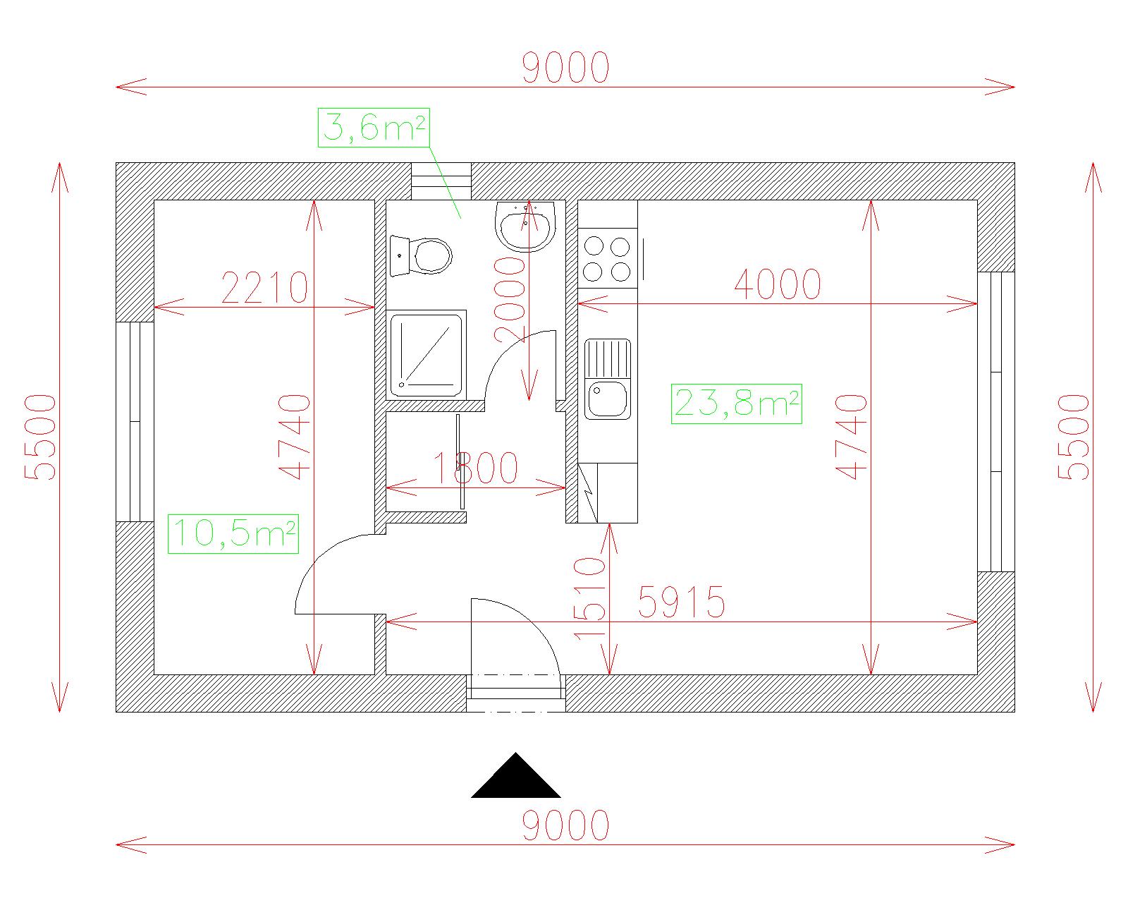
| Obostavaný priestor | 190 m2 |
| Celková úžitková plocha | 37.9 m2 |
| Celková obytná plocha | 29.5 m2 |
| Zastavaná plocha | 49.5 m3 |
| Výška hrebeňa strechy | 4.4 |
| Sklon strechy | 25 |
| Cena projektu | € 2 150 |
| Cena stavby na kľúč | € 46 000 |


