Podlaží
Izieb
Osoby
Úžitková plocha
Cena projektu
Cena na kľúč
Cena stavby svojpomocne
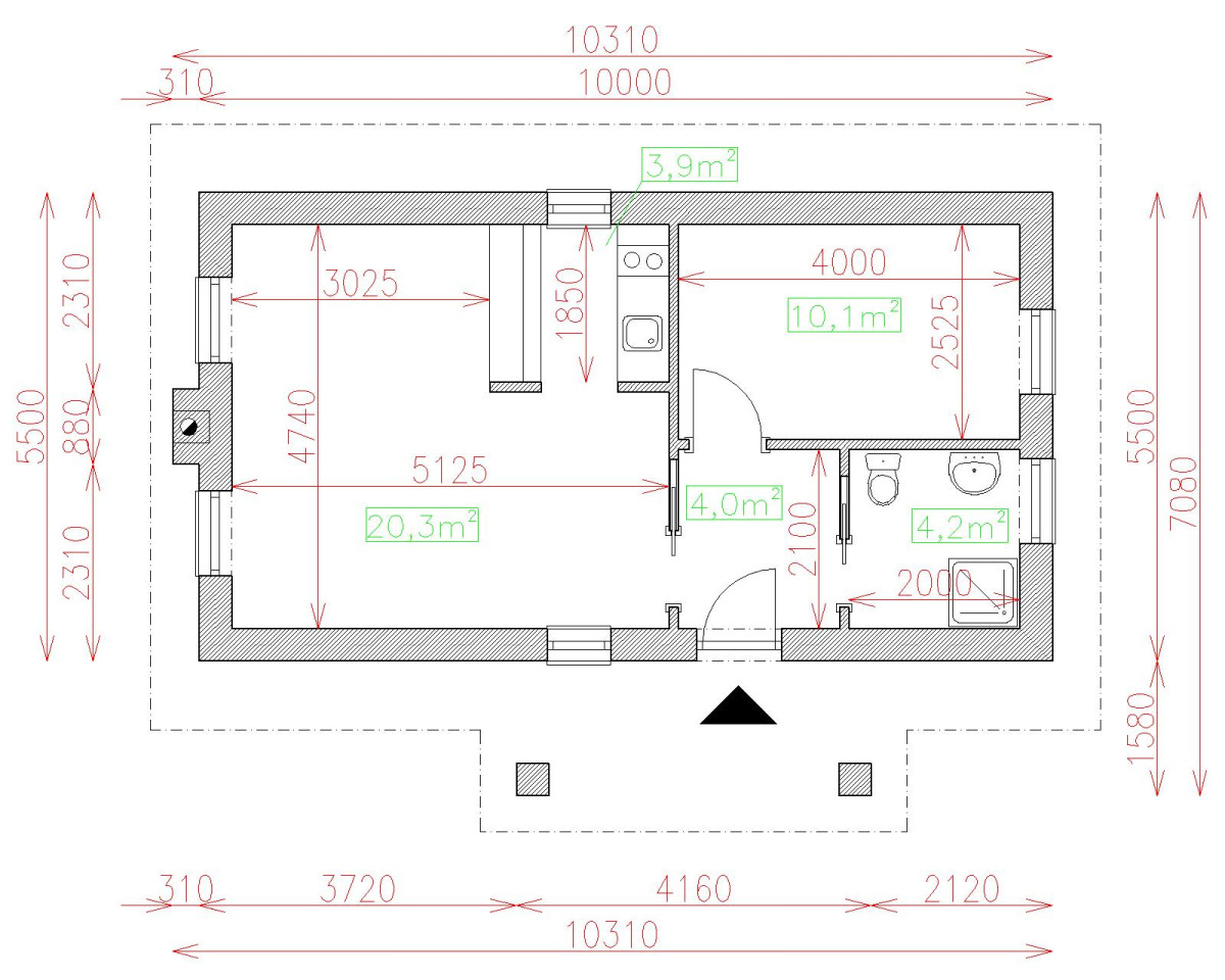
| Popis | Hodnota |
|---|---|
| Počet osôb | 4 |
| Orientácia vchodu | J. JV |
| Podlaží | 1 |
| Počet obytných izieb | 2 |
| Obostavaný priestor | 230 m2 |
| Celková úžitková plocha | 42.4 m2 |
| Celková obytná plocha | 30.8 m2 |
| Zastavaná plocha | 55.1 m3 |
| Výška hrebeňa strechy | 4.2 |
| Sklon strechy | 22 |
| Cena projektu | € 990 |
| Cena stavby na kľúč | € 50 500 |


