Podlaží
Izieb
Osoby
Úžitková plocha
Cena projektu
Cena na kľúč
Cena stavby svojpomocne
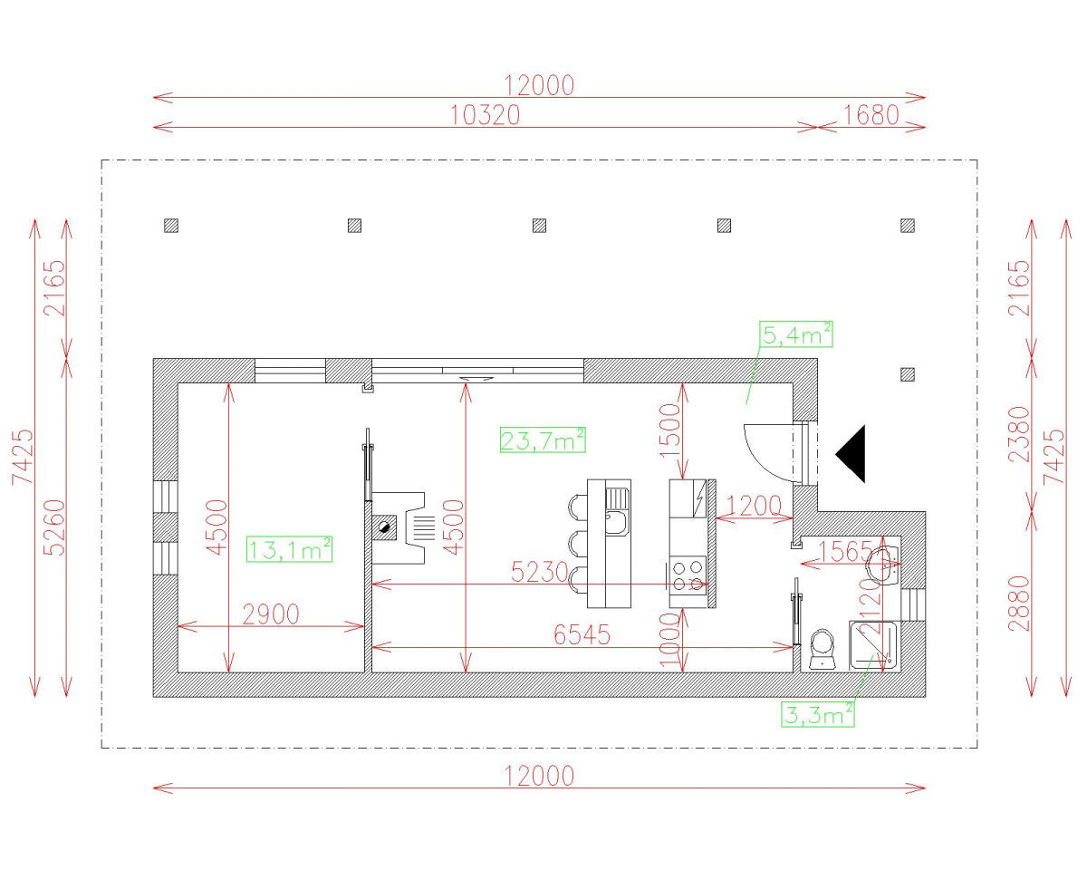
| Popis | Hodnota |
|---|---|
| Počet osôb | 3 |
| Orientácia vchodu | S. SV |
| Podlaží | 1 |
| Počet obytných izieb | 2 |
| Obostavaný priestor | 270 m2 |
| Celková úžitková plocha | 45.5 m2 |
| Celková obytná plocha | 38.4 m2 |
| Zastavaná plocha | 59.1 m3 |
| Výška hrebeňa strechy | 4.9 |
| Sklon strechy | 22 |
| Cena projektu | € 980 |
| Cena stavby na kľúč | € 54 000 |


