Podlaží
Izieb
Osoby
Úžitková plocha
Cena projektu
Cena na kľúč
Cena stavby svojpomocne
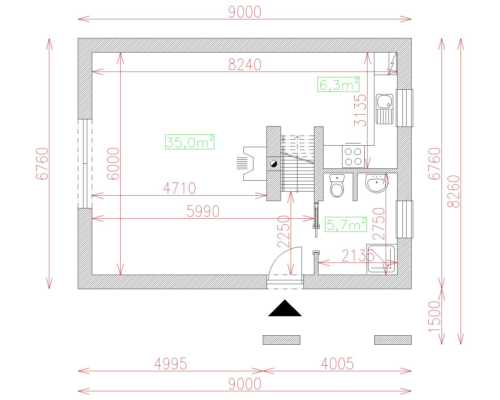
| Popis | Hodnota |
|---|---|
| Počet osôb | 5 |
| Orientácia vchodu | V. JV |
| Podlaží | 2 |
| Počet obytných izieb | 3 |
| Obostavaný priestor | 340 m2 |
| Celková úžitková plocha | 81.6 m2 |
| Celková obytná plocha | 48.2 m2 |
| Zastavaná plocha | 60.8 m3 |
| Výška hrebeňa strechy | 6.8 |
| Sklon strechy | 40 |
| Cena projektu | € 1 000 |
| Cena stavby na kľúč | € 88 000 |


