Podlaží
Izieb
Osoby
Úžitková plocha
Cena projektu
Cena na kľúč
Cena stavby svojpomocne
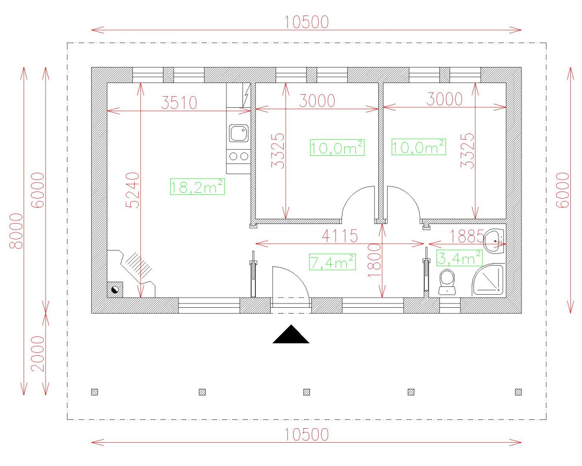
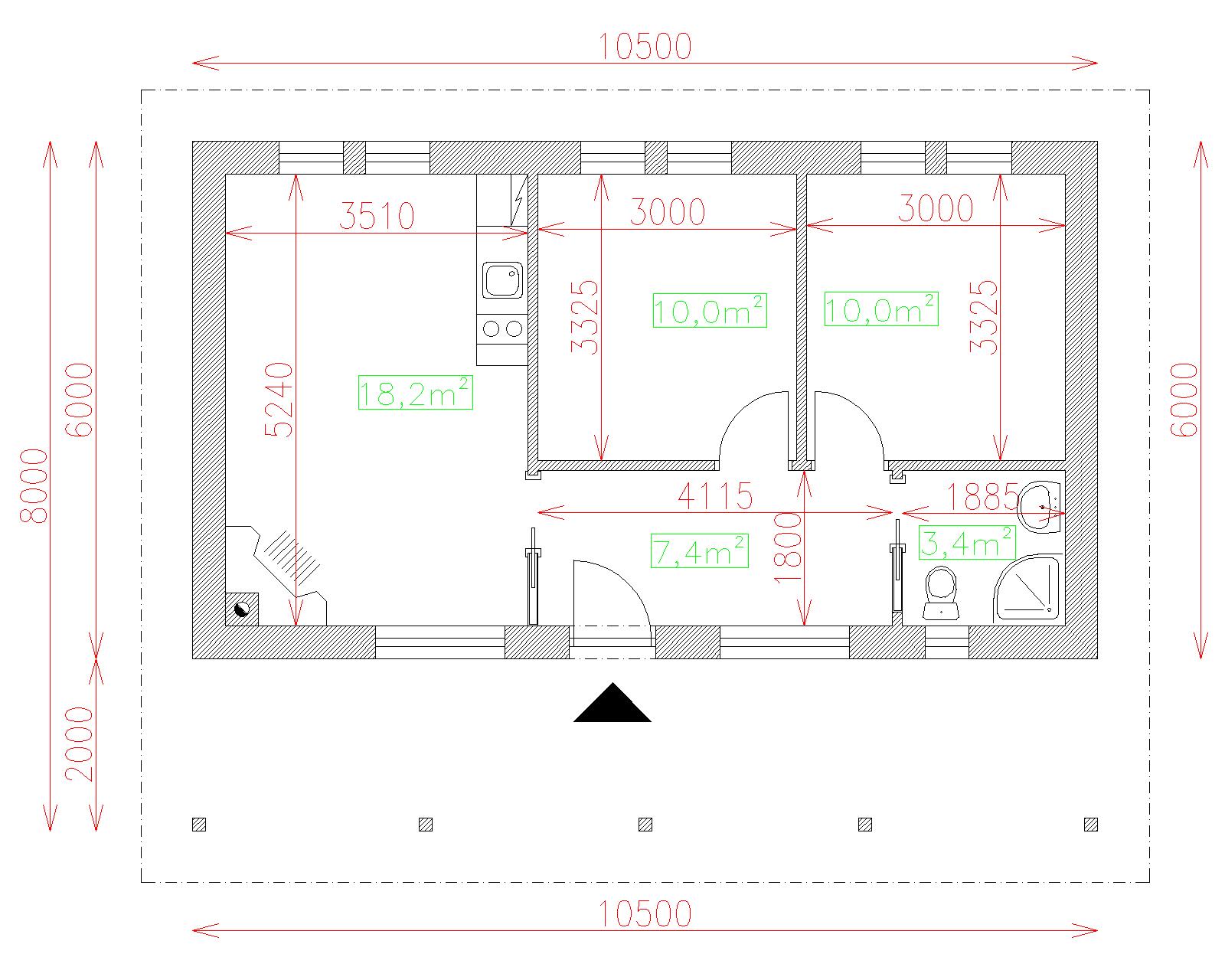
| Popis | Hodnota |
|---|---|
| Počet osôb | 4 |
| Orientácia vchodu | V. Z |
| Podlaží | 1 |
| Počet obytných izieb | 3 |
| Obostavaný priestor | 290 m2 |
| Celková úžitková plocha | 49 m2 |
| Celková obytná plocha | 38.2 m2 |
| Zastavaná plocha | 63 m3 |
| Výška hrebeňa strechy | 5.4 |
| Sklon strechy | 30 |
| Cena projektu | € 1 000 |
| Cena stavby na kľúč | € 57 500 |


