Podlaží
Izieb
Osoby
Úžitková plocha
Cena projektu
Cena na kľúč
Cena stavby svojpomocne
| Popis | Hodnota |
|---|---|
| Počet osôb | 5 |
| Orientácia vchodu | J. JV |
| Podlaží | 2 |
| Počet obytných izieb | 5 |
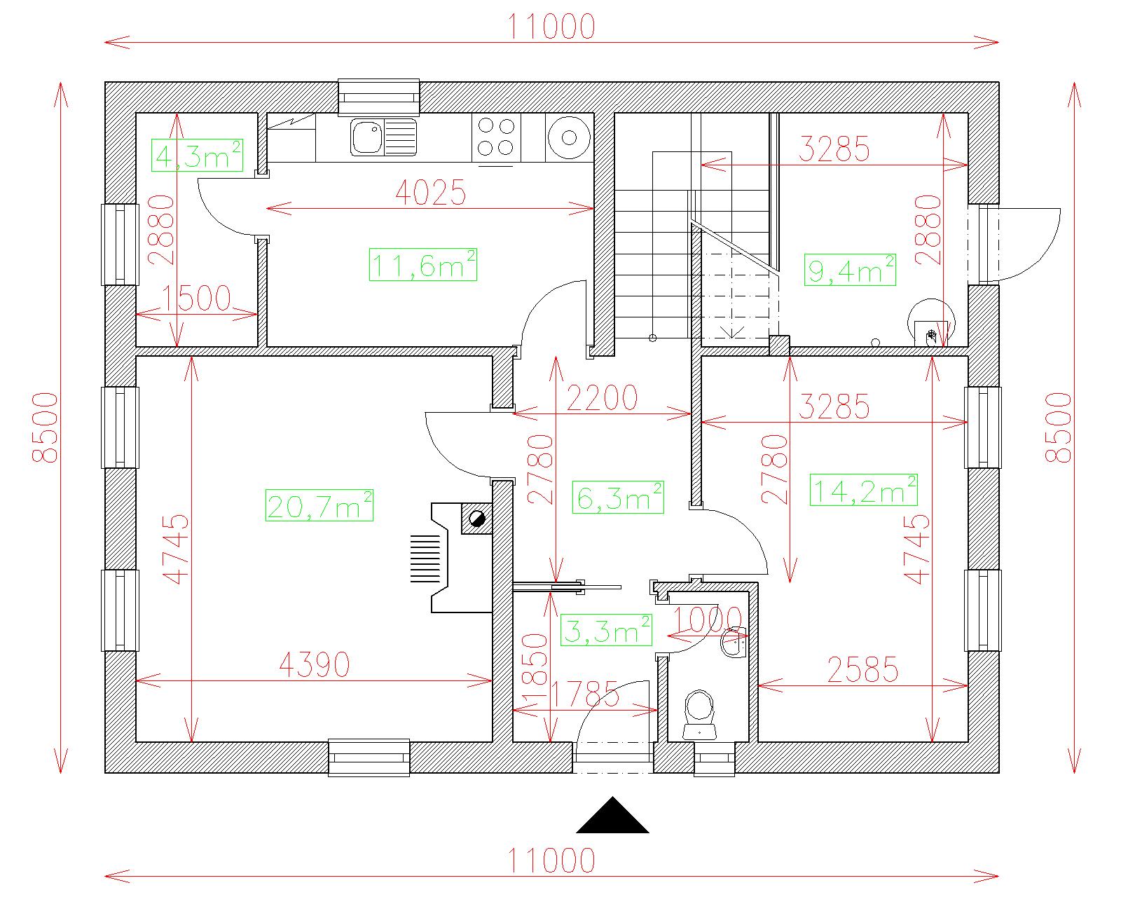
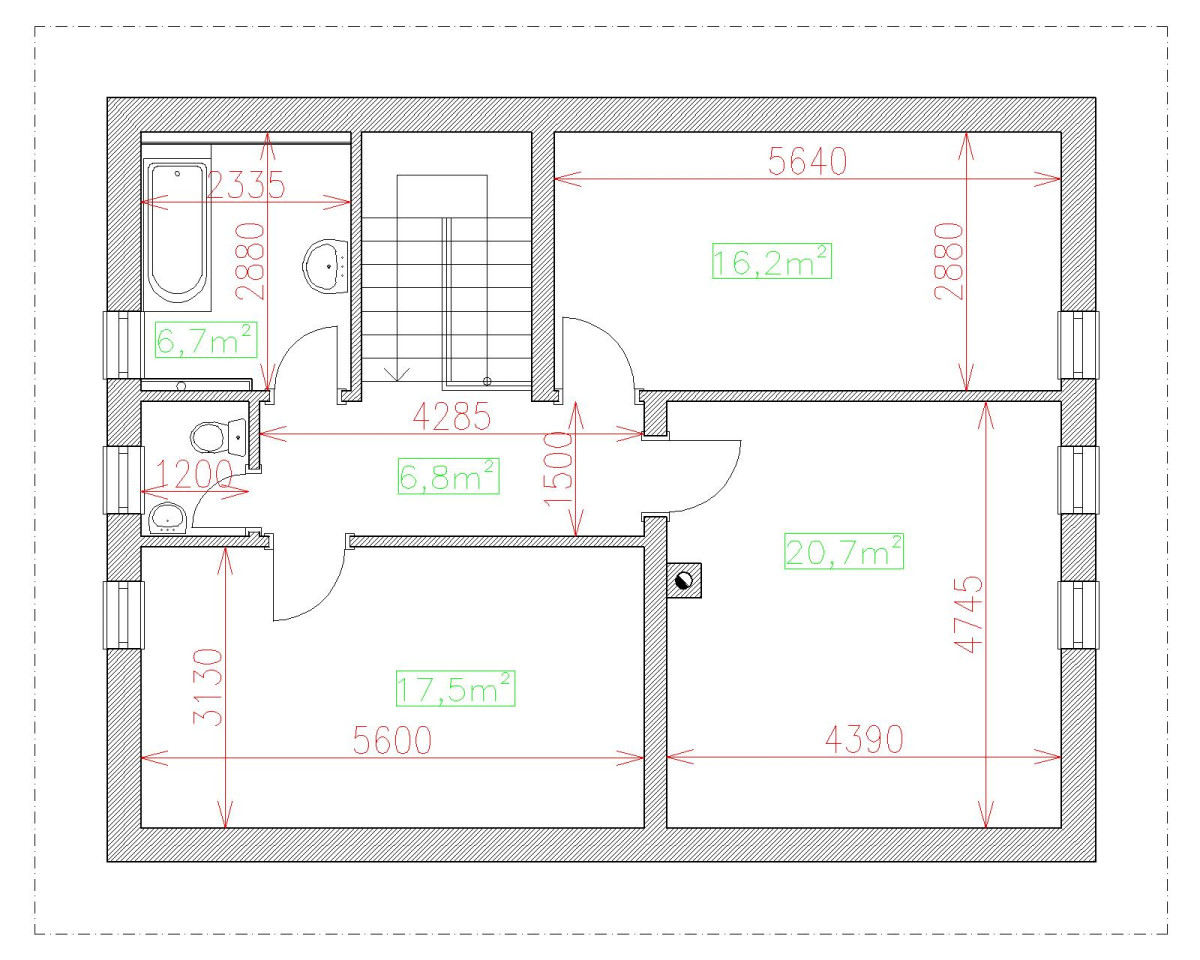
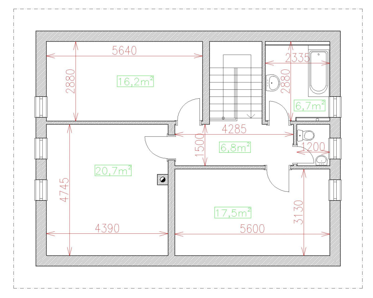
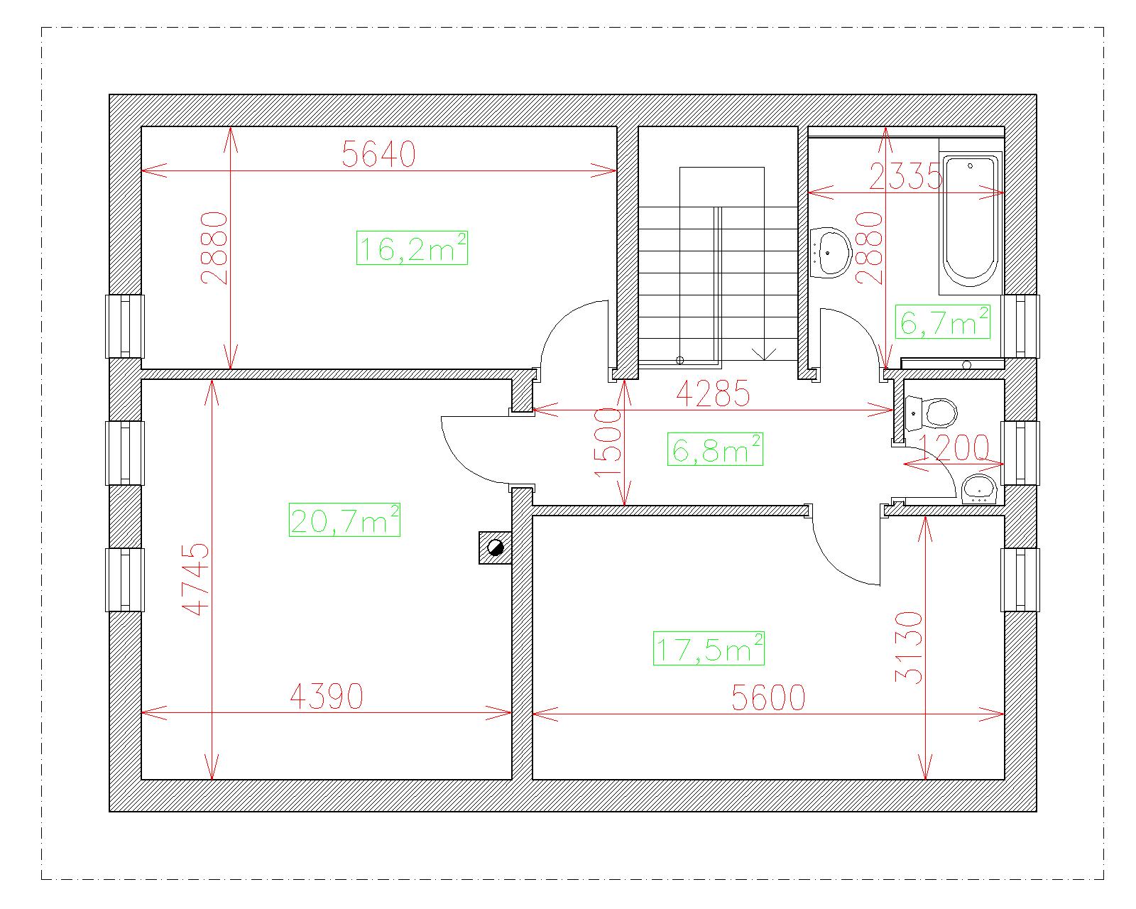
| Obostavaný priestor | 570 m2 |
| Celková úžitková plocha | 146.6 m2 |
| Celková obytná plocha | 89.2 m2 |
| Zastavaná plocha | 93.5 m3 |
| Výška hrebeňa strechy | 7.7 |
| Sklon strechy | 40 |
| Cena projektu | € 1 130 |
| Cena stavby na kľúč | € 144 000 |


