Podlaží
Izieb
Osoby
Úžitková plocha
Cena projektu
Cena na kľúč
Cena stavby svojpomocne
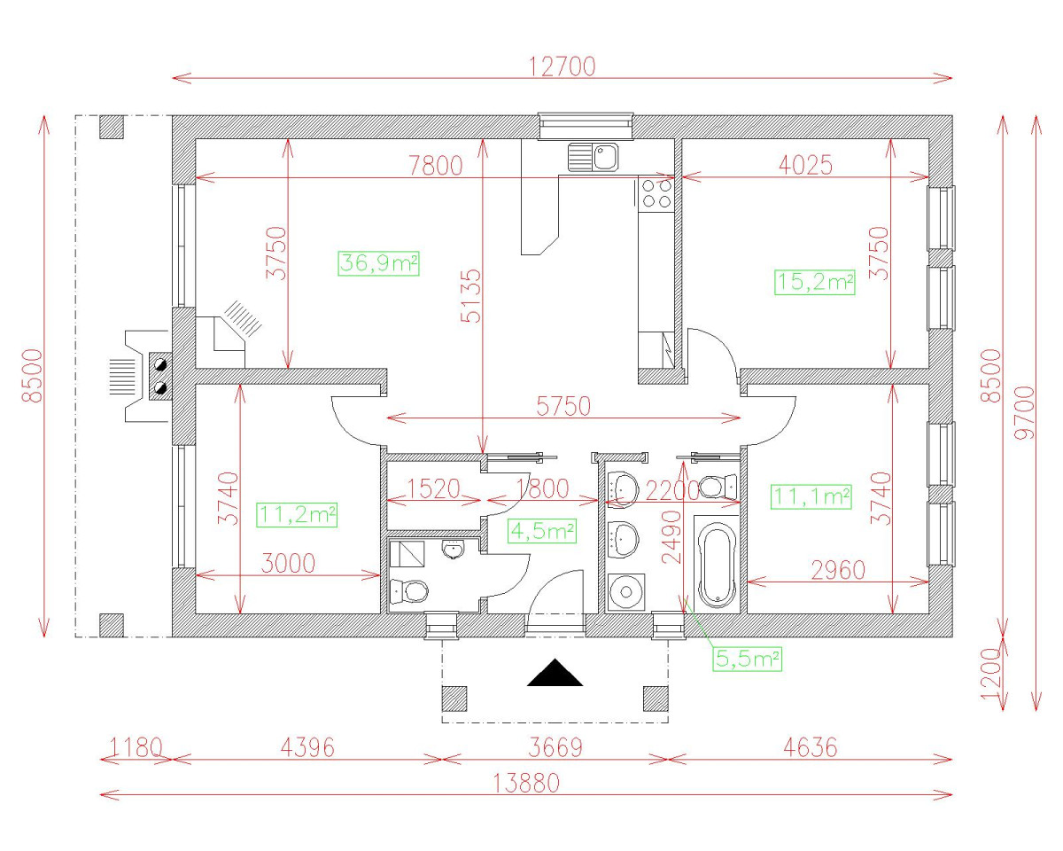
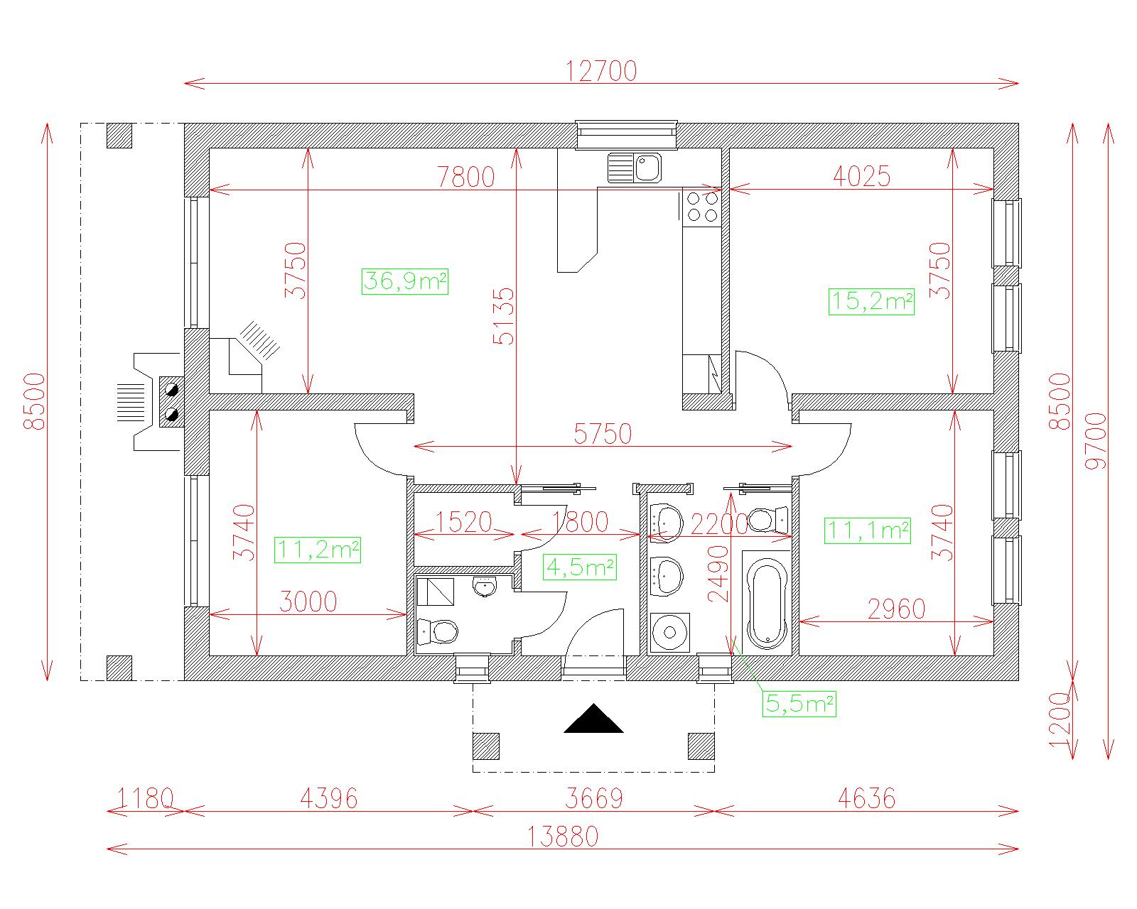
| Popis | Hodnota |
|---|---|
| Počet osôb | 4 |
| Orientácia vchodu | J. JV |
| Podlaží | 1 |
| Počet obytných izieb | 1 |
| Obostavaný priestor | 430 m2 |
| Celková úžitková plocha | 87.9 m2 |
| Celková obytná plocha | 62.4 m2 |
| Zastavaná plocha | 108.2 m3 |
| Výška hrebeňa strechy | 3.6 |
| Sklon strechy | 0 |
| Cena projektu | € 2 500 |
| Cena stavby na kľúč | € 113 000 |


