Podlaží
Izieb
Osoby
Úžitková plocha
Cena projektu
Cena na kľúč
Cena stavby svojpomocne
| Popis | Hodnota |
|---|---|
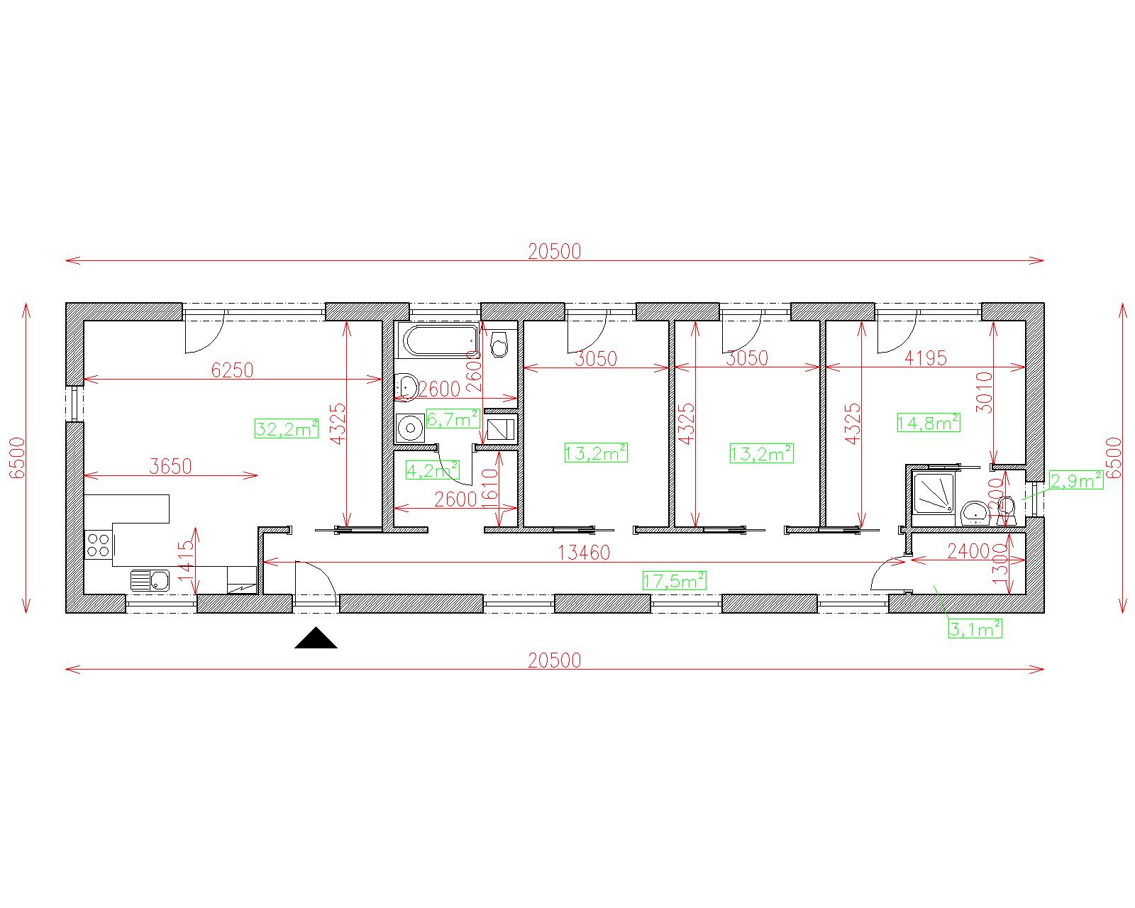
| Počet osôb | 4 |
| Orientácia vchodu | S |
| Podlaží | 1 |
| Počet obytných izieb | 4 |
| Obostavaný priestor | 480 m2 |
| Celková úžitková plocha | 107.8 m2 |
| Celková obytná plocha | 67.4 m2 |
| Zastavaná plocha | 133.3 m3 |
| Výška hrebeňa strechy | 4.1 |
| Sklon strechy | 0 |
| Cena projektu | € 1 400 |
| Cena stavby na kľúč | € 141 000 |


