Podlaží
Izieb
Osoby
Úžitková plocha
Cena projektu
Cena na kľúč
Cena stavby svojpomocne
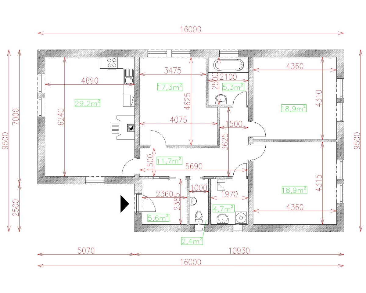
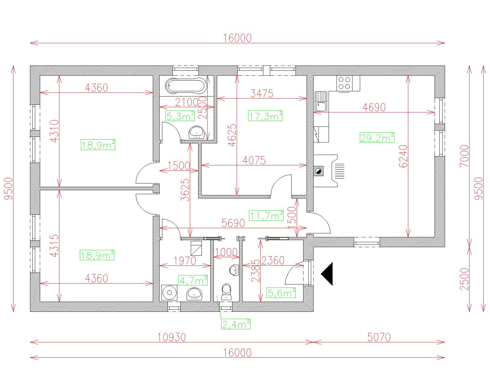
| Popis | Hodnota |
|---|---|
| Počet osôb | 5 |
| Orientácia vchodu | Z.SZ |
| Podlaží | 1 |
| Počet obytných izieb | 4 |
| Obostavaný priestor | 520 m2 |
| Celková úžitková plocha | 114 m2 |
| Celková obytná plocha | 78.3 m2 |
| Zastavaná plocha | 139.3 m3 |
| Výška hrebeňa strechy | 3.4 |
| Sklon strechy | 0 |
| Cena projektu | € 1 400 |
| Cena stavby na kľúč | € 147 000 |


