Podlaží
Izieb
Osoby
Úžitková plocha
Cena projektu
Cena na kľúč
Cena stavby svojpomocne
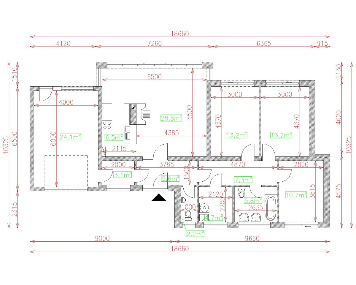
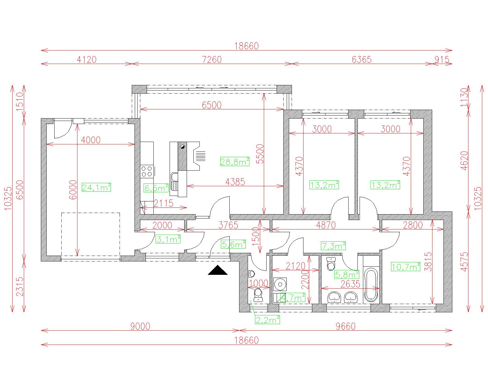
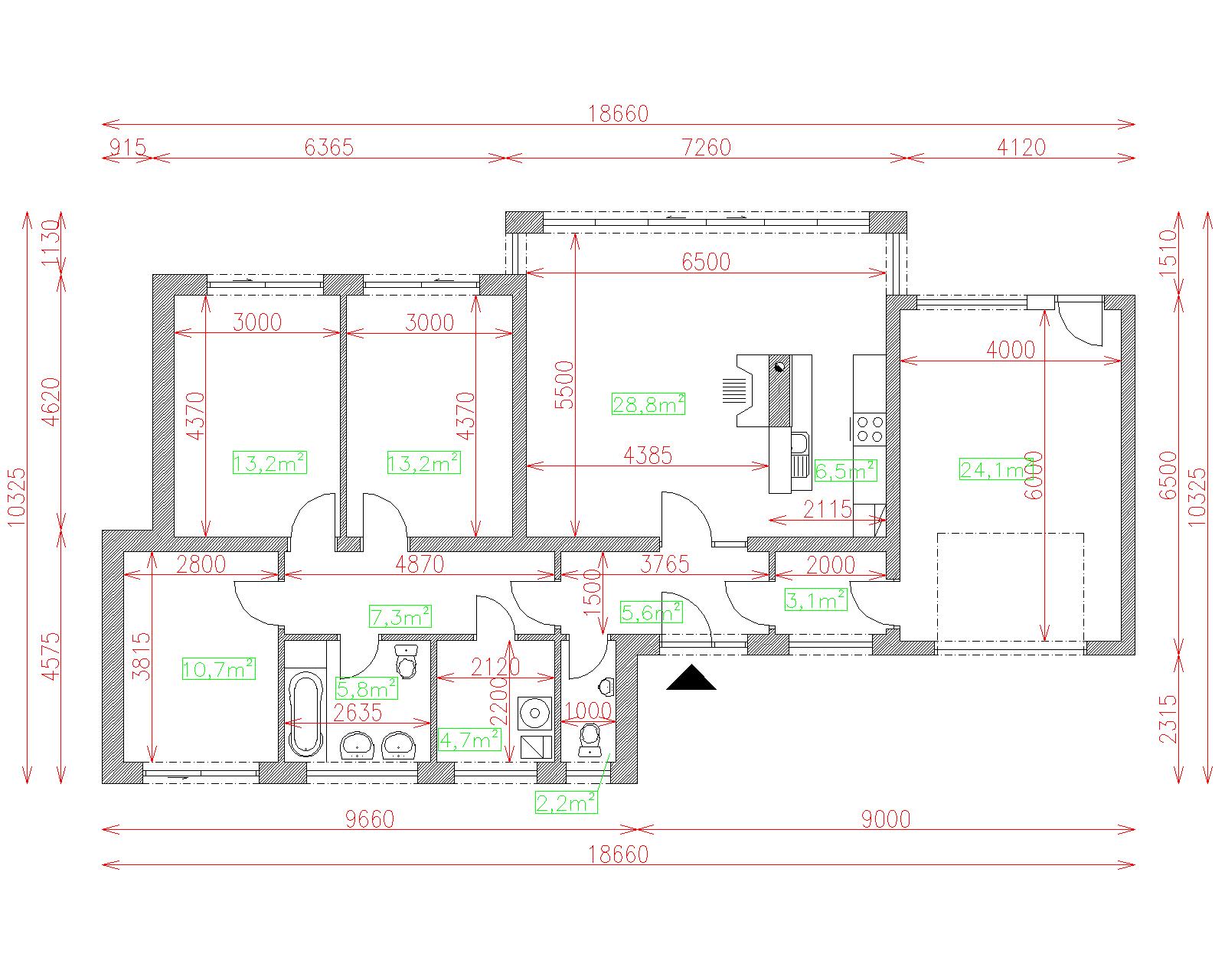
| Popis | Hodnota |
|---|---|
| Počet osôb | 4 |
| Orientácia vchodu | V.Z |
| Podlaží | 1 |
| Počet obytných izieb | 4 |
| Obostavaný priestor | 570 m2 |
| Celková úžitková plocha | 125.2 m2 |
| Celková obytná plocha | 65.7 m2 |
| Zastavaná plocha | 152.8 m3 |
| Výška hrebeňa strechy | 3.8 |
| Sklon strechy | 0 |
| Cena projektu | € 1 370 |
| Cena stavby na kľúč | € 161 500 |


