Podlaží
Izieb
Osoby
Úžitková plocha
Cena projektu
Cena na kľúč
Cena stavby svojpomocne
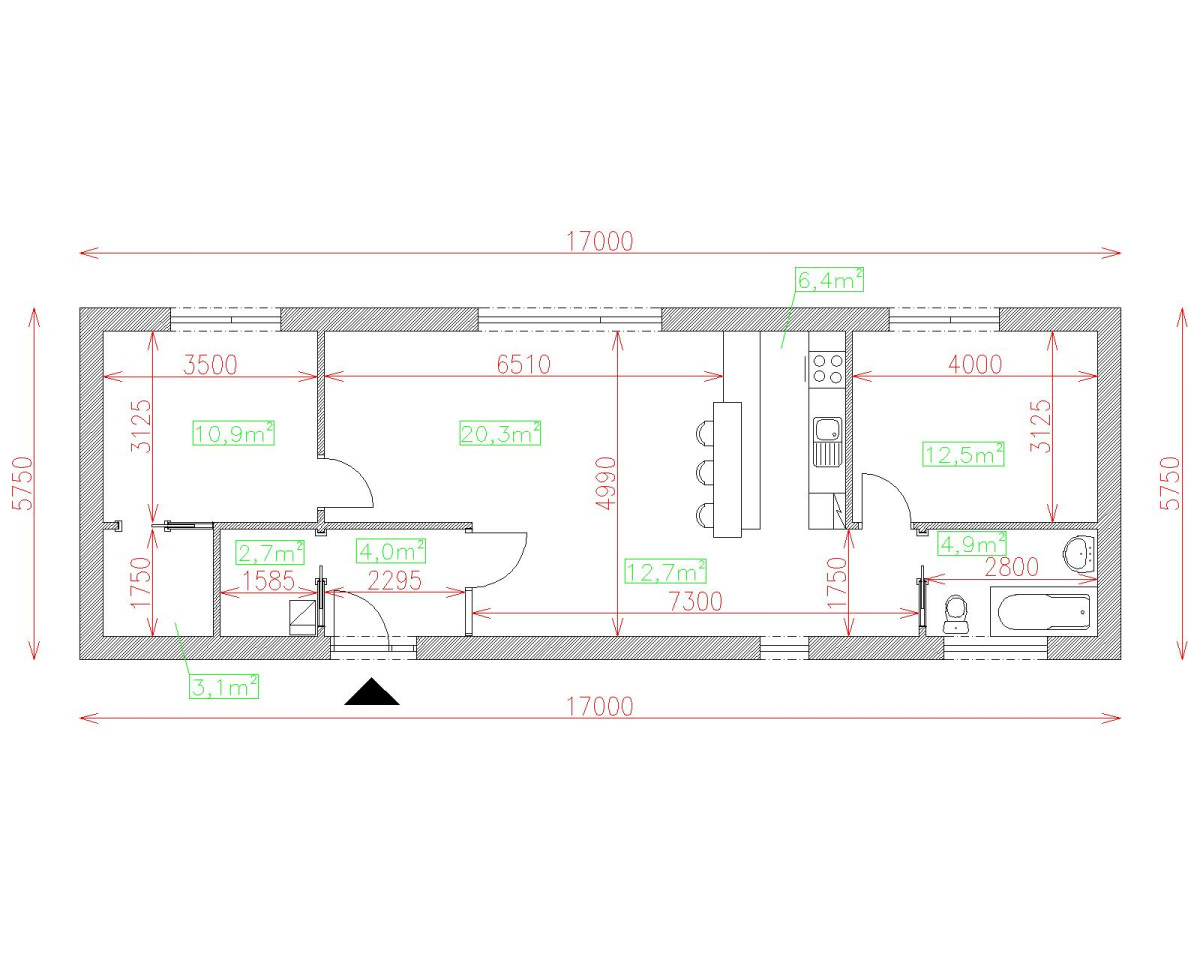
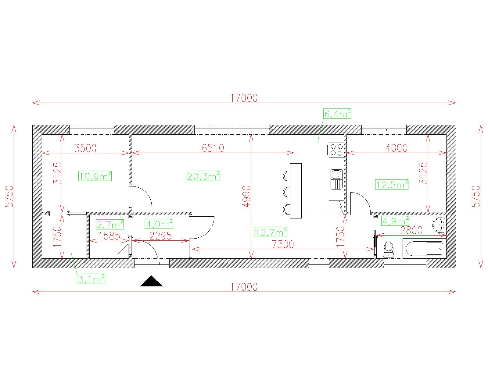
| Popis | Hodnota |
|---|---|
| Počet osôb | 2 |
| Orientácia vchodu | S. Z |
| Podlaží | 1 |
| Počet obytných izieb | 3 |
| Obostavaný priestor | 360 m2 |
| Celková úžitková plocha | 78.2 m2 |
| Celková obytná plocha | 63.4 m2 |
| Zastavaná plocha | 97.8 m3 |
| Výška hrebeňa strechy | 3.7 |
| Sklon strechy | 0 |
| Cena projektu | € 2 350 |
| Cena stavby na kľúč | € 104 500 |


