Podlaží
Izieb
Osoby
Úžitková plocha
Cena projektu
Cena na kľúč
Cena stavby svojpomocne
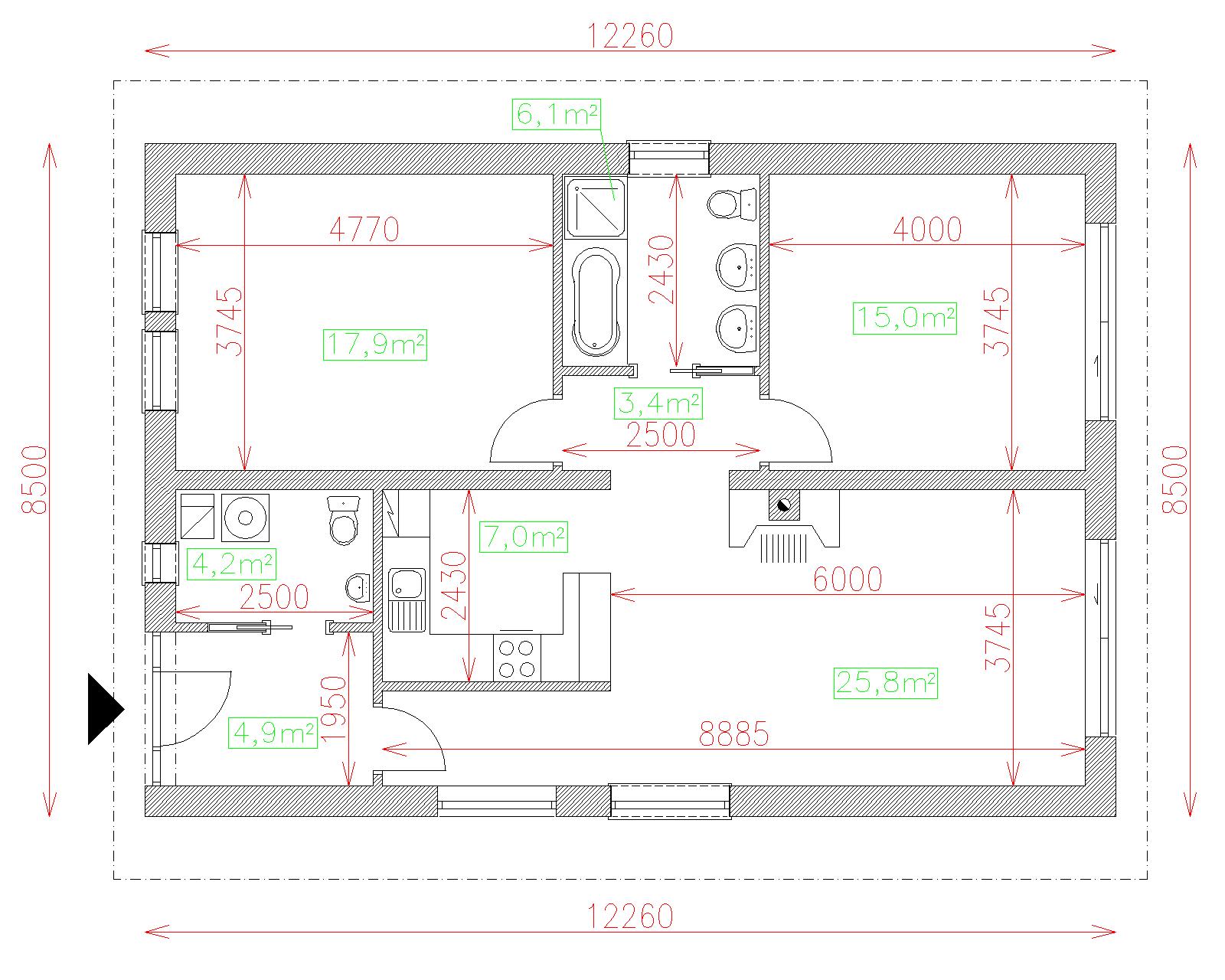
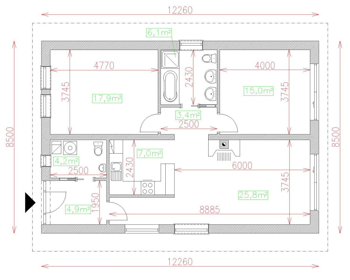
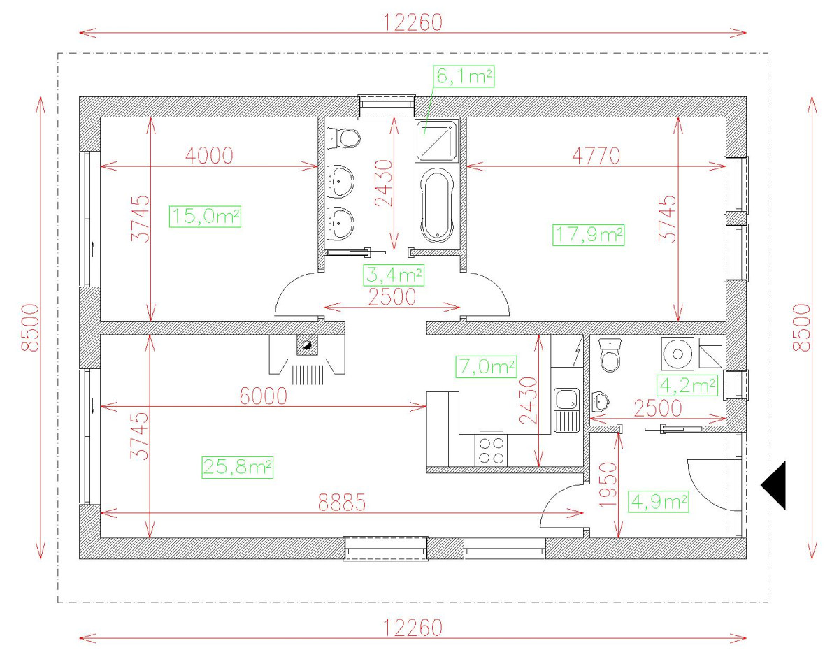
| Popis | Hodnota |
|---|---|
| Počet osôb | 4 |
| Orientácia vchodu | V. JV |
| Podlaží | 1 |
| Počet obytných izieb | 3 |
| Obostavaný priestor | 450 m2 |
| Celková úžitková plocha | 84.3 m2 |
| Celková obytná plocha | 58.7 m2 |
| Zastavaná plocha | 104.2 m3 |
| Výška hrebeňa strechy | 5.3 |
| Sklon strechy | 17 |
| Cena projektu | € 1 150 |
| Cena stavby na kľúč | € 110 500 |


