Podlaží
Izieb
Osoby
Úžitková plocha
Cena projektu
Cena na kľúč
Cena stavby svojpomocne
| Popis | Hodnota |
|---|---|
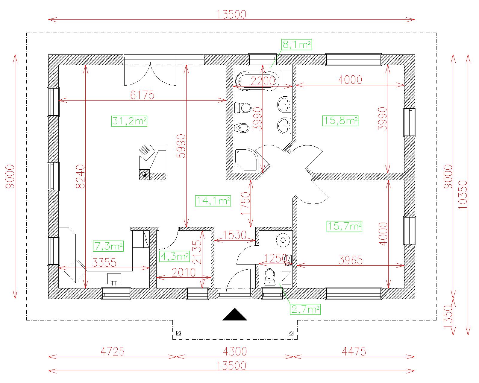
| Počet osôb | 4 |
| Orientácia vchodu | S. SV |
| Podlaží | 1 |
| Počet obytných izieb | 3 |
| Obostavaný priestor | 560 m2 |
| Celková úžitková plocha | 99.9 m2 |
| Celková obytná plocha | 69.3 m2 |
| Zastavaná plocha | 122 m3 |
| Výška hrebeňa strechy | 5.7 |
| Sklon strechy | 25 |
| Cena projektu | € 1 280 |
| Cena stavby na kľúč | € 129 500 |


