Podlaží
Izieb
Osoby
Úžitková plocha
Cena projektu
Cena na kľúč
Cena stavby svojpomocne
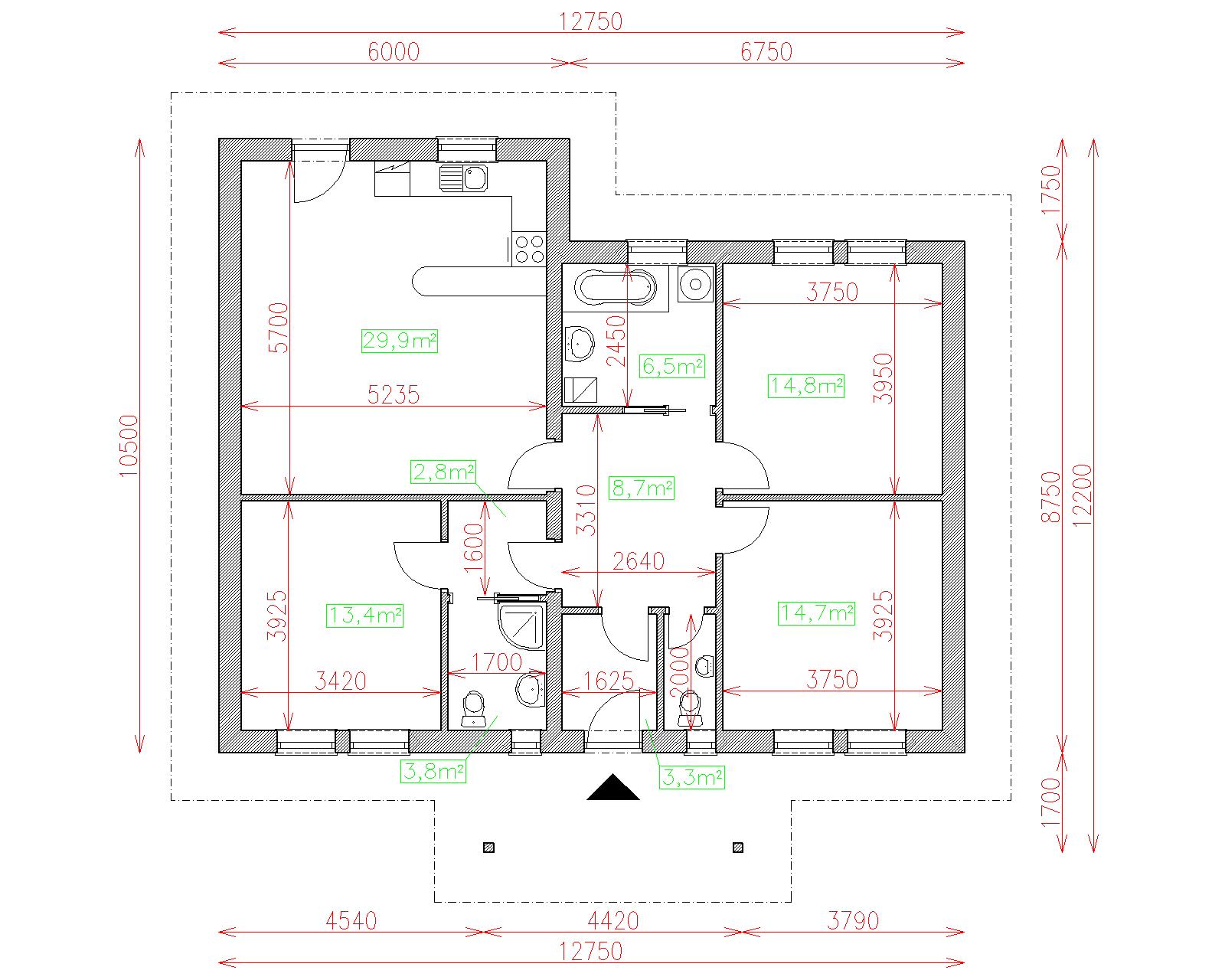
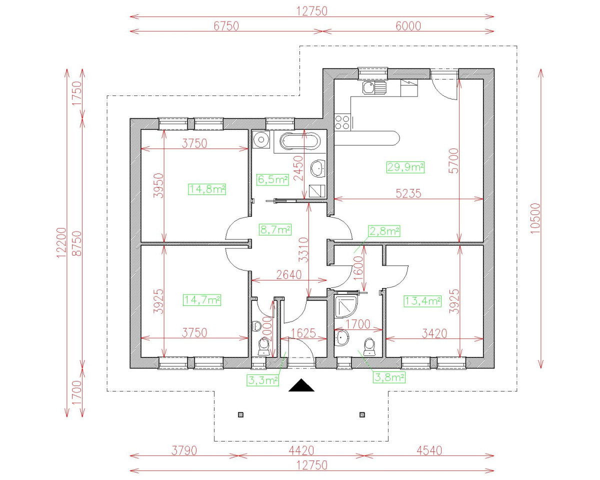
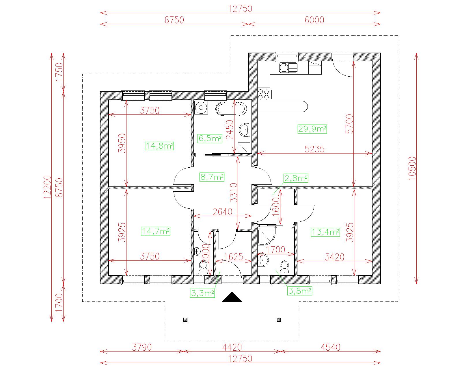
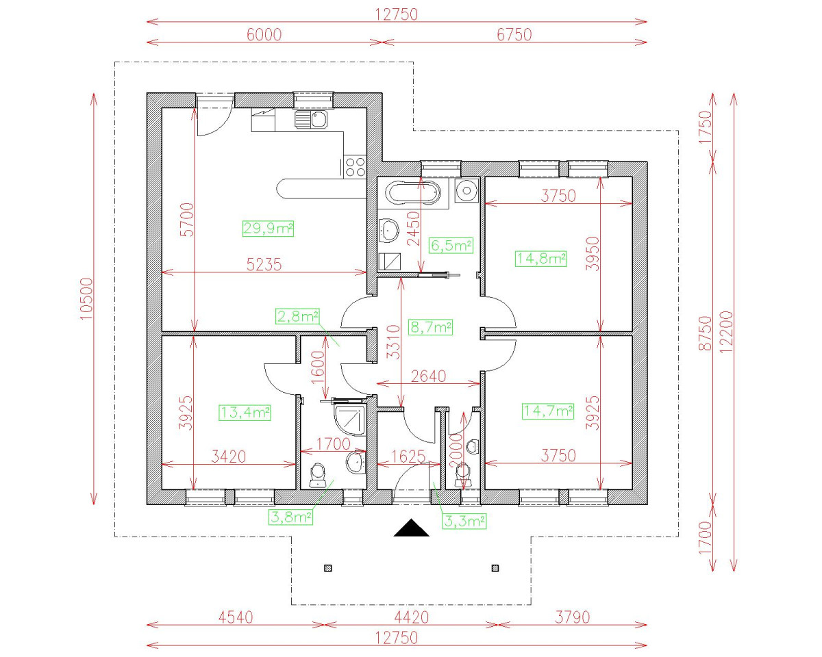
| Popis | Hodnota |
|---|---|
| Počet osôb | 4 |
| Orientácia vchodu | V. SV |
| Podlaží | 1 |
| Počet obytných izieb | 4 |
| Obostavaný priestor | 585 m2 |
| Celková úžitková plocha | 100.2 m2 |
| Celková obytná plocha | 65.8 m2 |
| Zastavaná plocha | 122.1 m3 |
| Výška hrebeňa strechy | 5.2 |
| Sklon strechy | 22 |
| Cena projektu | € 1 250 |
| Cena stavby na kľúč | € 130 000 |


