Podlaží
Izieb
Osoby
Úžitková plocha
Cena projektu
Cena na kľúč
Cena stavby svojpomocne
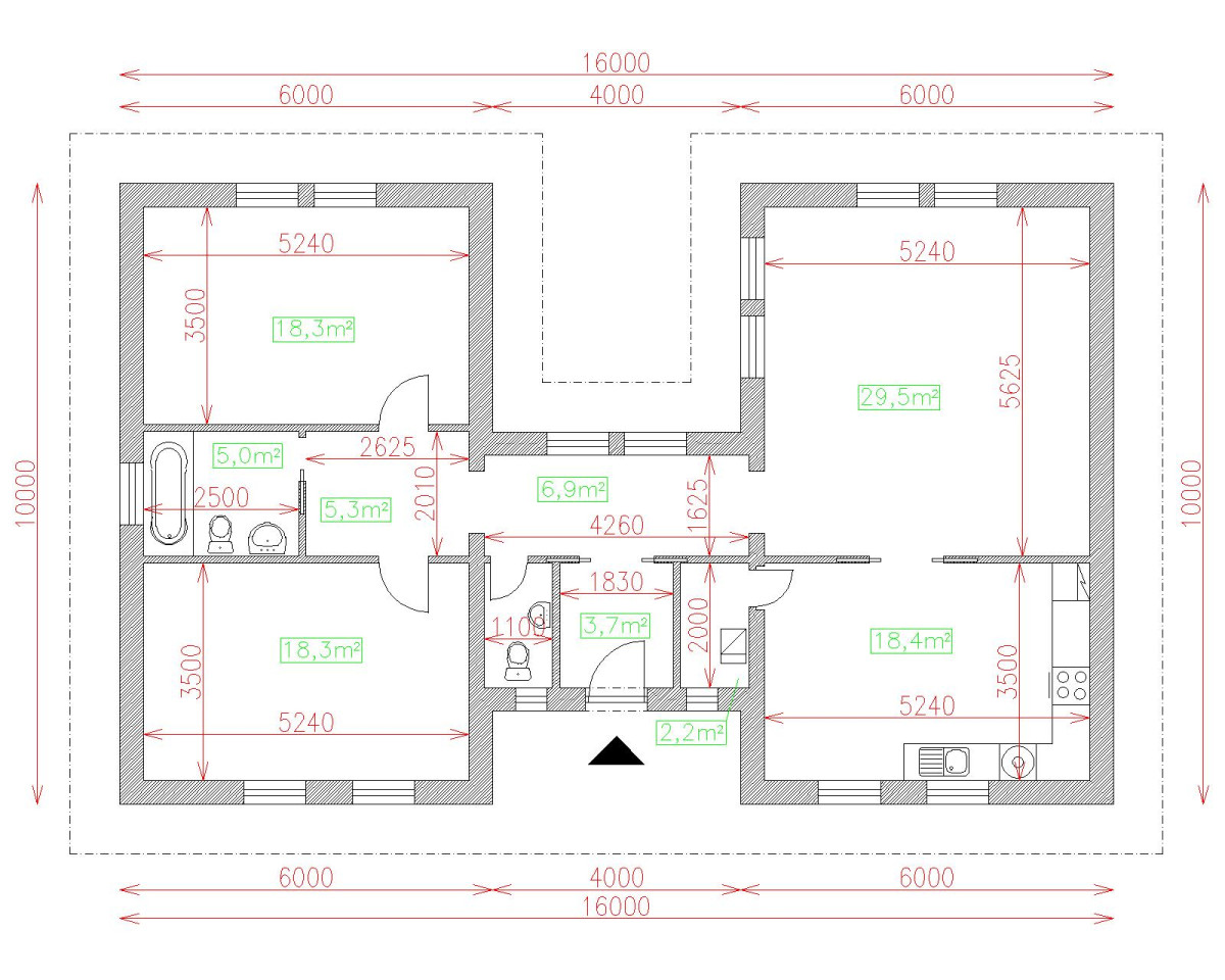
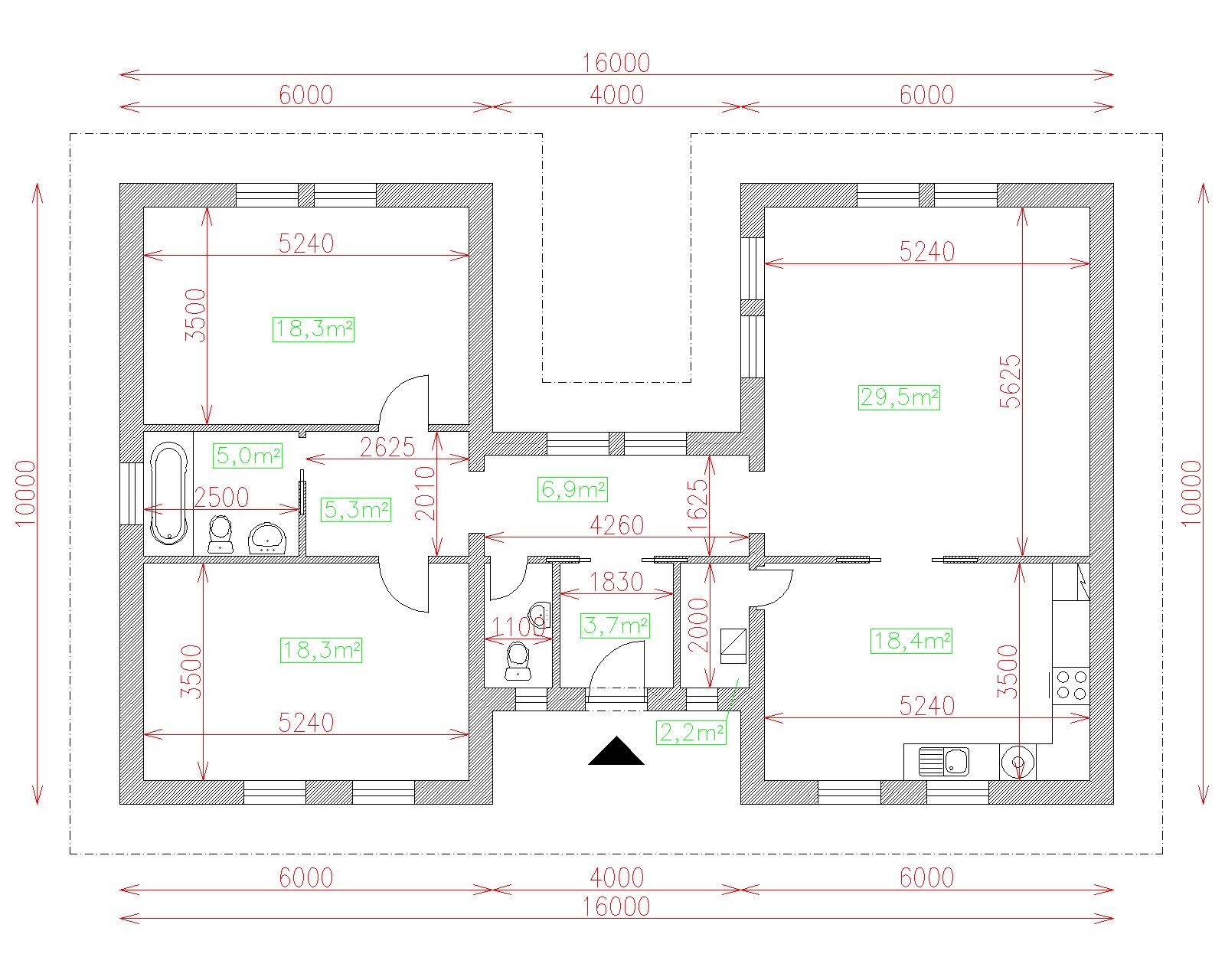
| Popis | Hodnota |
|---|---|
| Počet osôb | 3 |
| Orientácia vchodu | V. SV |
| Podlaží | 1 |
| Počet obytných izieb | 3 |
| Obostavaný priestor | 550 m2 |
| Celková úžitková plocha | 109.8 m2 |
| Celková obytná plocha | 78.1 m2 |
| Zastavaná plocha | 138 m3 |
| Výška hrebeňa strechy | 4.8 |
| Sklon strechy | 22 |
| Cena projektu | € 2 700 |
| Cena stavby na kľúč | € 146 000 |


