Podlaží
Izieb
Osoby
Úžitková plocha
Cena projektu
Cena na kľúč
Cena stavby svojpomocne
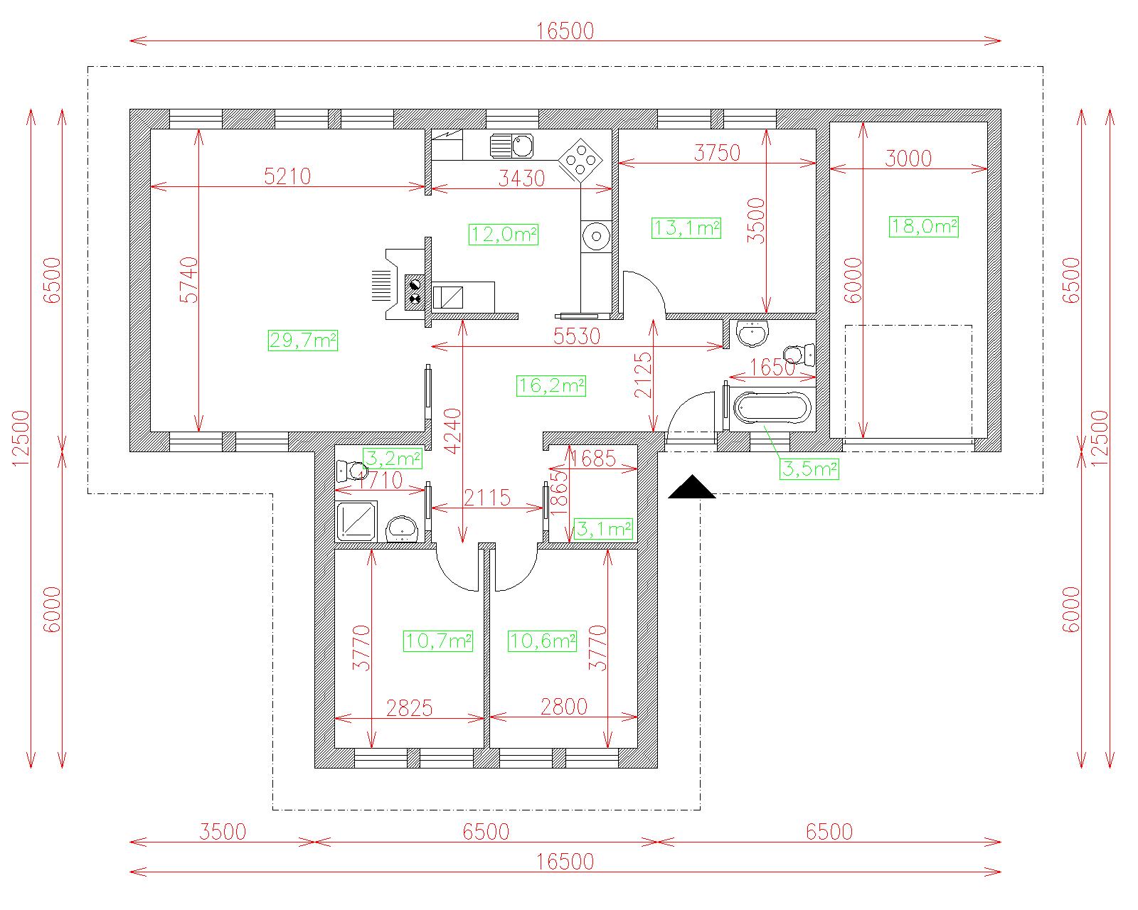
| Popis | Hodnota |
|---|---|
| Počet osôb | 4 |
| Orientácia vchodu | V. SV |
| Podlaží | 1 |
| Počet obytných izieb | 4 |
| Obostavaný priestor | 610 m2 |
| Celková úžitková plocha | 120.1 m2 |
| Celková obytná plocha | 64.1 m2 |
| Zastavaná plocha | 146.3 m3 |
| Výška hrebeňa strechy | 4.8 |
| Sklon strechy | 22 |
| Cena projektu | € 2 690 |
| Cena stavby na kľúč | € 154 600 |


